Guten Tag liebes Forum,
so langsam nimmt das Projekt immer mehr Gestalt an. Mittlerweile sind wir vom schlüsselfertigen Haus etwas abgekommen und fragen gerade die regionalen Massivbau Anbieter nach dem Rohbau an.
Heute habe ich ein Angebot mit folgenden Positionen erhalten:
- Zwei Vollgeschosse
- Walmdach ca. 20 Grad
- Haus mit ca. 9,50m auf 11m Außenmaße
- Dachstuhl inkl. Spenglerarbeiten
- Eingabeplanung inkl. Bauanträge
- Statik (Baubeginsanzeige)
- Bauleitung für unserer Gewerke
Was darf sowas eurer Meinung nach kosten?
Meine nächste Frage wäre dann, was fehlt noch u. von welchen Kosten muss ich ausgehen? (In Klammern immer meine Annahme, bitte verbessern)
- Fenster (20.000) (sind ca. 16 Fenster, davon 6 Bodentief)
- Estrich (5.000)
- Heizung (10.000) (Soll Gasheizung werden, da ein Anschluss vorliegt)
- Boden (15.000) (ca. 70 % soll gefliest werden)
- Elektrik (20.000)
- Verputzen (10.000)
- Terrassen Überdachung (15.000)
- Doppel bzw. Großraumgarage (20.000)
Die zuletzt aufgeführten Positionen verstehen sich mit Material u. Arbeitszeit.
Ich freue mich auf Kritik, Anregungen u. Verbesserungen.
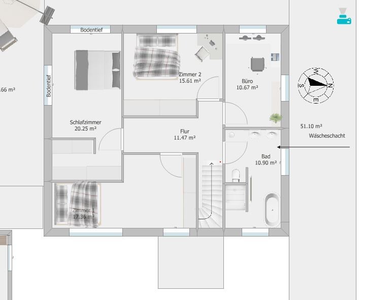
Anbei auch noch 2 Grundrisse, wie das ganze aussehen soll.


so langsam nimmt das Projekt immer mehr Gestalt an. Mittlerweile sind wir vom schlüsselfertigen Haus etwas abgekommen und fragen gerade die regionalen Massivbau Anbieter nach dem Rohbau an.
Heute habe ich ein Angebot mit folgenden Positionen erhalten:
- Zwei Vollgeschosse
- Walmdach ca. 20 Grad
- Haus mit ca. 9,50m auf 11m Außenmaße
- Dachstuhl inkl. Spenglerarbeiten
- Eingabeplanung inkl. Bauanträge
- Statik (Baubeginsanzeige)
- Bauleitung für unserer Gewerke
Was darf sowas eurer Meinung nach kosten?
Meine nächste Frage wäre dann, was fehlt noch u. von welchen Kosten muss ich ausgehen? (In Klammern immer meine Annahme, bitte verbessern)
- Fenster (20.000) (sind ca. 16 Fenster, davon 6 Bodentief)
- Estrich (5.000)
- Heizung (10.000) (Soll Gasheizung werden, da ein Anschluss vorliegt)
- Boden (15.000) (ca. 70 % soll gefliest werden)
- Elektrik (20.000)
- Verputzen (10.000)
- Terrassen Überdachung (15.000)
- Doppel bzw. Großraumgarage (20.000)
Die zuletzt aufgeführten Positionen verstehen sich mit Material u. Arbeitszeit.
Ich freue mich auf Kritik, Anregungen u. Verbesserungen.
Anbei auch noch 2 Grundrisse, wie das ganze aussehen soll.
Wieso sagst denn nicht wie hoch das Angebot ist?
Kannst es schwärzen und einstellen.
Sind sonst zu wenig Infos um das zu bewerten (Material, Dämmstandard, Leistungen). Wo baust Du?
Sonst sag ich zwischen 113745 und 278654 EUR.
Gleiches Spiel wie oben zu wenig Infos. Z.B. Fenster? Kunststoff? Holz? inkl. Rollläden Raffstore?
Ich kann aber auch Zahlen mal raushauen
- Fenster 30
- Estrich kann sein
- Heizung 20
- Boden 30
- Elektrik passt vielleicht
- Verputzen (außen und innen?) 30-40
- Terrassenüberdachung vielleicht
- Doppelgarage ehr 30
Oder auch ganz anders
Edith: Und es fehlen noch ein paar Positionen...
Kannst es schwärzen und einstellen.
Sind sonst zu wenig Infos um das zu bewerten (Material, Dämmstandard, Leistungen). Wo baust Du?
Sonst sag ich zwischen 113745 und 278654 EUR.
XAMMAX2 schrieb:
Fenster (20.000) (sind ca. 16 Fenster, davon 6 Bodentief)
- Estrich (5.000)
- Heizung (10.000) (Soll Gasheizung werden, da ein Anschluss vorliegt)
- Boden (15.000) (ca. 70 % soll gefliest werden)
- Elektrik (20.000)
- Verputzen (10.000)
- Terrassen Überdachung (15.000)
- Doppel bzw. Großraumgarage (20.000)
Gleiches Spiel wie oben zu wenig Infos. Z.B. Fenster? Kunststoff? Holz? inkl. Rollläden Raffstore?
Ich kann aber auch Zahlen mal raushauen
- Fenster 30
- Estrich kann sein
- Heizung 20
- Boden 30
- Elektrik passt vielleicht
- Verputzen (außen und innen?) 30-40
- Terrassenüberdachung vielleicht
- Doppelgarage ehr 30
Oder auch ganz anders
Edith: Und es fehlen noch ein paar Positionen...
Ähnliche Themen