ᐅ Einschätzung Kosten für Rohbau und Gesamtkosten (Putz, Estrich)
Erstellt am: 27.10.23 07:48
Hallo zusammen.
für mein geplantes Haus mit viel Eigenleistung möchte ich eine Gesamtkostenermittlung machen.
Die Kosten für Elektro und Heizung (Eigenleistung) habe ich grob, aber für die Gewerke, wo ich nicht wirklich mitarbeiten kann brauche ich noch ungefähre Preise, ein Gerüst habe ich und kann es auch fachgerecht aufstellen:
Es wird benötigt als Fremdleistung:
Baustelleneinrichtung mit WC usw. für die Zeit des Rohbaus
Erdarbeiten mit Keller und Rohrgrabenaushub Klasse 2-6, Aushub und seitlich lagern
Kanal 2m außerhalb des Gebäudes im Mischsystem bereitstellen, Anbindung an vorverlegtes Kanalnetz mache ich selbst
Bodenplatte mit Dämmung unterhalb 8cm
Kellerwände Beton mit Dämmung 120mm, Rohlichte Keller 237cm
Drainage mit Sickerpackung und zwei angeschlossenen Lichtschächten
Außenwände EG und OG mit Mineralwolle Poroton 36,5cm
EG und OG Rohlichte 2,64
Beton Decke EG-UG 20cm
Beton Decke EG-OG 22cm
Decke OG zur Bühne Holzbalkendecke
Dachkonstruktion Satteldach mit 30° DN ohne Kniestock inkl. Latten, Dacheindeckung mache ich selbst
2 Stahlbetontreppen von UG nach EG und vom EG und OG mit 1m Breite
Alle Innenwände gemauert je nach Statischen Erfordernissen
Fensteraussparungen außer die vom Keller mit Mauerwerks-Rollladenkasten, ohne Fenster und Rollladen (mache ich in Eigenleistung, Schwager ist Bauschreiner)
Planvorlageleistungen, Baugenehmigung und Bauleitung für den Rohbau
Garage wird mit genehmigt, und später ganz in Eigenleistung gebaut.
Anbei einige Bilder mit Skizzen zur Veranschaulichung
Findet ihr den Preis gerechtfertigt für den Rohbau?
Vielen Dank
Gruß Ralf




für mein geplantes Haus mit viel Eigenleistung möchte ich eine Gesamtkostenermittlung machen.
Die Kosten für Elektro und Heizung (Eigenleistung) habe ich grob, aber für die Gewerke, wo ich nicht wirklich mitarbeiten kann brauche ich noch ungefähre Preise, ein Gerüst habe ich und kann es auch fachgerecht aufstellen:
Es wird benötigt als Fremdleistung:
- Innenputz: Hier kann ich die Fläche leider schlecht errechnen
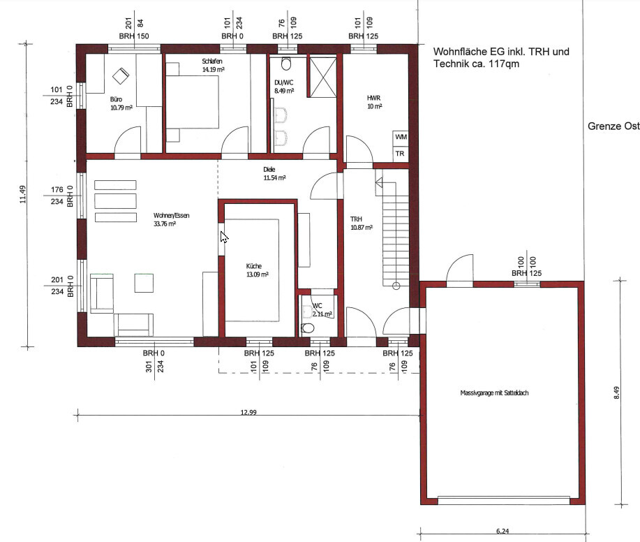
- Außenputz (Fläche geschätzt: Nord+Süd 13 x 5,2 x 2 = 135m², Ost+West 11,5 x 7 x 2 = 161m²) Gesamt 300m², Fenster sind jetzt nicht berücksichtigt in der Fläche, aber es kommen ja stattdessen die Fenster-Laibungen dazu.
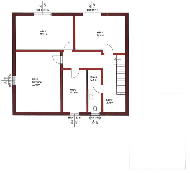
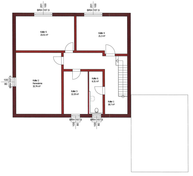
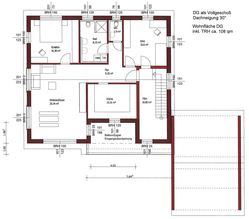
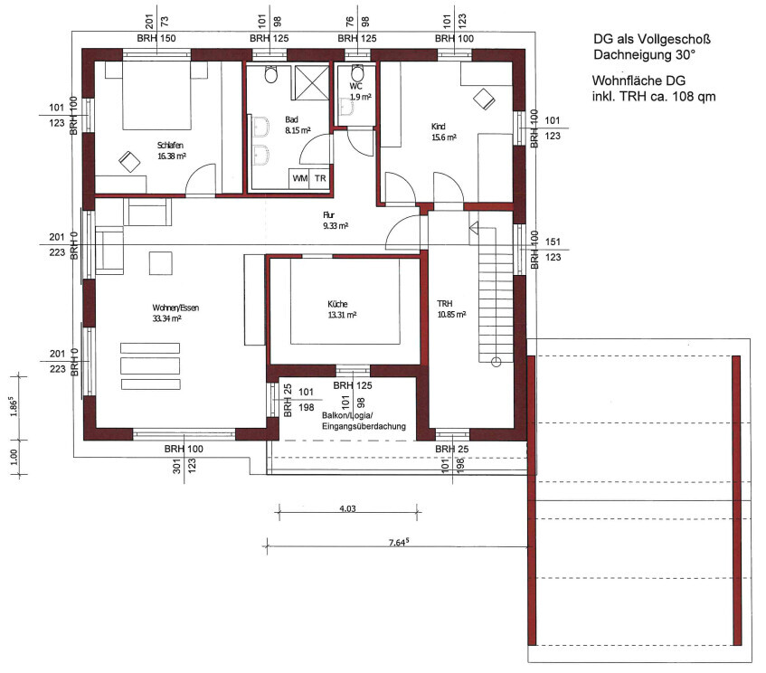
- Estrich (Keller 113m², EG 117m², OG 108m²) Gesamt 338 m²
- Der Rohbau (mit Dachstuhl, ohne Fenster) kommt von einem GÜ und wird mit 300.000 Euro angeboten.
Baustelleneinrichtung mit WC usw. für die Zeit des Rohbaus
Erdarbeiten mit Keller und Rohrgrabenaushub Klasse 2-6, Aushub und seitlich lagern
Kanal 2m außerhalb des Gebäudes im Mischsystem bereitstellen, Anbindung an vorverlegtes Kanalnetz mache ich selbst
Bodenplatte mit Dämmung unterhalb 8cm
Kellerwände Beton mit Dämmung 120mm, Rohlichte Keller 237cm
Drainage mit Sickerpackung und zwei angeschlossenen Lichtschächten
Außenwände EG und OG mit Mineralwolle Poroton 36,5cm
EG und OG Rohlichte 2,64
Beton Decke EG-UG 20cm
Beton Decke EG-OG 22cm
Decke OG zur Bühne Holzbalkendecke
Dachkonstruktion Satteldach mit 30° DN ohne Kniestock inkl. Latten, Dacheindeckung mache ich selbst
2 Stahlbetontreppen von UG nach EG und vom EG und OG mit 1m Breite
Alle Innenwände gemauert je nach Statischen Erfordernissen
Fensteraussparungen außer die vom Keller mit Mauerwerks-Rollladenkasten, ohne Fenster und Rollladen (mache ich in Eigenleistung, Schwager ist Bauschreiner)
Planvorlageleistungen, Baugenehmigung und Bauleitung für den Rohbau
Garage wird mit genehmigt, und später ganz in Eigenleistung gebaut.
Anbei einige Bilder mit Skizzen zur Veranschaulichung
Findet ihr den Preis gerechtfertigt für den Rohbau?
Vielen Dank
Gruß Ralf
Estrich (Zementestrich, ohne Beschleuniger, ohne Bodenplatte Abdichtung & Dämmung): ca. 6.000,00 € netto
Außenputz (ohne WDVS, ebene Untergrund, Armierung, Putzgrund, Strukturputz, 2mm Korn, einmalige Anstrich mit Siliconharz): ca 12.500,00 € netto
Je nach Ansprüche, Materialien, Firmen, Region gibt es natürlich eine von-bis Spanne - denke mal die oben-genante Preise werden wahrscheinlich eher die "von" Seite darstellen.
Ach so, wegen Innenputz - nimm die Grundrisse in Acrobat Reader rein, dann kannst du relativ einfach Umfang raumweise rausmessen (Maßstab vorher anpassen), und dann mit Wandhöhen multiplizieren. Je nach Auftragsart werden wahrscheinlich alle Öffnungen unter 2,5 qm übermessen (kannst fensterweise auch ausrechnen).
Außenputz (ohne WDVS, ebene Untergrund, Armierung, Putzgrund, Strukturputz, 2mm Korn, einmalige Anstrich mit Siliconharz): ca 12.500,00 € netto
Je nach Ansprüche, Materialien, Firmen, Region gibt es natürlich eine von-bis Spanne - denke mal die oben-genante Preise werden wahrscheinlich eher die "von" Seite darstellen.
Ach so, wegen Innenputz - nimm die Grundrisse in Acrobat Reader rein, dann kannst du relativ einfach Umfang raumweise rausmessen (Maßstab vorher anpassen), und dann mit Wandhöhen multiplizieren. Je nach Auftragsart werden wahrscheinlich alle Öffnungen unter 2,5 qm übermessen (kannst fensterweise auch ausrechnen).
B
Buchsbaum27.10.23 08:23300k ist viel zu teuer. Würde ich für den Preis nicht bauen lassen. Du hast vielleicht im Einkauf 50k Material. Falls überhaupt so viel.
Der Rest soll Arbeitsleistung sein? Niemals.
Ich hatte letztens mit einem kleinem Bauunternehmer gesprochen. 100k wäre für den Rohbau realistisch.
Dann vielleicht noch 30k für das Dach.
Der Rest soll Arbeitsleistung sein? Niemals.
Ich hatte letztens mit einem kleinem Bauunternehmer gesprochen. 100k wäre für den Rohbau realistisch.
Dann vielleicht noch 30k für das Dach.
B
Buchsbaum27.10.23 09:16Klar lese ich. 300k ist trotzdem viel zu teuer. Das ist und bleibt meine Meinung.
Die Immobilienpreise sinken, die Baukosten werden sinken, wir haben eine massive Krise am Bau und die Aufträge fallen massenweise weg.
Da kann man auch mal günstig bauen.
Es soll ja auch Leute geben die für nur 2000 Euro je qm bauen können.
Mit dem Niedergang der deutschen Industrie werden auch die Immobilienpreise sinken. In den USA übrigens ist der Hypothekenzins schon bei über 8 Prozent. Wie willst du da noch diese hochpreisigen Häuser finanzieren? Das geht doch überhaupt nicht.
Die Preise der letzten Jahre sind einfach Mondpreise. Davon sollte man sich verabschieden. Das wird nun alles wieder eingenordet.
Sowohl die Materialpreise als auch die Lohnkosten dürften spürbar sinken.
Das Problem der nächsten Monate und Jahre wird eine gewaltige Liquiditätskrise sein. Keiner wird mehr Geld haben. Die Realeinkommen sinken immer weiter, die finanzierungskosten seigen immer weiter, die Kreditvergabe der Banken wir restriktiv.
Wer genug Cash im Rücken hat, der wird sehr günstig bauen können.
Von daher würde ich für den genannten Preis heute nicht mehr bauen.
Die Immobilienpreise sinken, die Baukosten werden sinken, wir haben eine massive Krise am Bau und die Aufträge fallen massenweise weg.
Da kann man auch mal günstig bauen.
Es soll ja auch Leute geben die für nur 2000 Euro je qm bauen können.
Mit dem Niedergang der deutschen Industrie werden auch die Immobilienpreise sinken. In den USA übrigens ist der Hypothekenzins schon bei über 8 Prozent. Wie willst du da noch diese hochpreisigen Häuser finanzieren? Das geht doch überhaupt nicht.
Die Preise der letzten Jahre sind einfach Mondpreise. Davon sollte man sich verabschieden. Das wird nun alles wieder eingenordet.
Sowohl die Materialpreise als auch die Lohnkosten dürften spürbar sinken.
Das Problem der nächsten Monate und Jahre wird eine gewaltige Liquiditätskrise sein. Keiner wird mehr Geld haben. Die Realeinkommen sinken immer weiter, die finanzierungskosten seigen immer weiter, die Kreditvergabe der Banken wir restriktiv.
Wer genug Cash im Rücken hat, der wird sehr günstig bauen können.
Von daher würde ich für den genannten Preis heute nicht mehr bauen.
K
KarstenausNRW27.10.23 09:32Buchsbaum schrieb:
Klar lese ich. 300k ist trotzdem viel zu teuer. Das ist und bleibt meine Meinung.Buchsbaum schrieb:
Das wird nun alles wieder eingenordet.
Sowohl die Materialpreise als auch die Lohnkosten dürften spürbar sinken.Buchsbaum schrieb:
Die Immobilienpreise sinken, die Baukosten werden sinkenVielen Dank für Deine Einschätzung. Leider gibst Du nur eine Prognose für die Zukunft ab. Er will aber im Jetzt und Hier bauen. Da helfen keine Einschätzungen nach dem Motto "... das wird in Zukunft günstiger".
Also hast Du doch nicht gelesen.
Es ist also ein offener Rohbau inkl. Erdarbeiten für 338qm - somit rd. 1.000€ den qm. Ist zumindest kein Rohbauer, der gerade leere Auftragsbücher hat.
Marktüblich ist der Preis allerdings schon, wenn auch eher in der oberen Hälfte angesiedelt. Direkt abschließen würde ich dort nicht
Ähnliche Themen