B
BruckHaus25.03.21 17:14Hallo zusammen, wie haben die Möglichkeit ein Grundstück für ein Kettenhaus zu kaufen und versuchen uns gerade an ersten Grundrissideen. Das Grundstück ist 14,5m breit und 22,5m lang und soweit wir das richtig verstehen muss auf die linke Seite eine 3m Breite Garage. Rechts endet unser Grundstück mit der Straße und daher einen Grenzabstand von 2,5m.
Ich hänge euch mal meine aktuellen Grundrisse und den Bebauungsplan (Grundstück markiert) an und freue mich über eure Meinungen. Vielen Dank bereits im Voraus



Ich hänge euch mal meine aktuellen Grundrisse und den Bebauungsplan (Grundstück markiert) an und freue mich über eure Meinungen. Vielen Dank bereits im Voraus
B
BruckHaus25.03.21 19:1711ant schrieb:
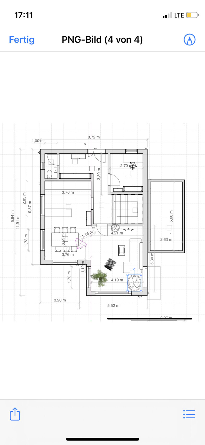
Kuckmada: https://www.hausbau-forum.de/threads/kettenhaus-auf-240qm-Grundstück-grundsatzfragen-machbar.29346/Danke über diesen Eintrag kam ich hier her, daher wäre es super wenn jemand auch mal unseren Grundriss im Detail anschautWieviele Personen welchen Alters sollen denn dort wohnen?
Die Tür zwischen Küche und Flur ist eine Schiebetür oder bleibt da offen?
Sehe ich das richtig, dass garkeine Badewanne geplant ist? Wäre mir wichtiger als zwei waschbecken, auch wenn die zugegebener Maßen sehr praktisch sind.
Die "Wände um die Dusche - sollen die Massiv? Glas würde das ganze deutlich heller gestalten.
Mir fehlt ein bißchen Platz für die Leitungen, wie kommt das Abwasser aus dem OG-Bad raus?
Bürotür (EG rechts oben) würde ich etwas nach oben schieben, damit dahiner auch ein tiefer schrank passt.
Gleiches überlegen für das Zimmer im OG rechts unten neben dem Fenster.
Das Gäste-WC würde ich ein bißchen breiter machen und dafür etwas Garderobe opfern.
Bei der Küche würde ich statt zwei paralleler Arbeitsvberiche eine L-Form bevorzugen, aber das ist sicherlich stark Geschmackssache.
Die Wand im OG zwischen Schlafzimmer und Flur-Arbeitsplatz würde ich so ausführen lassen, so dass man sie später umbauen kann (ggfs. mit Blick auch auf die Fußbodenheizung), z.B. zu einer Ankleide im/am Schlafzimmer.
mfg
Die Tür zwischen Küche und Flur ist eine Schiebetür oder bleibt da offen?
Sehe ich das richtig, dass garkeine Badewanne geplant ist? Wäre mir wichtiger als zwei waschbecken, auch wenn die zugegebener Maßen sehr praktisch sind.
Die "Wände um die Dusche - sollen die Massiv? Glas würde das ganze deutlich heller gestalten.
Mir fehlt ein bißchen Platz für die Leitungen, wie kommt das Abwasser aus dem OG-Bad raus?
Bürotür (EG rechts oben) würde ich etwas nach oben schieben, damit dahiner auch ein tiefer schrank passt.
Gleiches überlegen für das Zimmer im OG rechts unten neben dem Fenster.
Das Gäste-WC würde ich ein bißchen breiter machen und dafür etwas Garderobe opfern.
Bei der Küche würde ich statt zwei paralleler Arbeitsvberiche eine L-Form bevorzugen, aber das ist sicherlich stark Geschmackssache.
Die Wand im OG zwischen Schlafzimmer und Flur-Arbeitsplatz würde ich so ausführen lassen, so dass man sie später umbauen kann (ggfs. mit Blick auch auf die Fußbodenheizung), z.B. zu einer Ankleide im/am Schlafzimmer.
mfg
BruckHaus schrieb:
soweit wir das richtig verstehen muss auf die linke Seite eine 3m Breite Garage. Rechts endet unser Grundstück mit der StraßeDas links ist das andere rechts?Mit dem Fragebogen erübrigen sich 90% der Nachfragen.