Hausbau - Ratgeber
Bauherrenhilfe
- Bauherrenhilfe vor Vertragsabschluss
-- Warum einen unabhängigen Baubetreuer?
-- Vertragsgrundlagen
-- Bausumme
-- Zahlungsplan zur Kostenkontrolle
-- Pflichten des Bauherren vor Vertragsabschluss
-- Unterlagen beim Hausbau vor Vertragsabschluss
- Bauherrenhilfe nach Vertragsabschluss
-- Bauantrag bei Behörden
-- Bau-Genehmigungsverfahren bei Baubehörden
-- Bauspezifische Versicherungen
-- Bauzeitenplan
-- Baubeginn - die Letzten Pflichten der Bauherrschaft
- Bauherrenhilfe während der Bauzeit
- Gewährleistungsansprüche
- Bauabnahme
Baufinanzierung
- Baufinanzierung - Allgemeine Fragen
- Kreditarten
- Kredit-Konditionen
- Bausparen
- Staatliche Förderungen
- Verkehrswert
- Haushaltsrechnung und Bonität
Hausbau Planung
- Haustypen
- Hausbau Vorbereitungsarbeiten
- Das Baugrundstück
- Baugrund beim Hausbau
- Baurecht
- Gebäudeschutz
- Erdarbeiten und Wasserhaltung
- Stützmauern
- Einfriedung
- Untergeschoss
- Kanalisation
- Tragende Elemente
- Nichttragende Innenwände
- Fundation / Fundament
- Deckenkonstruktionen
- Dächer
- Kaminanlagen
- Treppen Rampen Leitern
- Dachbeläge und Spengler
- Fenster
- Sonnen und Wetterschutz
- Aussenputze
- Einbauten, Küchen, Türen
- Bodenbeläge und Unterlagsböden
- Parkett
- Gips, Wand, Decke
Haustechnik und Energie
- Heiztechnik
- Lüftung und Klimatechnik
- Sanitärtechnik
- Elektrotechnik
- Erneuerbare Energie
Whirlpools / Jacuzzi
Hausbau Magazin
- Baufinanzierung trotz Krise?
- Das Blockhaus
- Moderne Dämmstoffe im Vergleich
- Erker Vor- und Nachteile
- Glasflächen beim Hausbau
- Günstig ein Haus Bauen
- Mediterraner Hausbaustil
- Mehrgenerationenhaus
- Moderne Architektur
- Gartengestaltung leicht gemacht
- Traditioneller Ziegelbau
- Villa als höchster Traum
- Im Eigenheim Ruhestand geniessen
- Altbau sanieren
- Kauf einer Holzgarage
- Immobilienmakler
- Arbeitshandschuhe für den Winter
- Zuhause verschönern
- Outdoor-Plissees
- Schlafzimmer planen
- Terrassenüberdachung
- Wohngebäudeversicherung
- Zaunarten und Eigenschaften
- Hauseingang gestalten
- Der perfekte Grundriss
- Sparsamer heizen im Altbau
- Einfamilienhaus smart finanzieren
- Planung einer PV-Anlage
- Neues Haus
- Immobilienfinanzierung
- Installation einer Photovoltaikanlage
- Asbest erkennen und entfernen
- Gartenpflege im Frühling – worauf achten
- Sauna im Fokus - Wellness zuhause
- Erfolgreich vermieten
- Die perfekte Winterbekleidung
- Das Niedrigenergiehaus
- Der April und seine Stürme
- Architektonische Vielfalt
- Ökologisch und nachhaltig bauen
- Das perfekte Schlafzimmer
- Nachhaltige Energieversorgung
- Zukunftsorientiert bauen
- Nachhaltigkeit beim Hausbau
- Tiny Houses
- Wärmepumpen als nachhaltige Heizvariante
- Maßgeschneiderten Kleiderschrank
- Der richtige Baukredit
- Ratgeber für erfolgreichen Hausbau
- Haus als Altersvorsorge
Do-it-yourself Anleitungen
- Verlegeanleitung für Bodenbeläge und Parkett
- Bodenbeläge und Parkett reinigen und pflegen
- Malerarbeiten am Haus
- Garten Tipps
- Umzug und Reinigung

ᐅ Kalkulation Streifenfundament für einen Bungalow


Erstellt am: 10.02.22 09:12

B
BW MR BW MR
10.02.22 09:12
Hallo,

gibt es hier jemand der sich recht genau mit der Kalkulation eines Streifenfundamentes auskennt?
Fundament ist für einen Bungalow.

Gruß
O
Osnabruecker
10.02.22 09:30
Nein.

Bei tausenden Mitlesern gibt es hier niemanden der dir bei deiner präzisen Fragestellung helfen kann.

(Soll heißen: etwas mehr Infos müssen es schon sein... meinst du tatsächlich Kalkulation (= €) oder statische Bemessung?)
B
BW MR BW MR
10.02.22 09:35
Osnabruecker schrieb:

Nein.

Bei tausenden Mitlesern gibt es hier niemanden der dir bei deiner präzisen Fragestellung helfen kann.

(Soll heißen: etwas mehr Infos müssen es schon sein... meinst du tatsächlich Kalkulation (= €) oder statische Bemessung?)

ich wollte erstmal wissen ob hier jemand ist der das einschätzen bevor ich mehr infos schicke.
B
BW MR BW MR
10.02.22 09:38

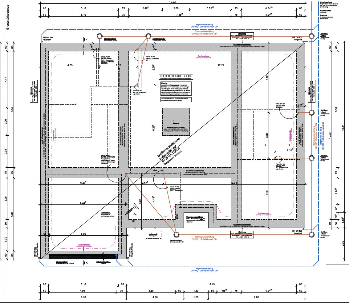
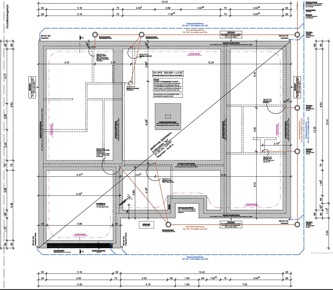
Grundriss eines Gebäudes mit Wänden, Türen, Maßen und Nutzungsdetails.





Tabelle mit Bau-Positionen: Baustelleneinrichtung, Erdarbeiten, Aushub, Schotter, Fundament, Stahl


Hier sind der Fundamentplan und der Arbeitsumfang.
O
Osnabruecker
10.02.22 10:03
Nicht gut die Aufstellung.
Zu wenig m2 oberboden (Gerüste, Arbeitsraum?)
Wie dick Oberboden?
Wohin mit dem Oberboden?
Für die Aushubarbeiten muss man Bestandshöhen und Bodengutachten kennen.

Für die Fundamente im PDF fehlt mir die Lupe , das sollte man aber selbst mit Länge *Breite× Tiefe können.

Stahlmengen gibt die Statik vor.
B
BW MR BW MR
10.02.22 10:14
Osnabruecker schrieb:

Nicht gut die Aufstellung.
Zu wenig m2 oberboden (Gerüste, Arbeitsraum?)
Wie dick Oberboden?
Wohin mit dem Oberboden?
Für die Aushubarbeiten muss man Bestandshöhen und Bodengutachten kennen.

Für die Fundamente im PDF fehlt mir die Lupe , das sollte man aber selbst mit Länge *Breite× Tiefe können.

Stahlmengen gibt die Statik vor.
Oberboden und Aushub für die Fundamente kommt auf die Seite
Fundament sind ungefähr so 70m3
oberbodenfundamentekalkulation