ᐅ Ideensammlung zu Grundriss
Erstellt am: 25.09.15 17:05
Hallo!
Guten Tag zusammen. Ich bin neu hier im Forum und möchte gleich einmal mit der Tür ins Haus fallen.
Ich würde gerne einen Grundriss zur Diskussion stellen.
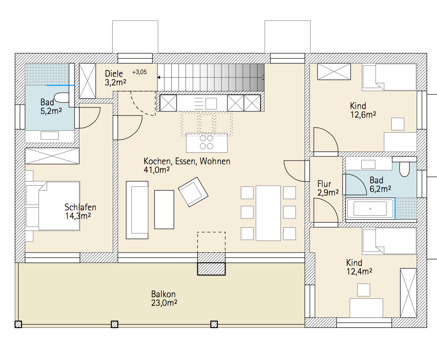
Es handelt sich um den ersten OG und dort soll Platz für eine 4 köpfige Familie sein.
Die Außenmauern sind fix, leider auch die Größe des Balkons.
Ebenso die Position der Treppe und der beiden tragenden Wände.
Was kann man besser machen? Um Platz und Stauraum zu gewinnen und evtl. eine Ankleide für das Schlafzimmer zu schaffen?

Die Außenmaße des Baukörpers betragen exakt 15*10m.
Guten Tag zusammen. Ich bin neu hier im Forum und möchte gleich einmal mit der Tür ins Haus fallen.
Ich würde gerne einen Grundriss zur Diskussion stellen.
Es handelt sich um den ersten OG und dort soll Platz für eine 4 köpfige Familie sein.
Die Außenmauern sind fix, leider auch die Größe des Balkons.
Ebenso die Position der Treppe und der beiden tragenden Wände.
Was kann man besser machen? Um Platz und Stauraum zu gewinnen und evtl. eine Ankleide für das Schlafzimmer zu schaffen?
Die Außenmaße des Baukörpers betragen exakt 15*10m.
Zu wenig Privatsphäre sowohl für Erwachsene als auch für Kinder und zu laut für Babys und Kleinkinder...
Situation 1: Baby schläft ab 19uhr in seinem Zimmer, ihr habt noch Besuch von Freunden vielleicht mit älteren Kindern. Was tun? Nur noch flüstern und die Kinder anbinden?
Situation 2: Du sitzt abends leicht bekleidet auf der Couch mit einem Bierchen in der Hand und deine Tochter/Sohn kommen mit Freund/Freundin von einer Feier nach Hause... Könnte peinlich werden...
Situation 1: Baby schläft ab 19uhr in seinem Zimmer, ihr habt noch Besuch von Freunden vielleicht mit älteren Kindern. Was tun? Nur noch flüstern und die Kinder anbinden?
Situation 2: Du sitzt abends leicht bekleidet auf der Couch mit einem Bierchen in der Hand und deine Tochter/Sohn kommen mit Freund/Freundin von einer Feier nach Hause... Könnte peinlich werden...
Zum einen habe auch ich den Eingang gesucht und dann nochmalig gelesen, dass es sich um das OG eines Zweifamilienhaus?, Mehrfamilienhaus? handelt.
Insofern hätte man schon mal ein paar Informationen genauer fliessen lassen können.
zB an @Kwasi : Um was handelt es sich denn? Was sind das für Fenster? Auch Wandmaße sind für eine Beurteilung ganz gut.
Ich könnte zB bemängeln, dass es keinen ausreichenden Schrankraum im Eltern Bereich gibt.
Gibt es ansonsten Abstellfläche? Die gibt es auf der Wohnebene überhaupt nicht.
Warum ist die Diele so verwinkelt und klein? Die könnte man doch sofort ohne Aufwand etwas größer planen.
Wem soll diese Wohnung dienen?
Sind dort Schrägen, die man in dieser Präsentation so ohne weiteres nicht erkennen kann?
@BeHaElJa @Kisska86 : in was für Wohnungen habt Ihr Euch getümmelt, dass Ihr diese als "NoGo" betrachtet? Bei uns werden nur noch solche gesucht und auch gebaut, in der man offenes Wohnen mit Kochen zentral setzt, dafür in diesem Bereich zugunsten Weitblick auf Intimsphäre bei der Couch verzichtet. Die Intimsphäre hat man dann in den Schlafräumen. Man beachte: es handelt sich um eine Wohnung!!!
Aus der zieht man eventuell auch mal wieder heraus, wenn die Kinder die 150cm-Marke überschreiten...
Insofern hätte man schon mal ein paar Informationen genauer fliessen lassen können.
zB an @Kwasi : Um was handelt es sich denn? Was sind das für Fenster? Auch Wandmaße sind für eine Beurteilung ganz gut.
Ich könnte zB bemängeln, dass es keinen ausreichenden Schrankraum im Eltern Bereich gibt.
Gibt es ansonsten Abstellfläche? Die gibt es auf der Wohnebene überhaupt nicht.
Warum ist die Diele so verwinkelt und klein? Die könnte man doch sofort ohne Aufwand etwas größer planen.
Wem soll diese Wohnung dienen?
Sind dort Schrägen, die man in dieser Präsentation so ohne weiteres nicht erkennen kann?
@BeHaElJa @Kisska86 : in was für Wohnungen habt Ihr Euch getümmelt, dass Ihr diese als "NoGo" betrachtet? Bei uns werden nur noch solche gesucht und auch gebaut, in der man offenes Wohnen mit Kochen zentral setzt, dafür in diesem Bereich zugunsten Weitblick auf Intimsphäre bei der Couch verzichtet. Die Intimsphäre hat man dann in den Schlafräumen. Man beachte: es handelt sich um eine Wohnung!!!
Aus der zieht man eventuell auch mal wieder heraus, wenn die Kinder die 150cm-Marke überschreiten...
Naja, ich gehe nicht jedem Trend nach... Zumindest nicht sofort.
Aber ich finde auch in eine Wohnung gehört eine vernünftige Diele/Flur. Ich habe kleine Kinder und könnte mir einfach nicht vorstellen abends mit Freunden auf der Couch zu sitzen, quatschen, lachen... Und meine Jungs sollen eine Tür dahinter oder eine Wand dahinter schlafen... geht nicht!
Aber ich finde auch in eine Wohnung gehört eine vernünftige Diele/Flur. Ich habe kleine Kinder und könnte mir einfach nicht vorstellen abends mit Freunden auf der Couch zu sitzen, quatschen, lachen... Und meine Jungs sollen eine Tür dahinter oder eine Wand dahinter schlafen... geht nicht!
Ähnliche Themen