Ideen für Außenanlage, Garten, Garten-Landschaftsbau - Vorschläge, Tipps?

4,30 Stern(e) 4 Votes
Zuletzt aktualisiert 08.01.2026
Sie befinden sich auf der Seite 9 der Diskussion zum Thema: Ideen für Außenanlage, Garten, Garten-Landschaftsbau - Vorschläge, Tipps?
>> Zum 1. Beitrag <<

Z

zizzi

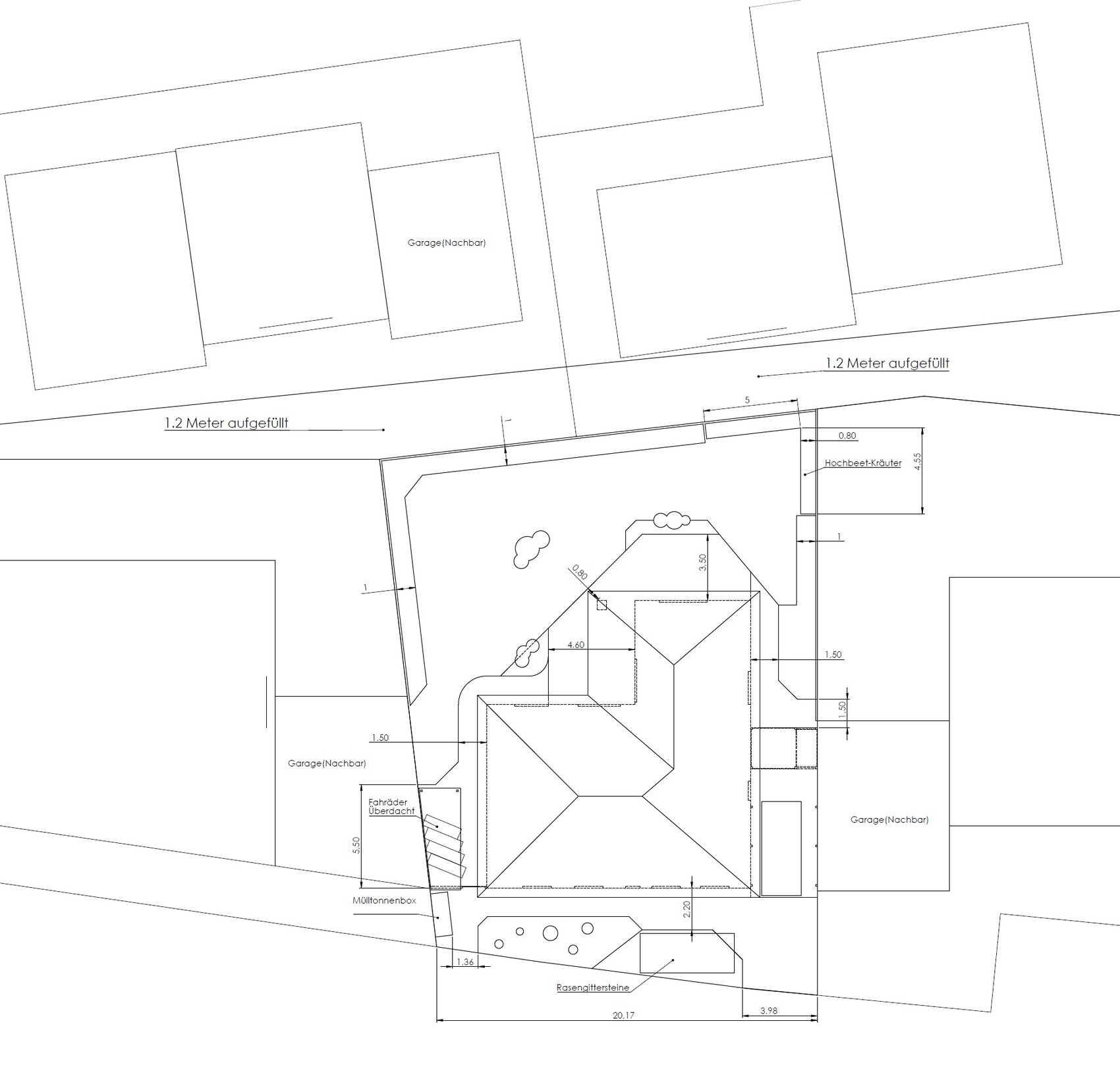
Danke für die Fotos und Infos...

Ich habe versucht alles maßstäblich nachzeichnen mit nicht dafür geeignete CAD-Programm(Ich habe nut das zu Verfügung gehabt). Der Garten habe ich so gestaltet, wie ich mir vorstellen konnte + eure Verbesserungsvorschläge. Vorgarten finde ich praktisch, negativ viel Pflaster. Für den Garten habe ich keine besondere Idee gehabt,vor allem für Beet (oben und links). Vielleicht macht Sinn, wenn das erst einfach Rasenfläche mache und mit der Zeit entscheide, wo am besten was hin soll, oder ist es so gut?

Wie findet ihr der Platz für Fahrräder und Mülltonnen?
Übrigens, Rechts-Oben ist Südseite. Das finde ich zu mindest gut...


Grundriss eines Gebäudes mit Garten, Zufahrt und Nachbarhäusern (Maßangaben)



Grundriss: Haus mit grauem Dach, grüne Gartenfläche, Gehwege, Beete, Einfahrt und Garage.



3D-Hausmodell mit dunklem Satteldach, Veranda und grünem Garten.



3D-Ansicht eines modernen Einfamilienhauses mit Terrasse, grünem Garten und Zufahrtsbereich



3D-Modell eines modernen Einfamilienhauses mit dunklem Dach und Garten.



3D-Render eines modernen Einfamilienhauses mit Garten, Terrasse und Zufahrt
 
Y

ypg

Das sieht doch schon mal gut aus. Büsche an der Terrasse oder im Rasen schaffen Räume, Schatten, Sicht- und Windschutz. Die Beete kann man dann später auch noch vergrößern und mit Stauden unterpflanzen. Genauso kannst Du es im Vorgarten machen.
Bissel Fetthenne, Gräser und Astern, kombiniert mit Immergrünen Büschen, die ggf rote Beeren im Winter tragen... im Sommer kann man Blühendes zwischenpflanzen.
 
Zuletzt aktualisiert 08.01.2026
Im Forum Bauplanung gibt es 5081 Themen mit insgesamt 100906 Beiträgen


Ähnliche Themen zu Ideen für Außenanlage, Garten, Garten-Landschaftsbau - Vorschläge, Tipps?
Nr.ErgebnisBeiträge
1Vorgarten Gestaltung Tipps erwünscht 31
2Anschlüsse Strom etc. für Vorgarten und Garten 23

Oben