Ich habe Probleme mit meinem Grundriss

4,50 Stern(e) 4 Votes
Zuletzt aktualisiert 13.10.2025
Sie befinden sich auf der Seite 2 der Diskussion zum Thema: Ich habe Probleme mit meinem Grundriss
>> Zum 1. Beitrag <<

H

Hannes-

Ach, gleich mehrere Architekten. Und jetzt darf die Community die Kastanien aus dem Feuer holen - aber selbstverständlich ohne mehr Einblick als "nötig". Ein bißchen mehr Wertschätzung wäre nett, als so einen Einzelgrundriß hinzuwerfen. Wenigstens ist der synoptisch, aber das Ganze erfaßt man daraus dennoch nicht. Ein Siedlungshäuschen wird an den Geldbeutel der neuen Besitzer angepaßt, das läßt sich immerhin herauslesen.
Hallo 11ant,
mit mehreren Architekten meine ich meine Architektin mit Partner. Wir versuchen das Gebäude unseren Bedürfnis anzupassen. Daran finde ich nichts verwerfliches. In unserer Region war und ist es leider fast unmöglich eine Immobilie zu erwerben.
Daher war dieses Objekt nun mal vorhanden und wir finden es gut.
Architektenzeichnung: modernes Haus mit Front- und Seitenansicht, Hanglage, Garten und Carport.

Zweigeschossiges Wohnhaus mit Terrasse, Carport und Hanglage – Architekturzeichnung.

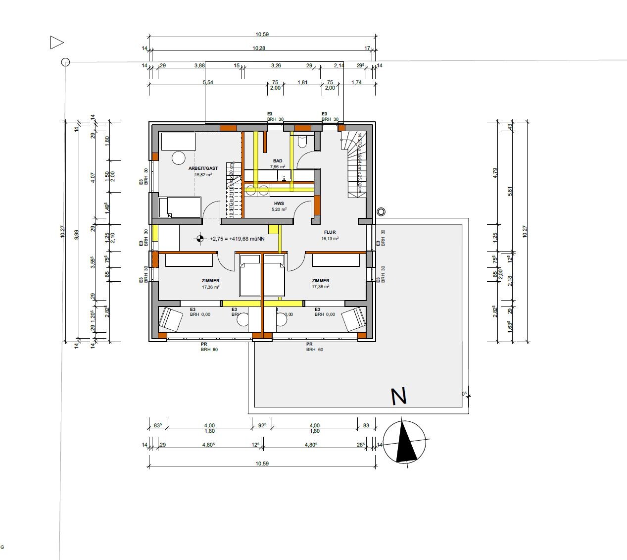
Grundriss eines Haus-Obergeschosses mit Flur, Bad, Arbeits-/Gästezimmer, zwei Zimmern, Terrasse rechts, Norden.

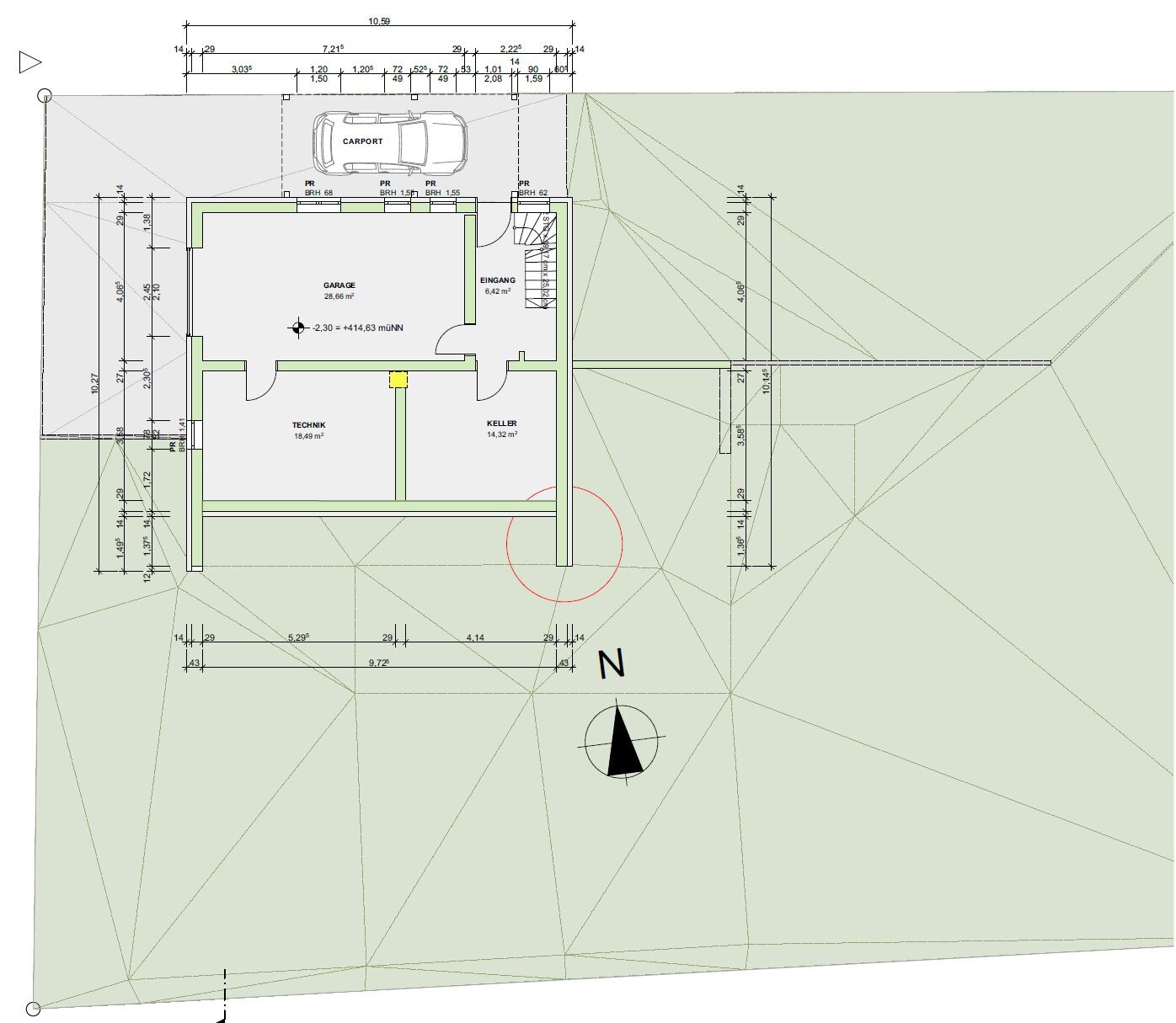
Grundriss eines Hauses: Garage, Technikraum, Keller, Eingang, Carport; Nordpfeil.

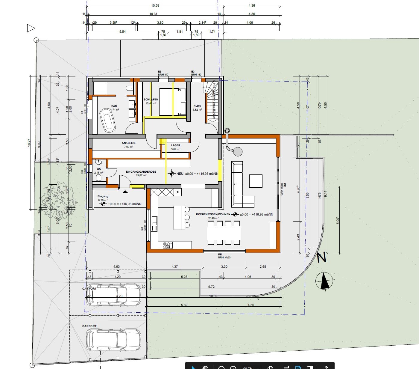
Grundriss eines Hauses mit Kochen/Essen/Wohnen, Schlafzimmer, Bad, Flur, Lager, Carport
 
S

Schorsch_baut

Also wenn eine Architektin aus so viel Fläche keine ordentliche „Suite“ basteln kann, dann liegts entweder an den Bauherren oder der Architektin. Der begehbare Wandschrank ist in meinen Augen in der Form eine Katastrophe und die freistehende Wanne bläst das Bad auf.
 
H

hanghaus2023

Dir geht es nur um das EG?

Warum hat man das OG komplett umgemodelt? Wenn der Balkon ungewünscht ist einfach da Fenster rein und gut ist.

Im EG gehört das Bad unter das Bad im OG.
 
Zuletzt aktualisiert 13.10.2025
Im Forum Grundrissplanung / Grundstücksplanung gibt es 2514 Themen mit insgesamt 87280 Beiträgen
Oben