ᐅ Haus / Carport mit L-Steinen oder gibt es bessere Alternativen?
Erstellt am: 04.11.21 12:03
P
PinkiponkP
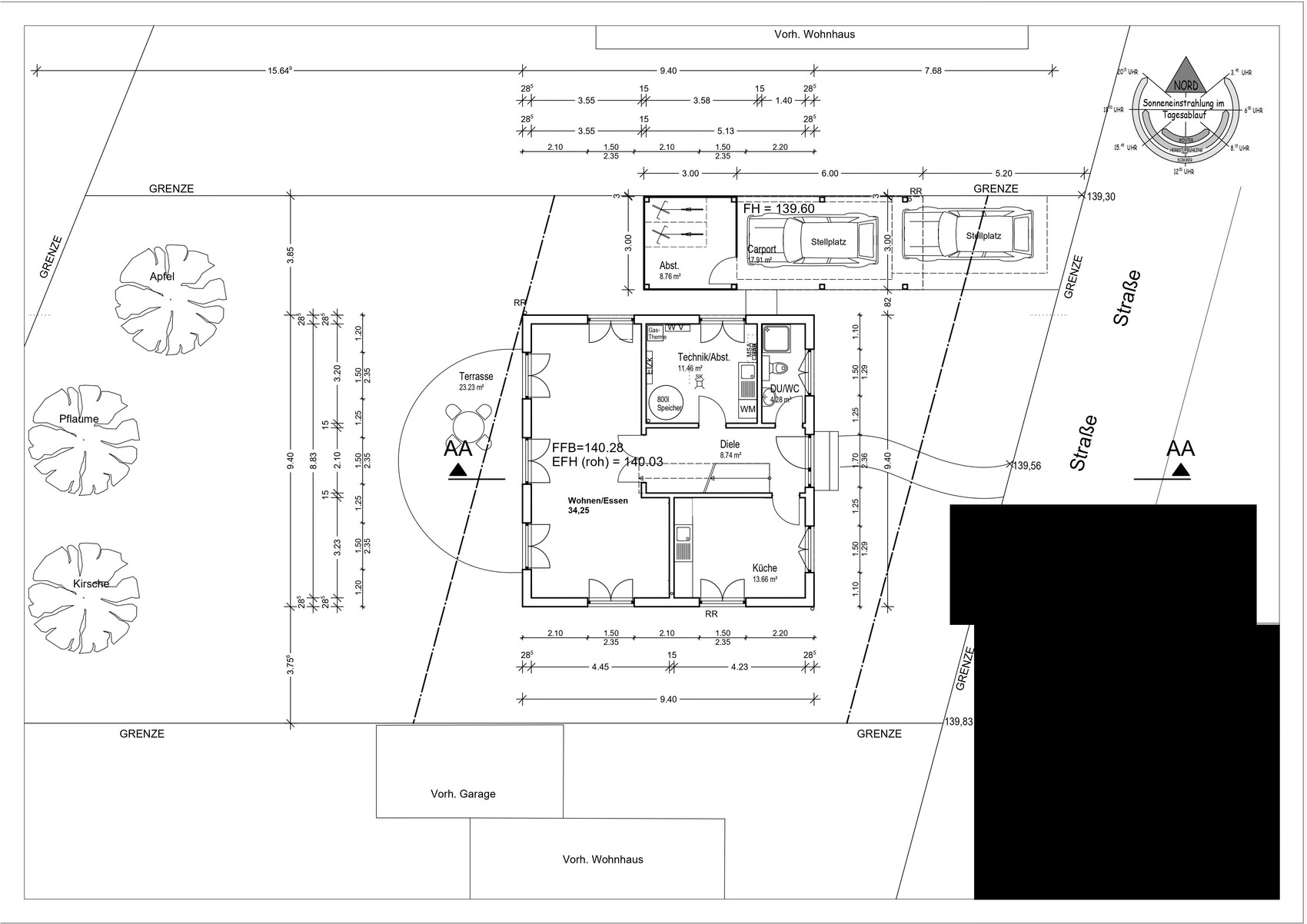
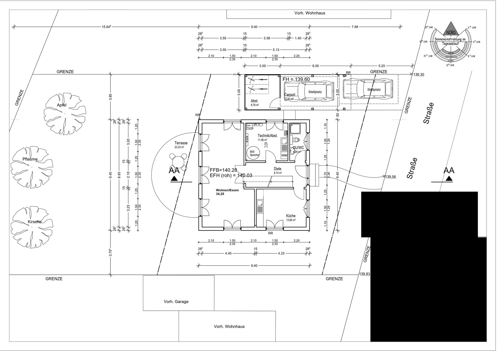
Pinkiponk04.11.21 12:03Um eine ebenerdige Verbindung zwischen Haus und Carport/Abstellraum herzustellen, scheint es so zu sein, als müssten wir rechts vom Haus (von der Straße auf das Haus/den Carport blickend gesehen) Erde aufschütten. Bisher wurde als Stückmauer an L-Steine gedacht, die auf unserer Seite des Grundstücks dann in der Erde stecken würden. Kennt Ihr bessere Möglichkeiten? Ich weiß nicht einmal, wie viele Zentimeter wir auffüllen müssen.
Zur Straße hin (also die Zufahrtsstrecke) wäre eine leichte Neigung, aber der Carport / Abstellraum sollte gerade sein.
(Für das zweite Foto wurde mir kein "Vorschaubild" angeboten.)


Zur Straße hin (also die Zufahrtsstrecke) wäre eine leichte Neigung, aber der Carport / Abstellraum sollte gerade sein.
(Für das zweite Foto wurde mir kein "Vorschaubild" angeboten.)
S
Seppl's Häusle04.11.21 15:57Wenn dort keine statischen Anforderungen erfüllt werden müssen, kannst du einfach mit Pflanzsteinen oder Pflanzringenarbeiten.
Bei uns wurde damit eine 2,5m hohe Mauer gebaut und statisch abgenickt. Wenn es nur einige Zentimeter sind brauchst du die nichtmal allzu tief eingraben und ohne eisen betonieren. Sollte es doch etwas mehr Höhenunterschied sein als erhofft, tiefer eingraben und Eisen rein.
Bei uns wurde damit eine 2,5m hohe Mauer gebaut und statisch abgenickt. Wenn es nur einige Zentimeter sind brauchst du die nichtmal allzu tief eingraben und ohne eisen betonieren. Sollte es doch etwas mehr Höhenunterschied sein als erhofft, tiefer eingraben und Eisen rein.
haydee schrieb:
Auf welche Höhe kommt das Carport?Netter Versuch, aber @Pinkiponk ist er so die Fragestellerin als -beantworterin 😳 Die Frage warum das Haus so viel höher als die Strasse stehen soll wurde jedenfalls schon mehrfach ´überlesen´ 😉
Warum der Carport partout 30cm höher als das vorhandene Nachbargrundstück, und das Haus - ohne Keller - 80cm höher als die Strasse schweben soll, hat bisher noch keiner verstanden. Sinnvollerweise würde man Strasse und nördliche Grenze als gegeben ansehen und daraus die Höhe Fertigfußboden bzw Carport ableiten.
P
Pinkiponk04.11.21 17:26Hangman schrieb:
Netter Versuch, aber @Pinkiponk ist er so die Fragestellerin als -beantworterin 😳 Die Frage warum das Haus so viel höher als die Strasse stehen soll wurde jedenfalls schon mehrfach ´überlesen´ 😉Ich kenne die Antwort darauf nicht. Und den Planer fragen kann ich nicht. Es gibt nur den Architekten des Fertighausherstellers und seine Arbeit ist abgeschlossen. Ich hoffe, dass er sich etwas dabei gedacht hat. Wir sind zwischenzeitlich einfach nur noch froh, wenn das Haus einmal stehen sollte und wir eine funktionsfähige Heizung, warmes Wasser etc. haben. Und fehlt die Erfahrungen die Entscheidungen der Fachleute zu hinterfragen, obwohl wir uns wirklich sehr bemühen.P
Pinkiponk04.11.21 17:36haydee schrieb:
Auf welche Höhe kommt das Carport?Das weiß ich leider nicht. Damit wollte ich mich erst beschäftigen, wenn das Haus steht und ich alles vor Augen habe.Ähnliche Themen