ᐅ Grundrisszeichnung Einfamilienhaus
Erstellt am: 07.02.17 14:45
L
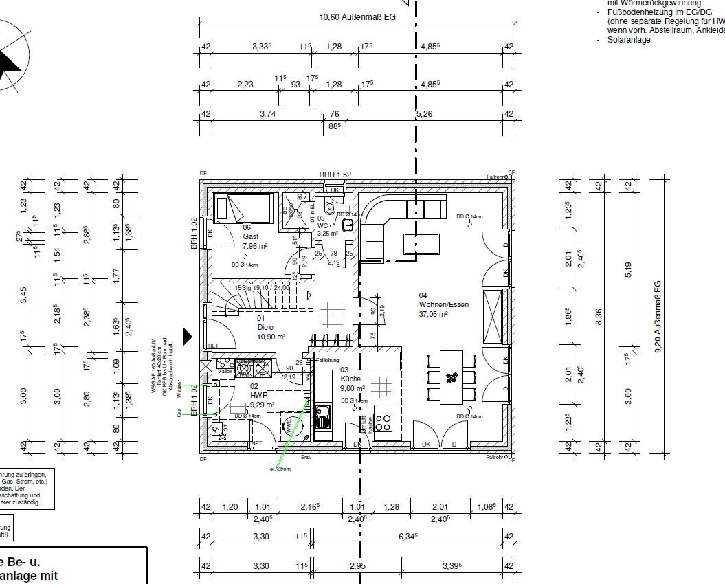
Lulu2411807.02.17 14:45Wie so oft: eine Luxus-Suite für die Eltern mit Südausrichtung und Kind 2 muß mit Nord-Ost und 10qm vorlieb nehmen.
Kann natürlich sein, daß nur ein Kind geplant/da ist. Daher bitte vorab den Fragebogen ausfüllen. Kind 1 hat ein nettes Zimmer, auch wenn ich hier trotzdem das Elternschlafzimmer auf die andere Seite legen würde. Überlegt, ob ihr wirklich ein Südzimmer zum Schlafen wollt.
Wie so oft: eine Luxus-Suite für die Eltern mit Südausrichtung und Kind 2 muß mit Nord-Ost und 10qm vorlieb nehmen.
Kann natürlich sein, daß nur ein Kind geplant/da ist. Daher bitte vorab den Fragebogen ausfüllen. Kind 1 hat ein nettes Zimmer, auch wenn ich hier trotzdem das Elternschlafzimmer auf die andere Seite legen würde. Überlegt, ob ihr wirklich ein Südzimmer zum Schlafen wollt.
Kann natürlich sein, daß nur ein Kind geplant/da ist. Daher bitte vorab den Fragebogen ausfüllen. Kind 1 hat ein nettes Zimmer, auch wenn ich hier trotzdem das Elternschlafzimmer auf die andere Seite legen würde. Überlegt, ob ihr wirklich ein Südzimmer zum Schlafen wollt.
Wie so oft: eine Luxus-Suite für die Eltern mit Südausrichtung und Kind 2 muß mit Nord-Ost und 10qm vorlieb nehmen.
Kann natürlich sein, daß nur ein Kind geplant/da ist. Daher bitte vorab den Fragebogen ausfüllen. Kind 1 hat ein nettes Zimmer, auch wenn ich hier trotzdem das Elternschlafzimmer auf die andere Seite legen würde. Überlegt, ob ihr wirklich ein Südzimmer zum Schlafen wollt.
L
Lulu2411807.02.17 17:28Hallo,
wir haben zwar nur ein Kind, aber es sind weitere geplant.
Eigentlich wollten wir auch nicht so ein großes Elternzimmer, aber die Zeichner scheint das nicht ganz verstanden zu haben. Uns war es nur wichtig, dass unser jetziges Schlafzimmer rein passt ( 3m Kleiderschrank und 1,80mx2,00 m Bett). Irgendwie sind wir mit dem Grundriss im OG auch nicht zufrieden, aber wissen auch nicht wie man es anders bzw. besser machen kann.
wir haben zwar nur ein Kind, aber es sind weitere geplant.
Eigentlich wollten wir auch nicht so ein großes Elternzimmer, aber die Zeichner scheint das nicht ganz verstanden zu haben. Uns war es nur wichtig, dass unser jetziges Schlafzimmer rein passt ( 3m Kleiderschrank und 1,80mx2,00 m Bett). Irgendwie sind wir mit dem Grundriss im OG auch nicht zufrieden, aber wissen auch nicht wie man es anders bzw. besser machen kann.
Ich hab jetzt nicht die Maße berücksichtigt, aber die Zimmer mal klassisch aufgeteilt, so wie man es in den meisten Grundrissen sieht. Vielleicht ist das ja besser für Euch. Nur als Skizze zum Überlegen. Die Zimmer lassen sich durch verschieben der großen senkrechten Wand recht leicht größer und kleiner machen. Bad ist dann allerdings über dem Gast. Ist die Frage, wie oft Gäste kommen...

L
Lulu2411807.02.17 20:10kaho674 schrieb:
Ich hab jetzt nicht die Maße berücksichtigt, aber die Zimmer mal klassisch aufgeteilt, so wie man es in den meisten Grundrissen sieht. Vielleicht ist das ja besser für Euch. Nur als Skizze zum Überlegen. Die Zimmer lassen sich durch verschieben der großen senkrechten Wand recht leicht größer und kleiner machen. Bad ist dann allerdings über dem Gast. Ist die Frage, wie oft Gäste kommen...Super, vielen Dank. Hatten wir uns auch so in der Form überlegt. Gäste haben wir eigentlich kaum da, es sollte mehr als kleines Arbeitszimmer dienen. Die Frage ist natürlich jetzt, ob durch die Änderung, der Wechsel in den Spitzboden noch gegeben ist. Es soll spätermal ausgebaut werden und an diese Stelle eine Raumspartreppe installiert werden