Liebes Forum,
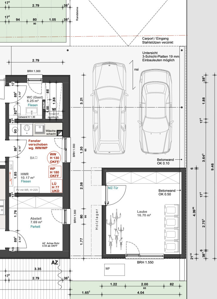
Unsere Planung ist fast abgeschlossen, aber irgendwie könnte ich noch ein paar Meinungen zu unserem Hauswirtschaftsraum gebrauchen. Mit macht das derzeitige Layout mit Wärmepumpe, Warmwasserspeicher, Lüftungsanlage, Photovoltaik Wechselrichter/Batteriespeicher und Schaltschrank noch nicht wirklich glücklich. Der Warmwasserspeicher vor dem Fenster bereitet mir ein bisschen Bauchschmerzen und ich dachte, bei der Lüftungsanlage müssten das An- und Abluftrohr in der Wand weiter auseinander sitzen. Da ich die Mindestabstände zwischen den Komponenten nicht kenne, weiß ich auch nicht, wie man es anders stellen könnte. Vielleicht habt ihr noch Ideen?

Unsere Planung ist fast abgeschlossen, aber irgendwie könnte ich noch ein paar Meinungen zu unserem Hauswirtschaftsraum gebrauchen. Mit macht das derzeitige Layout mit Wärmepumpe, Warmwasserspeicher, Lüftungsanlage, Photovoltaik Wechselrichter/Batteriespeicher und Schaltschrank noch nicht wirklich glücklich. Der Warmwasserspeicher vor dem Fenster bereitet mir ein bisschen Bauchschmerzen und ich dachte, bei der Lüftungsanlage müssten das An- und Abluftrohr in der Wand weiter auseinander sitzen. Da ich die Mindestabstände zwischen den Komponenten nicht kenne, weiß ich auch nicht, wie man es anders stellen könnte. Vielleicht habt ihr noch Ideen?
Karlsson schrieb:
Unsere Planung ist fast abgeschlossen, aber irgendwie könnte ich noch ein paar Meinungen zu unserem Hauswirtschaftsraum gebrauchen.So (mit dem Planausschnittchen) taugt das nicht für eine fruchtbare Diskussion. Verlinke Deine Planung bitte selbst, auch ich habe mal Sonntag.
https://www.instagram.com/11antgmxde/
https://www.linkedin.com/company/bauen-jetzt/
H
hanghaus202312.02.24 11:32Was sagt denn Dein Architekt dazu? Sind oben links Waschmaschine und Trockner?
Mir fehlen da noch ein paar Sachen wie Wasseruhr, Hausanschlusskasten für Strom und wo kommt der Glasfaser/DSL Anschluss mit dem Router/Switch/Patchpanel hin.
Neben den Gerätschaften ist auch noch Montageplatz und Platz für Rohre neben den Geräten nötig. Dies muss ein Profi planen.
Neben den Gerätschaften ist auch noch Montageplatz und Platz für Rohre neben den Geräten nötig. Dies muss ein Profi planen.
M
motorradsilke12.02.24 12:47In der Annahme, dass planoben Waschmaschine und Trockner sind, würde ich diese mit den Heizungs- und Lüftungskomponenten tauschen. So bekommt Derjenige, der die Maschine belädt, jedes Mal die Tür ins Kreuz, wenn Jemand reinkommt. Planrechts hätte man mit dem Fenster eine schöne Arbeitsfläche.
Ja hätte jetzt auch die ganze Waschzeile mit den Heizi/Lüfti sachen getauscht.
Du brauchst am ehesten dort Platz und Licht. Hinter dem WW-Speicher (der bei uns über 1,8n hoch ist) ist das Fenster halb verdeckt.
Trockner und Waschmaschine kannst du schön unter dem Fenster sogar noch erhöht oder halt unter ne Arbeitszeile planen. Waschbecken dann in der Ecke. Neben dem Fenster kannst du immer noch Wandschränke als Stauraum planen.
Du brauchst am ehesten dort Platz und Licht. Hinter dem WW-Speicher (der bei uns über 1,8n hoch ist) ist das Fenster halb verdeckt.
Trockner und Waschmaschine kannst du schön unter dem Fenster sogar noch erhöht oder halt unter ne Arbeitszeile planen. Waschbecken dann in der Ecke. Neben dem Fenster kannst du immer noch Wandschränke als Stauraum planen.
Ähnliche Themen