perth
29.11.2018 05:19:37
- #1
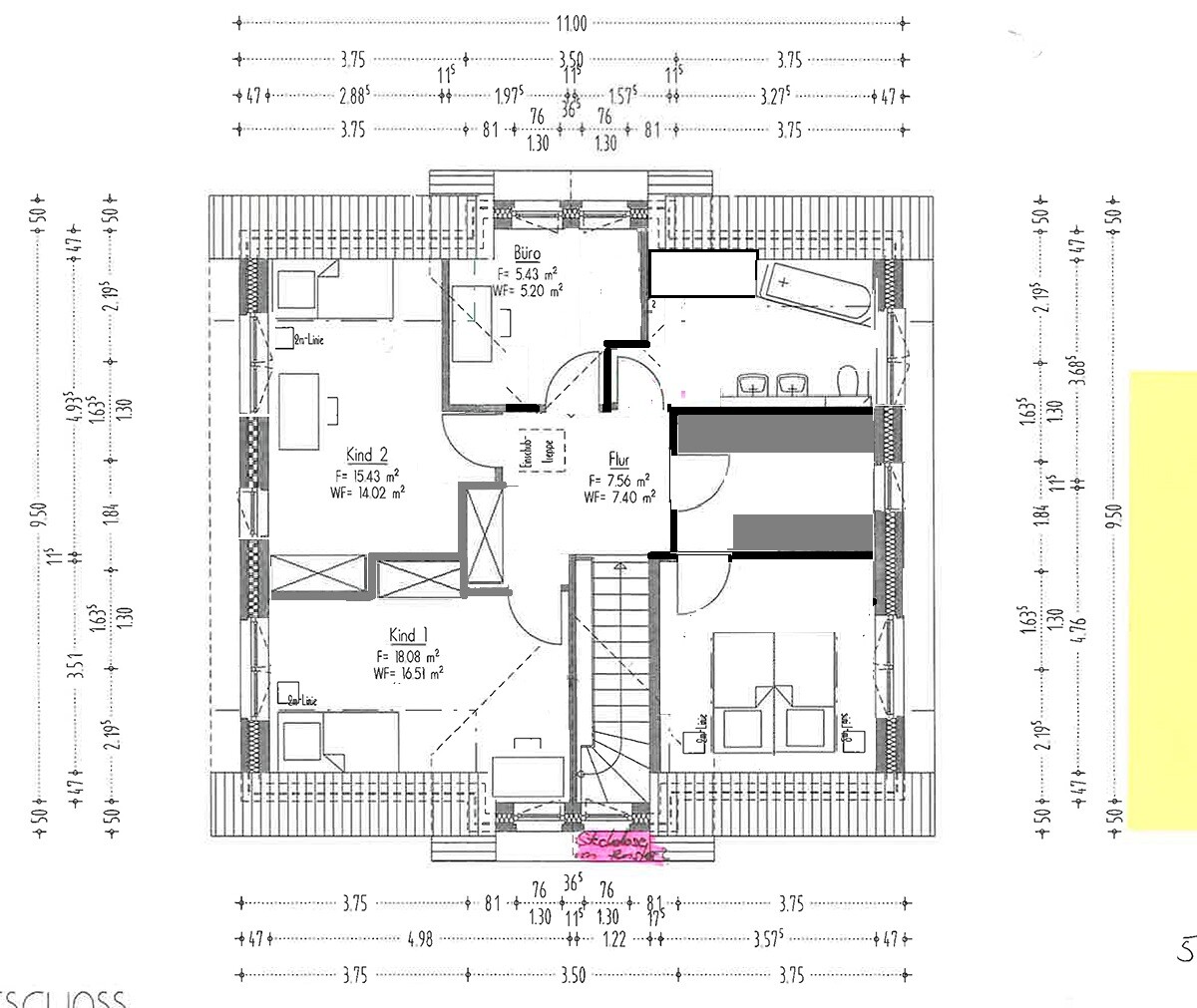
Ciertamente no soy un experto en planos. Sin embargo, me gustaría hacerte una propuesta para el primer piso.

Puerta corredera al dormitorio principal. En el pasillo, espacio de almacenamiento para ropa de cama/toallas/aspiradora, vestidor más grande, oficina más grande.
Puerta corredera al dormitorio principal. En el pasillo, espacio de almacenamiento para ropa de cama/toallas/aspiradora, vestidor más grande, oficina más grande.