Hausbau - Ratgeber
Bauherrenhilfe
- Bauherrenhilfe vor Vertragsabschluss
-- Warum einen unabhängigen Baubetreuer?
-- Vertragsgrundlagen
-- Bausumme
-- Zahlungsplan zur Kostenkontrolle
-- Pflichten des Bauherren vor Vertragsabschluss
-- Unterlagen beim Hausbau vor Vertragsabschluss
- Bauherrenhilfe nach Vertragsabschluss
-- Bauantrag bei Behörden
-- Bau-Genehmigungsverfahren bei Baubehörden
-- Bauspezifische Versicherungen
-- Bauzeitenplan
-- Baubeginn - die Letzten Pflichten der Bauherrschaft
- Bauherrenhilfe während der Bauzeit
- Gewährleistungsansprüche
- Bauabnahme
Baufinanzierung
- Baufinanzierung - Allgemeine Fragen
- Kreditarten
- Kredit-Konditionen
- Bausparen
- Staatliche Förderungen
- Verkehrswert
- Haushaltsrechnung und Bonität
Hausbau Planung
- Haustypen
- Hausbau Vorbereitungsarbeiten
- Das Baugrundstück
- Baugrund beim Hausbau
- Baurecht
- Gebäudeschutz
- Erdarbeiten und Wasserhaltung
- Stützmauern
- Einfriedung
- Untergeschoss
- Kanalisation
- Tragende Elemente
- Nichttragende Innenwände
- Fundation / Fundament
- Deckenkonstruktionen
- Dächer
- Kaminanlagen
- Treppen Rampen Leitern
- Dachbeläge und Spengler
- Fenster
- Sonnen und Wetterschutz
- Aussenputze
- Einbauten, Küchen, Türen
- Bodenbeläge und Unterlagsböden
- Parkett
- Gips, Wand, Decke
Haustechnik und Energie
- Heiztechnik
- Lüftung und Klimatechnik
- Sanitärtechnik
- Elektrotechnik
- Erneuerbare Energie
Whirlpools / Jacuzzi
Hausbau Magazin
- Baufinanzierung trotz Krise?
- Das Blockhaus
- Moderne Dämmstoffe im Vergleich
- Erker Vor- und Nachteile
- Glasflächen beim Hausbau
- Günstig ein Haus Bauen
- Mediterraner Hausbaustil
- Mehrgenerationenhaus
- Moderne Architektur
- Gartengestaltung leicht gemacht
- Traditioneller Ziegelbau
- Villa als höchster Traum
- Im Eigenheim Ruhestand geniessen
- Altbau sanieren
- Kauf einer Holzgarage
- Immobilienmakler
- Arbeitshandschuhe für den Winter
- Zuhause verschönern
- Outdoor-Plissees
- Schlafzimmer planen
- Terrassenüberdachung
- Wohngebäudeversicherung
- Girokonto für Bauherren finden
- Hauseingang gestalten
- Zaunarten und Eigenschaften
- Der perfekte Grundriss
- Sparsamer heizen im Altbau
- Einfamilienhaus smart finanzieren
- Planung einer PV-Anlage
- Neues Haus
- Immobilienfinanzierung
- Installation einer Photovoltaikanlage
- Asbest erkennen und entfernen
- Gartenpflege im Frühling – worauf achten
- Sauna im Fokus - Wellness zuhause
- Erfolgreich vermieten
- Die perfekte Winterbekleidung
- Das Niedrigenergiehaus
- Der April und seine Stürme
- Architektonische Vielfalt
- Ökologisch und nachhaltig bauen
- Das perfekte Schlafzimmer
- Nachhaltige Energieversorgung
- Zukunftsorientiert bauen
- Nachhaltigkeit beim Hausbau
- Tiny Houses
- Wärmepumpen als nachhaltige Heizvariante
- Maßgeschneiderten Kleiderschrank
- Der richtige Baukredit
- Ratgeber für erfolgreichen Hausbau
- Haus als Altersvorsorge
Do-it-yourself Anleitungen
- Verlegeanleitung für Bodenbeläge und Parkett
- Bodenbeläge und Parkett reinigen und pflegen
- Malerarbeiten am Haus
- Garten Tipps
- Umzug und Reinigung

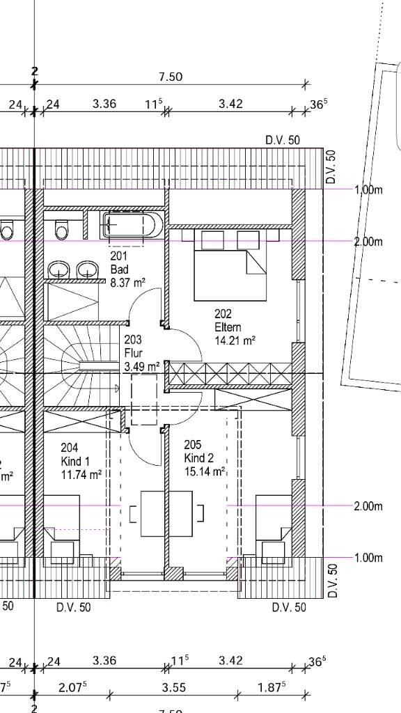
ᐅ Grundrissplanung 11,50 x 7,50

Erstellt am: 17.10.15 10:43
E
echti25
echti2517.10.15 10:43
Hallo Zusammen,

werden in Kürze unsere Grundrissplanung abschließen, deshalb schaut mal drüber was Ihr davon haltet.


Grundrissplan eines Hauses mit Küche, Wohn- und Essecke sowie Terrasse



Detaillierter Grundriss eines Hauses mit Bad, Elternzimmer und zwei Kinderzimmern
Y
ypg
17.10.15 18:10
Viel Möglichkeiten habt Ihr nicht. Ist das ein Doppel- oder Endreihenhaus? Scheinbar unterkellert?
Die Abmauerung im Schlafzimmer würde ich der des Bades anpassen - das wären Pi mal Daumen 130-150cm, das reicht, und Ihr habt etwas subjektive Wohnfläche gewonnen.
Den Garderobenplatz finde ich schon etwas zu grosszügig im Gegensatz zur Wohnsituation. Braucht Ihr dort im Eingang Stellfläche für Kinderwagen und co?
Ansonsten würde ich versuchen, dort nur eine Nische von etwas einem Meter Tiefe als Raumschrank zu planen und der Küche etwas mehr Arbeitsfläche zu gönnen, in dem man die Arbeitsfläche planoben/rechts als L setzt, dort natürlich das Fenster weiter rechts setzt. Zwei hochschränke (die planlinks) stehen lassen. Also die Küche länglich in die Außenecke setzen. Spüle an die rechte Außenwand. Somit kann man dann auch die Terrassentür an der Seite bedienen, da sehe ich nämlich jetzt ein Problem. Eventuell kann man dadurch ein paar cm für den Essbereich rausholen.
Soll das eine Kochinsel werden oder sind das Hochschränke davor???
Ansonsten bist Du etwas spärlich mit Informationen, dabei ist hier ein Beitrag angepint, wie man vorgehen soll. Für wen oder wieviel Personen soll das Haus reichen? Ich stelle mal die Dusche im Eingangsbereich in Frage.

Gruss Yvonne
echti2517.10.15 20:56
Sorry das wusste ich so nicht.

Werde eine paar Informationen ergänzen.

Objekt wird ein Doppelhaus
1 1/2 Stöcke + Keller
Satteldach 35° mit Gaube Richtung Süden
FH 8 Meter
TH 4 Meter
Aktuell für 4 Personen ( kein Kinderwagen mehr)

Küche mit Kochinsel, die Hochschränke sind falsch dargestellt .

Das Bad im EG soll später mal als zweites Bad dienen, wenn die Kinder größer sind
küchehochschränkearbeitsflächekochinsel