Hausbau - Ratgeber
Bauherrenhilfe
- Bauherrenhilfe vor Vertragsabschluss
-- Warum einen unabhängigen Baubetreuer?
-- Vertragsgrundlagen
-- Bausumme
-- Zahlungsplan zur Kostenkontrolle
-- Pflichten des Bauherren vor Vertragsabschluss
-- Unterlagen beim Hausbau vor Vertragsabschluss
- Bauherrenhilfe nach Vertragsabschluss
-- Bauantrag bei Behörden
-- Bau-Genehmigungsverfahren bei Baubehörden
-- Bauspezifische Versicherungen
-- Bauzeitenplan
-- Baubeginn - die Letzten Pflichten der Bauherrschaft
- Bauherrenhilfe während der Bauzeit
- Gewährleistungsansprüche
- Bauabnahme
Baufinanzierung
- Baufinanzierung - Allgemeine Fragen
- Kreditarten
- Kredit-Konditionen
- Bausparen
- Staatliche Förderungen
- Verkehrswert
- Haushaltsrechnung und Bonität
Hausbau Planung
- Haustypen
- Hausbau Vorbereitungsarbeiten
- Das Baugrundstück
- Baugrund beim Hausbau
- Baurecht
- Gebäudeschutz
- Erdarbeiten und Wasserhaltung
- Stützmauern
- Einfriedung
- Untergeschoss
- Kanalisation
- Tragende Elemente
- Nichttragende Innenwände
- Fundation / Fundament
- Deckenkonstruktionen
- Dächer
- Kaminanlagen
- Treppen Rampen Leitern
- Dachbeläge und Spengler
- Fenster
- Sonnen und Wetterschutz
- Aussenputze
- Einbauten, Küchen, Türen
- Bodenbeläge und Unterlagsböden
- Parkett
- Gips, Wand, Decke
Haustechnik und Energie
- Heiztechnik
- Lüftung und Klimatechnik
- Sanitärtechnik
- Elektrotechnik
- Erneuerbare Energie
Whirlpools / Jacuzzi
Hausbau Magazin
- Baufinanzierung trotz Krise?
- Das Blockhaus
- Moderne Dämmstoffe im Vergleich
- Erker Vor- und Nachteile
- Glasflächen beim Hausbau
- Günstig ein Haus Bauen
- Mediterraner Hausbaustil
- Mehrgenerationenhaus
- Moderne Architektur
- Gartengestaltung leicht gemacht
- Traditioneller Ziegelbau
- Villa als höchster Traum
- Im Eigenheim Ruhestand geniessen
- Altbau sanieren
- Kauf einer Holzgarage
- Immobilienmakler
- Arbeitshandschuhe für den Winter
- Zuhause verschönern
- Outdoor-Plissees
- Schlafzimmer planen
- Terrassenüberdachung
- Wohngebäudeversicherung
- Zaunarten und Eigenschaften
- Hauseingang gestalten
- Der perfekte Grundriss
- Sparsamer heizen im Altbau
- Einfamilienhaus smart finanzieren
- Planung einer PV-Anlage
- Neues Haus
- Immobilienfinanzierung
- Installation einer Photovoltaikanlage
- Asbest erkennen und entfernen
- Gartenpflege im Frühling – worauf achten
- Sauna im Fokus - Wellness zuhause
- Erfolgreich vermieten
- Die perfekte Winterbekleidung
- Das Niedrigenergiehaus
- Der April und seine Stürme
- Architektonische Vielfalt
- Ökologisch und nachhaltig bauen
- Das perfekte Schlafzimmer
- Nachhaltige Energieversorgung
- Zukunftsorientiert bauen
- Nachhaltigkeit beim Hausbau
- Tiny Houses
- Wärmepumpen als nachhaltige Heizvariante
- Maßgeschneiderten Kleiderschrank
- Der richtige Baukredit
- Ratgeber für erfolgreichen Hausbau
- Haus als Altersvorsorge
Do-it-yourself Anleitungen
- Verlegeanleitung für Bodenbeläge und Parkett
- Bodenbeläge und Parkett reinigen und pflegen
- Malerarbeiten am Haus
- Garten Tipps
- Umzug und Reinigung

ᐅ Grundriss verbessern Einfamilienhaus 1 1/2 geschossig

Erstellt am: 03.07.17 22:23
B
bindig
Y
ypg
04.07.17 17:52
Ich habe ein Problem, das warum und weshalb nachzuvollziehen - weil Du vlt gar nicht erklärst, warum es so kompliziert sein muss?!
Ich habe auch ein Problem, nachzuvollziehen - mal angenommen, es ist eine gute und nachvollziehbar sinnvolle Planung - warum man Stellplätze so merkwürdig auf dem Grundstück verteilt.
bindig schrieb:
Ich habe hier im Forum viele Grundrisse angeschaut, aber bei ähnlichen Randbedingungen hatte ich den Eindruck, dass die Diskussion immer darauf hinausgelaufen ist, das Haus gleich nur als EFH zu bauen ohne es vor (oder nach) der EFH-Nutzung aufzuteilen.

Die Randbedingungen kann man nicht vergleichen, wenn ein Bauherr nur, um Kosten zu sparen, sich eine Einliegerwohnung unter oder über seinen eigenen Wohnteil bauen möchte. Das sind zwei paar Schuhe - oder geht es Dir um Kostenersparnis? Ich habe gelesen, dass Du in erster Linie nur vermieten möchtest. Zumindest die ersten 10 Jahre, zumindest den oberen Teil. Unten soll eine Ferienwohnung entstehen.

Warum soll den überhaupt das Haus gebaut werden? Wollt Ihr eine Investition? Wollt Ihr eine Ferienwohnung und Unternehmer sein, oder wollt Ihr für Euch (wer auch immer das ist) ein Eigenheim? Danach baut man das Haus.
bindig schrieb:
Bei Bekannten und Freunden sehe ich aber, dass alte Häuser in mehrere Wohnungen aufgeteilt werden oder alte Häuser mit mehreren winzigen Wohnungen zu einem einzelnen EFH umgebaut werden.

Das liegt daran, dass das jetzige Haus nicht mehr deren Bedürfnissen entspricht und nicht mehr glücklich macht.
Du kannst aber auch an Deinem Satz erkennen, dass man es nicht jedem in jeder Situation recht machen kann: der eine verkleinert sich, der andere vergrößert sein Heim.

Ein Beispiel aus dem Netz, schnell bei Scanhaus Marlow Marlow gefunden, wo ich auf zwei Blicke erkennen kann, dass es möglich ist, eine Abtrennung von EG und OG mit wenigen Mitteln durchzuführen, wenn man in der Wohnqualität und -Grösse Abstriche macht.


Zweistöckiger Hausgrundriss mit Erd- und Obergeschoss, Wohn- und Schlafräume


Aber als erstes steht die Frage: was willst Du grundsätzlich?
11ant04.07.17 17:56
kaho674 schrieb:
Also der ein oder andere Fertighausanbieter hat ja auch Häuser für 2 Parteien im Programm. [...] Da kann man sicher allemal was besseres finden, nur um erstmal ein Gefühl für so etwas zu bekommen.

Damit holt man den TE aber nicht da ab, wo er jetzt steht. Er steht aktuell bei Häusern aus Kellerbaumaterialien und bei Grundrißkonzepten, wie ich sie als Quartaner verzapft habe. Was es aus der Dose gibt, schmeckt ihm wohl nicht.
https://www.instagram.com/11antgmxde/
https://www.linkedin.com/company/bauen-jetzt/
B
bindig
04.07.17 19:22
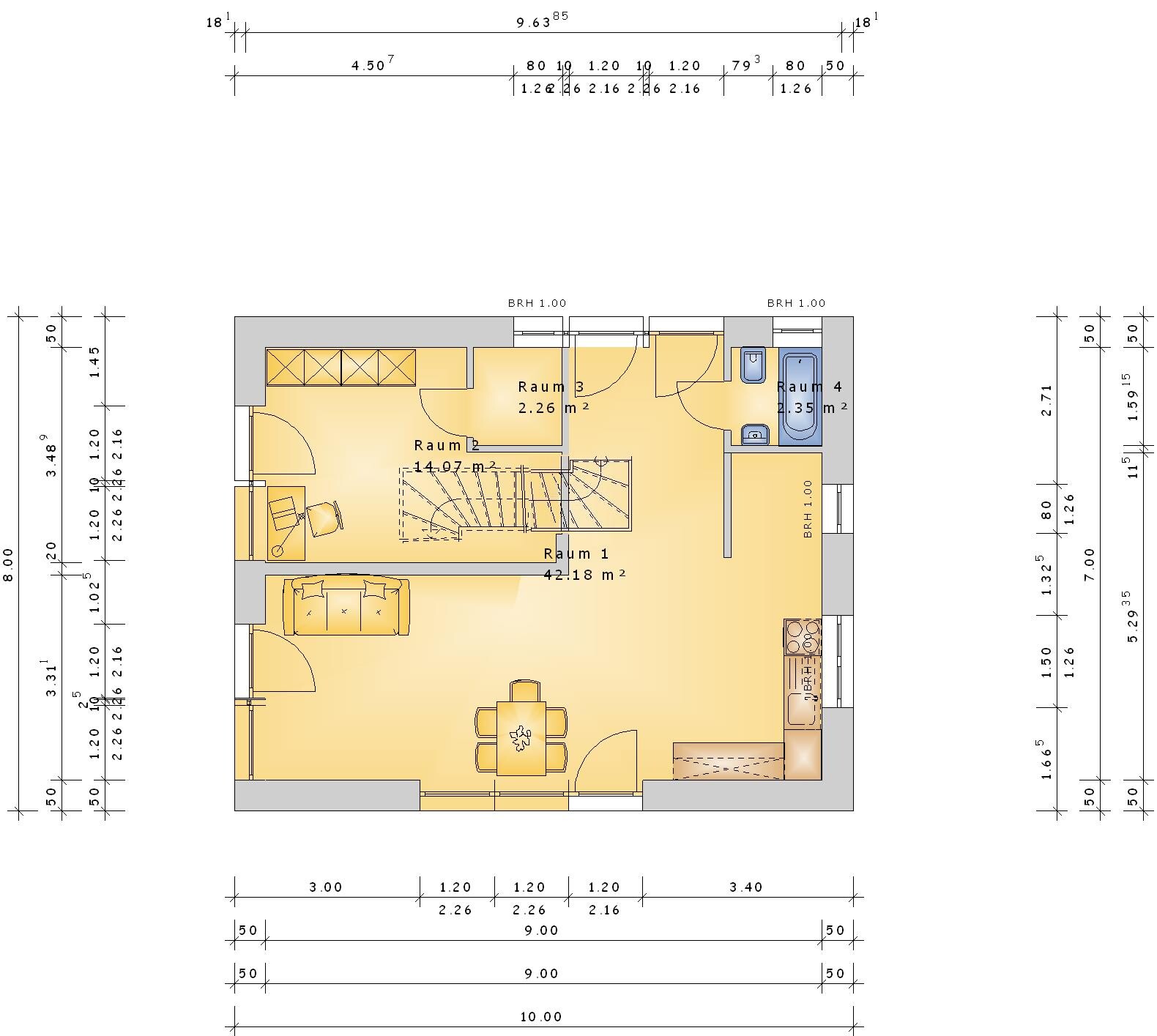
hier erstmal noch die angefragte Einfamilienhaus-Version des ersten Entwurfs, noch nicht irgendwie verbessert, nur als Antwort auf eine der ersten Fragen

Detaillierter Grundriss eines Einfamilienhauses mit Küche, Essbereich, Wohnzimmer, Treppe und Bad

Grundriss eines Dachgeschosses mit Treppe, Zimmern und Maßangaben im Plan
kbt0904.07.17 19:26
Ich verstehe die wilde Treppenführung im EG überhaupt nicht.

Das Bad im OG verschwendet viel Fläche, aber eine Dusche ist nicht platzierbar.

Als Schrankbenutzer im Elternschlafzimmer darf der Schrank keine Türen haben oder muss unter 200 cm hoch sein. Und der Benutzer sollte auch nicht zu groß sein.

Im EG ... was soll das für ein Wurmfortsatz von der Küche Richtung Bad sein?

So wird das jedenfalls nichts.
B
bindig
04.07.17 19:40
Evolith schrieb:
Mal was anderes: Du schreibst von geringem Budget. Was für ein Budget steht euch denn zur Verfügung? Nur so können wir euch in Sachen Dimensionen ordentlich helfen.
200000 (zweihunderttausend)
Ansonsten: 1 1/2 Geschosser --> Dachschrägen? Da werdet ihr beim Duschen nicht viel Spaß haben bei dem kleinen Bad. Und immer aus der Badewanne steigen magst auf dauer auch nicht. Für ein kleineres Kind übrigens auch nicht ganz ungefährlich.
Die Wanne im DG ist zur Hälfte außerhalb der 2-Meter-Linie. Das habe ich in Altbauten schon oft schlimmer gesehen. Die Alternative wäre z.B. nur eine Dusche im DG, die könnte ganz außerhalb der Dachschräge liegen. Ich denke nochmal drüber nach.
Dann fehlen in den Schlafzimmern die Fenster. Denke aber die hast du angedacht, nur nicht eingezeichnet.
Ja, in der nachgereichten Einfamilienhaus-Version sind die Fenster drin. Im Anfangs-Post fehlen alle Fenster auf der Ostseite (zwei unten, zwei oben), warum auch immer. Ohne Fenster ginge das da natürlich nicht.
Dann fehlt auch noch ein Technikraum. Ihr habt keinen Keller, also plant mal mindestens 8 qm für die Fernwärmekompaktstation und den sonstigen Krempel ein.
Für den Technikraum finde ich in 10 mal 8 Metern keinen Platz wenn da zwei Wohneinheiten sein sollen. ich denke, ein Teil der Technik kann in den Gemeinschaftsraum (EG, im Plan links oben) und der Rest in den Spitzboden. Ist das unrealistisch?
Warum baut ihr euch nicht einen 100qm Bungalow? Da könnt ihr viel besser für euch wohnen und die Räume schieben. In einigen Jahren lässt sich da recht entspannt anbauen.
Ja, ein Bungalow scheint mir auch geeigneter. Leider wäre der auf diesem Bauplatz nur erlaubt wenn er mit Dach mindestens ca. 7 Meter hoch wäre. So wie ich es verstehe können wir dafür dann kein billiges Bungalow-Dach bauen lassen (mit dünnen senkrechten und schrägen Balken zur Abstützung mittendrin) sondern müssen ein "richtiges" Dach haben. Da kann man zwar die innere Dach-Dämmung einsparen wenn wir das Dach komplett ungenutzt lassen. Weil der Bungalow aber logischerweise größer sein muss als 8 mal 10 Meter wird das Dach trotzdem sogar teurer als bei einem kleinen 1 1/2 stöckigen Haus bei dem wir den Raum unter dem Dach nutzen würden. - Alternativvorschläge willkommen.
B
bindig
04.07.17 19:47
Evolith schrieb:
Muss es denn unbedingt ein geteiltes Haus sein? Wäre es nicht auch möglich, dass Haus nur für euch zu gestalten?...
haydee schrieb:
Warum baut ihr nicht ein Haus wie ihr es euch in 10 Jahren wünscht und vermietet es jetzt?
Das Kinderzimmer ist später Gäste- oder Arbeitszimmer.
Gesamtfläche etwas kleiner, dafür keine 2 Bäder, keine 2 Küchen, später kein teurer Umbau.

Ja, ein normales Fertighaus wäre tatsächlich die verbleibende Alternative wenn ein geteiltes Fertighaus und ein geteiltes frei geplantes Haus nicht mit diesem Budget machbar sind.
scanhaus marlowdachfensterbungalowferienwohnungeinfamilienhausduschefertighaus