ᐅ Grundriss Traumhaus - 173m² mit 3 Kinderzimmern
Erstellt am: 05.11.24 20:22
R
roteweste05.11.24 20:22Liebe Hausbau-Community,
nach längerem Überlegen habe ich mich entschlossen, unsere Entwurfsplanung hier zu teilen. Als langjähriger passiver Leser möchte ich der Community damit einen kleinen Beitrag als Dankeschön zurückgeben und vielleicht sogar den ein oder anderen Leser mit unserem Grundriss inspirieren.
Zur Einordnung: Wir sind mit der Entwurfsplanung beim Architekten durch und holen derzeit Angebote ein. Das Haus wird als „Fertighaus“ mit leicht gehobener Ausstattung (KfW-40, Q3, Lüftungsanlage, Funk-Raffstores, usw.) für rund 3000 € pro Quadratmeter gebaut werden. Ich freue mich sehr über jedes Feedback und hoffe auf viele Kommentare. Gerne dürft ihr den Entwurf auch kritisch hinterfragen. Ein Hinweis dazu: Wir sind mit der Planung zufrieden und möchten daran nichts mehr ändern.
Los geht’s!
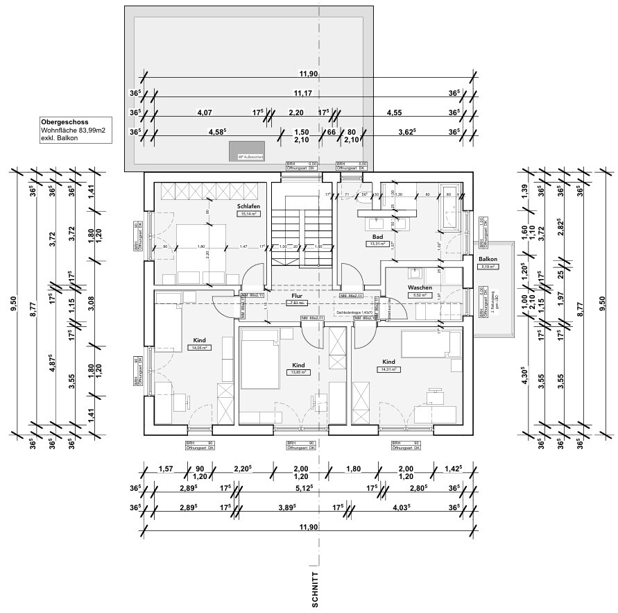
Rahmendaten:
Ich bin gespannt auf eure Meinungen!






nach längerem Überlegen habe ich mich entschlossen, unsere Entwurfsplanung hier zu teilen. Als langjähriger passiver Leser möchte ich der Community damit einen kleinen Beitrag als Dankeschön zurückgeben und vielleicht sogar den ein oder anderen Leser mit unserem Grundriss inspirieren.
Zur Einordnung: Wir sind mit der Entwurfsplanung beim Architekten durch und holen derzeit Angebote ein. Das Haus wird als „Fertighaus“ mit leicht gehobener Ausstattung (KfW-40, Q3, Lüftungsanlage, Funk-Raffstores, usw.) für rund 3000 € pro Quadratmeter gebaut werden. Ich freue mich sehr über jedes Feedback und hoffe auf viele Kommentare. Gerne dürft ihr den Entwurf auch kritisch hinterfragen. Ein Hinweis dazu: Wir sind mit der Planung zufrieden und möchten daran nichts mehr ändern.
Los geht’s!
Rahmendaten:
- Grundstück: ca. 470 m² in einem Neubaugebiet mit leichtem Gefälle nach Süden (1 m über Grundstückslänge, 0,5 m über Hausbreite)
- Nachbargrundstück im Norden: unattraktives, leerstehendes dreistöckiges Gebäude
- Schmerzgrenze für das Bauprojekt abzüglich Grundstück und ggf. Gartenanlage/Terrasse: 700.000 €
- 3 Kinderzimmer (je 12–14 m²)
- Waschraum oder Technik/Waschraum
- Arbeitszimmer für Doppelschreibtisch und Gästebett
- Dusche im Gästebad
- Treppe mit geradem Lauf
- Wohn-Ess-Koch-Bereich in L-Form
- Platz für Dielenmöbel
- Doppelgarage
- 2 Vollgeschosse
- auf Bodenplatte
Ich bin gespannt auf eure Meinungen!
roteweste schrieb:
Ich habe mich bewusst kurzgefasst und möchte vorerst nicht verraten, was mir am Entwurf gefällt oder nicht. Stattdessen lehne ich mich jetzt entspannt zurück und hole Popcorn.Ich habe da auch schon kommentiert, die Geschichten lesen sich recht launig, über die Grundstücksfindung und natürlich über Heinz. Mit Kommentaren lasse ich erst´mal den Anderen den Vortritt - vielleicht möchte ja auch jemand Ahnungen über die Inhalte meines Senfes äußern (ibs. wetten, womit ich beginnen werde). In diesem Sinne: bis in einer Woche (ob Dieter Meier dann hier stehen wird oder nicht)!https://www.instagram.com/11antgmxde/
https://www.linkedin.com/company/bauen-jetzt/
Lieber TE, ich frage mich wirklich, ob Du etwas masochistisch veranlagt bist.
Ihr seid offenbar mehr als zufrieden mit Eurem Projekt und werdet auch Nichts daran ändern, sagst Du.
Du erwartest hier sicher Lob, denn selbst berechtigte Kritik wirst Du zurückweisen, da Du Dir ansonsten ja eingestehen müsstest, den ein oder anderen Flopp eingeplant zu haben, diesen aber darum wissend, nicht mehr ändern wirst.
Wenn hier berechtigte Kritik zu lesen sein wird, wirst Du das während und nach dem Bau diese immer im Ohr haben wie Tinnitus und so manches Pop-Korn wird Kratzen im Hals verursachen.
Mein Tipp: Freu Dich über Eure Sicherheit und lass Dir nicht das Licht ausblasen, das du Dir gerade angezündet hast.
Ihr seid offenbar mehr als zufrieden mit Eurem Projekt und werdet auch Nichts daran ändern, sagst Du.
Du erwartest hier sicher Lob, denn selbst berechtigte Kritik wirst Du zurückweisen, da Du Dir ansonsten ja eingestehen müsstest, den ein oder anderen Flopp eingeplant zu haben, diesen aber darum wissend, nicht mehr ändern wirst.
Wenn hier berechtigte Kritik zu lesen sein wird, wirst Du das während und nach dem Bau diese immer im Ohr haben wie Tinnitus und so manches Pop-Korn wird Kratzen im Hals verursachen.
Mein Tipp: Freu Dich über Eure Sicherheit und lass Dir nicht das Licht ausblasen, das du Dir gerade angezündet hast.
roteweste schrieb:Was tust Du, wenn diese mehrheitlich kritisch sind?
Ich bin gespannt auf eure Meinungen!
Ich habe als nichts dazu zu sagen.
roteweste schrieb:Wir sind ja zum nicht zum Rätsel raten hier, noch um jemanden den Stolz zu nehmen.
Ich habe mich bewusst kurzgefasst und möchte vorerst nicht verraten,
M
MachsSelbst06.11.24 02:59roteweste schrieb:
(...)
Zur Einordnung: Wir sind mit der Entwurfsplanung beim Architekten durch und holen derzeit Angebote ein. Das Haus wird als „Fertighaus“ mit leicht gehobener Ausstattung (KfW-40, Q3, Lüftungsanlage, Funk-Raffstores, usw.) für rund 3000 € pro Quadratmeter gebaut werden. (...)Wenn das, was in den Klammern steht, für euch eine leicht gehobene Ausstattung ist, klappt das mit den 3.000 EUR/m² bezugsfertig... niemals.
Aber viel Erfolg.
OK, ich Fang einfach mal an mit den ersten Themen:
- Speisekammer ist von der Küche getrennt, ich muss jedes Mal durch den Flur.
- Damit ich zur Speisekammer komme, muss ich eine Doppeltür öffnen, die zur Küche öffnet. Nerviger geht es kaum für den Alltag.
- Die Doppeltür ist dort einfach mal so platziert ohne Sinn und Verstand. Aus dem Flur wird da nicht sonderlich viel Licht durch die Tür kommen. Und als royale "Pforte", die beim Eintritt ins Haus schön aussieht, tritt die Tür auch nicht in Erscheinung, weil sie vom Eingang aus nicht mal sichtbar ist.
- Das Bad im OG ist verwinkelt und nicht gut geplant. Die Toilette ist prominent platziert, die Badewanne in die letzte verbleibende Ecke geklatscht.
- Die Außenansicht ist asymmetrisch, unruhig und würde mich bei jedem Betrachten des Hauses massiv stören.
- 3.000€/qm wird einzugsfertig mit Euren Wünschen nicht funktionieren.
Mein Highlight ist übrigens der Balkon, der nur vom Hauswirtschaftsraum zu betreten ist. Noch nie gesehen sowas (und das aus gutem Grund).
- Speisekammer ist von der Küche getrennt, ich muss jedes Mal durch den Flur.
- Damit ich zur Speisekammer komme, muss ich eine Doppeltür öffnen, die zur Küche öffnet. Nerviger geht es kaum für den Alltag.
- Die Doppeltür ist dort einfach mal so platziert ohne Sinn und Verstand. Aus dem Flur wird da nicht sonderlich viel Licht durch die Tür kommen. Und als royale "Pforte", die beim Eintritt ins Haus schön aussieht, tritt die Tür auch nicht in Erscheinung, weil sie vom Eingang aus nicht mal sichtbar ist.
- Das Bad im OG ist verwinkelt und nicht gut geplant. Die Toilette ist prominent platziert, die Badewanne in die letzte verbleibende Ecke geklatscht.
- Die Außenansicht ist asymmetrisch, unruhig und würde mich bei jedem Betrachten des Hauses massiv stören.
- 3.000€/qm wird einzugsfertig mit Euren Wünschen nicht funktionieren.
Mein Highlight ist übrigens der Balkon, der nur vom Hauswirtschaftsraum zu betreten ist. Noch nie gesehen sowas (und das aus gutem Grund).