A
Antonino8530.11.22 10:30Hallo zusammen,
ich hoffe ihr könnte mir zu meinem Vorhaben ein Rat geben.
Bei dem Objekt handelt es sich um ein Weberhaus aus dem Jahre 1985.
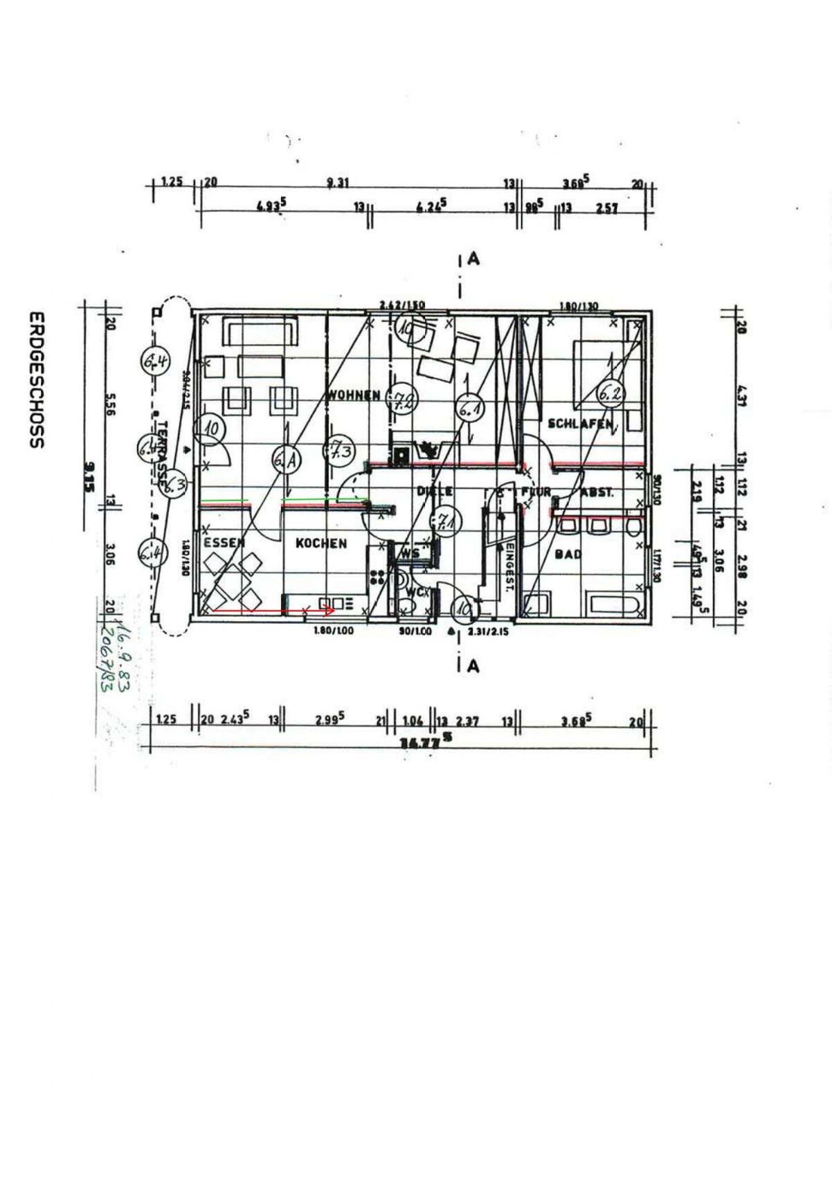
In der beigefügten Zeichnung waren die rot markierten Wände bereits vorhanden. nach Rücksprache mit Weberhaus handelt es sich dabei um die Trägerbalken.
Nun möchten wir im Küchenbereich (links) eine offene Küche haben. Wir würden gerne die dortigen Wände öffnen und die Balken selbstverständlich stehen lassen.
Der Ansprechpartner von Weberhaus sagte, dass dies kein Problem sei, solange wir die mittlere Wand zwischen Wohnbereich und Diele und das Treppenhaus in Ruhe lassen. Laut seiner Aussage wirken die Trockenbauwände nämlich versteifend und verhindern dass das Haus letztendlich "schief steht".
Weiterhin würden wir im Küchenbereich die Wasserleitung gerne um ca. 1m nach rechts verlegen. Ist das in einem Fertighaus ohne Weiteres möglich?
Viele Grüße Tony

ich hoffe ihr könnte mir zu meinem Vorhaben ein Rat geben.
Bei dem Objekt handelt es sich um ein Weberhaus aus dem Jahre 1985.
In der beigefügten Zeichnung waren die rot markierten Wände bereits vorhanden. nach Rücksprache mit Weberhaus handelt es sich dabei um die Trägerbalken.
Nun möchten wir im Küchenbereich (links) eine offene Küche haben. Wir würden gerne die dortigen Wände öffnen und die Balken selbstverständlich stehen lassen.
Der Ansprechpartner von Weberhaus sagte, dass dies kein Problem sei, solange wir die mittlere Wand zwischen Wohnbereich und Diele und das Treppenhaus in Ruhe lassen. Laut seiner Aussage wirken die Trockenbauwände nämlich versteifend und verhindern dass das Haus letztendlich "schief steht".
Weiterhin würden wir im Küchenbereich die Wasserleitung gerne um ca. 1m nach rechts verlegen. Ist das in einem Fertighaus ohne Weiteres möglich?
Viele Grüße Tony
H
hanghaus202330.11.22 13:05Das geht sicher. Nur würde ich mir das von Weberhaus schriftlich geben lassen.
Zeichne doch mal die Änderung in den Plan ein. Wo genau sind die Steher, welche du stehen lassen willst?
Mein Bruder hat so etwas ähnliches im Altbau gemacht. Das war Allerdings ein Fachwerk. Dann eben ohne Fache und einen Durchgang.
Zeichne doch mal die Änderung in den Plan ein. Wo genau sind die Steher, welche du stehen lassen willst?
Mein Bruder hat so etwas ähnliches im Altbau gemacht. Das war Allerdings ein Fachwerk. Dann eben ohne Fache und einen Durchgang.
A
Antonino8501.12.22 14:55hanghaus2023 schrieb:
Das geht sicher. Nur würde ich mir das von Weberhaus schriftlich geben lassen.
Zeichne doch mal die Änderung in den Plan ein. Wo genau sind die Steher, welche du stehen lassen willst?
Mein Bruder hat so etwas ähnliches im Altbau gemacht. Das war Allerdings ein Fachwerk. Dann eben ohne Fache und einen Durchgang.Danke dir erstmal für deine Rückmeldung.Die Steher bzw. Balken würde im Bereich der grünen Linie stehen lassen.
Ähnliche Themen