Hausbau - Ratgeber
Bauherrenhilfe
- Bauherrenhilfe vor Vertragsabschluss
-- Warum einen unabhängigen Baubetreuer?
-- Vertragsgrundlagen
-- Bausumme
-- Zahlungsplan zur Kostenkontrolle
-- Pflichten des Bauherren vor Vertragsabschluss
-- Unterlagen beim Hausbau vor Vertragsabschluss
- Bauherrenhilfe nach Vertragsabschluss
-- Bauantrag bei Behörden
-- Bau-Genehmigungsverfahren bei Baubehörden
-- Bauspezifische Versicherungen
-- Bauzeitenplan
-- Baubeginn - die Letzten Pflichten der Bauherrschaft
- Bauherrenhilfe während der Bauzeit
- Gewährleistungsansprüche
- Bauabnahme
Baufinanzierung
- Baufinanzierung - Allgemeine Fragen
- Kreditarten
- Kredit-Konditionen
- Bausparen
- Staatliche Förderungen
- Verkehrswert
- Haushaltsrechnung und Bonität
Hausbau Planung
- Haustypen
- Hausbau Vorbereitungsarbeiten
- Das Baugrundstück
- Baugrund beim Hausbau
- Baurecht
- Gebäudeschutz
- Erdarbeiten und Wasserhaltung
- Stützmauern
- Einfriedung
- Untergeschoss
- Kanalisation
- Tragende Elemente
- Nichttragende Innenwände
- Fundation / Fundament
- Deckenkonstruktionen
- Dächer
- Kaminanlagen
- Treppen Rampen Leitern
- Dachbeläge und Spengler
- Fenster
- Sonnen und Wetterschutz
- Aussenputze
- Einbauten, Küchen, Türen
- Bodenbeläge und Unterlagsböden
- Parkett
- Gips, Wand, Decke
Haustechnik und Energie
- Heiztechnik
- Lüftung und Klimatechnik
- Sanitärtechnik
- Elektrotechnik
- Erneuerbare Energie
Whirlpools / Jacuzzi
Hausbau Magazin
- Baufinanzierung trotz Krise?
- Das Blockhaus
- Moderne Dämmstoffe im Vergleich
- Erker Vor- und Nachteile
- Glasflächen beim Hausbau
- Günstig ein Haus Bauen
- Mediterraner Hausbaustil
- Mehrgenerationenhaus
- Moderne Architektur
- Gartengestaltung leicht gemacht
- Traditioneller Ziegelbau
- Villa als höchster Traum
- Im Eigenheim Ruhestand geniessen
- Altbau sanieren
- Kauf einer Holzgarage
- Immobilienmakler
- Arbeitshandschuhe für den Winter
- Zuhause verschönern
- Outdoor-Plissees
- Schlafzimmer planen
- Terrassenüberdachung
- Wohngebäudeversicherung
- Zaunarten und Eigenschaften
- Hauseingang gestalten
- Der perfekte Grundriss
- Sparsamer heizen im Altbau
- Einfamilienhaus smart finanzieren
- Planung einer PV-Anlage
- Neues Haus
- Immobilienfinanzierung
- Installation einer Photovoltaikanlage
- Asbest erkennen und entfernen
- Gartenpflege im Frühling – worauf achten
- Sauna im Fokus - Wellness zuhause
- Erfolgreich vermieten
- Die perfekte Winterbekleidung
- Das Niedrigenergiehaus
- Der April und seine Stürme
- Architektonische Vielfalt
- Ökologisch und nachhaltig bauen
- Das perfekte Schlafzimmer
- Nachhaltige Energieversorgung
- Zukunftsorientiert bauen
- Nachhaltigkeit beim Hausbau
- Tiny Houses
- Wärmepumpen als nachhaltige Heizvariante
- Maßgeschneiderten Kleiderschrank
- Der richtige Baukredit
- Ratgeber für erfolgreichen Hausbau
- Haus als Altersvorsorge
Do-it-yourself Anleitungen
- Verlegeanleitung für Bodenbeläge und Parkett
- Bodenbeläge und Parkett reinigen und pflegen
- Malerarbeiten am Haus
- Garten Tipps
- Umzug und Reinigung

ᐅ Grundriss Haus mit Einliegerwohnung - Verbesserungsvorschläge?

Erstellt am: 31.08.22 12:31
M
MarlenP
Y
ypg
04.09.22 23:09
K a t j a schrieb:

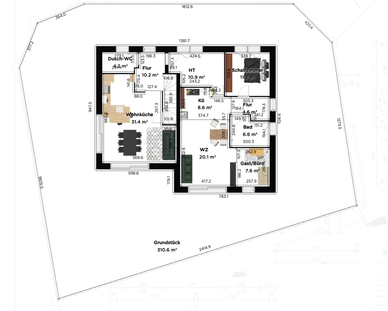
Dieses Grundstück lässt sich so bescheiden nachzeichnen.
Nimm dies… ist als Verbesserung entstanden, bevor der studierende Sohn aufgetaucht ist.

Grundriss eines Hauses mit Wohnküche, Flur, Dusch-WC, Küche, Bad, WZ, Schlafzimmer, Gästezimmer.
M
MarlenP
05.09.22 00:19
Wir habe das Bauvorhaben zunächst einmal bis auf Weiteres gestoppt. Mein Mann und ich hatten heute eine längere Diskussion über unser Bauvorhaben. Obwohl mein Mann die Sache jetzt durchziehen möchte, hat er letztendlich doch eingesehen, dass es besser ist nochmals den kompletten Grundriss in Frage zu stellen. Jeder weitere Änderung wird uns zwar einiges an Geld kosten, aber es ist besser jetzt was zu ändern, als wenn das Haus später steht und wir uns wundern, warum uns dieses und jenes nicht in der Planungsphase aufgefallen ist. Ich bin sehr dankbar, dass sich hier im Forum einige sehr viel Mühe gegeben uns helfen. Wir hätten uns gewünscht, unser Architekt dieselbe Einstellung bei der Planung gehabt hätte. Aber ich möchte jetzt nicht unseren Architekten die komplette Schuld an diesem Desaster geben - dass wäre zu einfach. Wir hätten einfach besser aufpassen müssen und vielleicht rechtzeitig einen anderen Architekten suchen sollen.
Allerdings sind wir optimistisch, dass wir durch die guten Tipps und Vorschläge von hier, doch noch unser Traumhaus mit seinen besonderen Anforderungen und Herausforderung verwirklichen werden können.


P.S. Ich möchte ich bei allen 70 Jährigen und die im ähnlich Alter sind oder bald sein werden, ausdrücklich entschuldigen. Es war nicht meine Absicht, diese Altersgruppen in irgendeiner Art und Weise zu degradieren.
M
MarlenP
05.09.22 00:48
@ Katja; Vielen Dank für diesen Entwurf. Gefällt mir auf Anhieb. Gute Idee mit dem gemeinsamen Hauseingang - das spart einiges am Platz.
Könntest du bitte vielleicht auch die Raummaße mit angeben und wie ist die Ausrichtung des Gebäudes am Grundstück?
K a t j a schrieb:


Eine größere Kröte: ich bekomm kein Gäste-WC im Wohntrakt im EG unter. Vielleicht jemand ne Idee hierfür?

Das ist in der Tat eine harte Nuss zu knacken. Wir haben uns damit auch (zu) lange beschäftigt während der Planungsphase.
K a t j a schrieb:

Die Frage ist, ob Carports mit Abstand von nur 3m zur Straße erlaubt wären.

Garagen/Carports müssen 5m Abstand zur Straße haben (zumindest in unserem Baugebiet).
K a t j a schrieb:

Letztendlich muss ich sagen, dass der große Wunsch nach einem Garten mit diesen Ansprüchen und dem winzigen + schlecht geschnittenen Grundstück völliger Käse ist. Wieso in in aller Welt habt Ihr es gekauft? Es passt doch eigentlich gar nicht zu Euren Wünschen, solange die Eltern hier mit einziehen müssen.

Den Schuh muss ich mir wohl anziehen. Das Grundstück habe ich nach Rücksprache mit dem Architekten ausgesucht.
11ant05.09.22 01:18
Entschuldigung angenommen und Glückwunsch zur Einsicht !
MarlenP schrieb:

Ich bin sehr dankbar, dass sich hier im Forum einige sehr viel Mühe gegeben uns helfen.
An alle Schlauberger, Feiglinge und Paßwortvergesser: wir können noch besser helfen, wenn man hier nicht plötzlich mit seinem Ufo landet, sondern offen sagt, wenn man eine Vorgeschichte hat und in welchem Thread diese steht.
MarlenP schrieb:

Wir hätten uns gewünscht, unser Architekt dieselbe Einstellung bei der Planung gehabt hätte.
Dieser Wunsch ist stets dort legitim, wo man den Architekten selbst bezahlt und beauftragt. "Wes Brot ich eß´, des Lied ich sing´". Da kann ein Zeichenknecht gar nicht anders, als im Sinne der Baufirma tätig zu sein. Der Entwurfskunst treu sein kann ein Architekt nur ohne Anführungsstriche um seine Berufsbezeichnung.
MarlenP schrieb:

Aber ich möchte jetzt nicht unseren Architekten die komplette Schuld an diesem Desaster geben - dass wäre zu einfach. Wir hätten einfach besser aufpassen müssen und vielleicht rechtzeitig einen anderen Architekten suchen sollen.
Im Rahmen des vorgenannten Dilemmas, daß der Bauunternehmer sein noch obererer Herr ist als Ihr, hat Euch der "Architekt" absolut untadelig gedient. Auf das falsche Pferd haben ihn keine Geringeren als Ihr höchstselbst gesetzt, indem Euer Auftrag an ihn sinngemäß lautete: "falten Sie unsere zu vielen Wünsche wie ein Gedärm in den Baukörper". DAS hat er nach Kräften hervorragend zu erfüllen versucht ! - ihn also nur nicht zu schimpfen, wäre undankbar. Bei der Suche nach Architekten helfe ich gerne (und bin bekanntermaßen unter meinem Forennamen auch über gmx de zu erreichen).
https://www.instagram.com/11antgmxde/
https://www.linkedin.com/company/bauen-jetzt/
K a t j a05.09.22 08:56
MarlenP schrieb:

@ Katja; Vielen Dank für diesen Entwurf. Gefällt mir auf Anhieb. Gute Idee mit dem gemeinsamen Hauseingang - das spart einiges am Platz.
Könntest du bitte vielleicht auch die Raummaße mit angeben und wie ist die Ausrichtung des Gebäudes am Grundstück?
War eine erste Idee. Da sind aber noch einige Sachen unklar. Das WC, der Abstand Carport zur Straße, auch der Eingangsbereich für 5 Leute, die irgendwo ihre Taschen und Jacken abwerfen wollen, wenn sie ankommen. Kann man das den Schwiegereltern zumuten, sich dadurch zu kämpfen, bevor sie die eigene Wohnung betreten. Meine Schwester hat es so. Da funktioniert es. Aber wie ist es allgemein?
Y
ypg
05.09.22 09:24
Oha! Das ist aber mal sehr mutig von Euch!
MarlenP schrieb:

Ich bin sehr dankbar, dass sich hier im Forum einige sehr viel Mühe gegeben uns helfen.
MarlenP schrieb:

Allerdings sind wir optimistisch, dass wir durch die guten Tipps und Vorschläge von hier, doch noch unser Traumhaus mit seinen besonderen Anforderungen und Herausforderung verwirklichen werden können.
Dann solltest Du mal alle Threads von Dir nach Fragen von uns absuchen sowie die genannten Ideen auch kommentieren… ob ihr Euch zb vorstellen könnt, das WZ nach oben oder einen separate zugänglichen Gästebereich. Dann Alter/Bindung Student usw… wie viele PKWs sind es tatsächlich nach Einzug etc… in jedem Satz steckt doch irgendwo eine Frage, die uns weiterbringen könnte, also uns als Kreative, Euch, den richtigen Weg von den vielen zu finden.
Ich bin übrigens auch mit einem gemeinsamen Flur gestern an den Start gegangen…
architektenbauvorhabenplanungsphasegrundstück