Hausbau - Ratgeber
Bauherrenhilfe
- Bauherrenhilfe vor Vertragsabschluss
-- Warum einen unabhängigen Baubetreuer?
-- Vertragsgrundlagen
-- Bausumme
-- Zahlungsplan zur Kostenkontrolle
-- Pflichten des Bauherren vor Vertragsabschluss
-- Unterlagen beim Hausbau vor Vertragsabschluss
- Bauherrenhilfe nach Vertragsabschluss
-- Bauantrag bei Behörden
-- Bau-Genehmigungsverfahren bei Baubehörden
-- Bauspezifische Versicherungen
-- Bauzeitenplan
-- Baubeginn - die Letzten Pflichten der Bauherrschaft
- Bauherrenhilfe während der Bauzeit
- Gewährleistungsansprüche
- Bauabnahme
Baufinanzierung
- Baufinanzierung - Allgemeine Fragen
- Kreditarten
- Kredit-Konditionen
- Bausparen
- Staatliche Förderungen
- Verkehrswert
- Haushaltsrechnung und Bonität
Hausbau Planung
- Haustypen
- Hausbau Vorbereitungsarbeiten
- Das Baugrundstück
- Baugrund beim Hausbau
- Baurecht
- Gebäudeschutz
- Erdarbeiten und Wasserhaltung
- Stützmauern
- Einfriedung
- Untergeschoss
- Kanalisation
- Tragende Elemente
- Nichttragende Innenwände
- Fundation / Fundament
- Deckenkonstruktionen
- Dächer
- Kaminanlagen
- Treppen Rampen Leitern
- Dachbeläge und Spengler
- Fenster
- Sonnen und Wetterschutz
- Aussenputze
- Einbauten, Küchen, Türen
- Bodenbeläge und Unterlagsböden
- Parkett
- Gips, Wand, Decke
Haustechnik und Energie
- Heiztechnik
- Lüftung und Klimatechnik
- Sanitärtechnik
- Elektrotechnik
- Erneuerbare Energie
Whirlpools / Jacuzzi
Hausbau Magazin
- Baufinanzierung trotz Krise?
- Das Blockhaus
- Moderne Dämmstoffe im Vergleich
- Erker Vor- und Nachteile
- Glasflächen beim Hausbau
- Günstig ein Haus Bauen
- Mediterraner Hausbaustil
- Mehrgenerationenhaus
- Moderne Architektur
- Gartengestaltung leicht gemacht
- Traditioneller Ziegelbau
- Villa als höchster Traum
- Im Eigenheim Ruhestand geniessen
- Altbau sanieren
- Kauf einer Holzgarage
- Immobilienmakler
- Arbeitshandschuhe für den Winter
- Zuhause verschönern
- Outdoor-Plissees
- Schlafzimmer planen
- Terrassenüberdachung
- Wohngebäudeversicherung
- Zaunarten und Eigenschaften
- Hauseingang gestalten
- Der perfekte Grundriss
- Sparsamer heizen im Altbau
- Einfamilienhaus smart finanzieren
- Planung einer PV-Anlage
- Neues Haus
- Immobilienfinanzierung
- Installation einer Photovoltaikanlage
- Asbest erkennen und entfernen
- Gartenpflege im Frühling – worauf achten
- Sauna im Fokus - Wellness zuhause
- Erfolgreich vermieten
- Die perfekte Winterbekleidung
- Das Niedrigenergiehaus
- Der April und seine Stürme
- Architektonische Vielfalt
- Ökologisch und nachhaltig bauen
- Das perfekte Schlafzimmer
- Nachhaltige Energieversorgung
- Zukunftsorientiert bauen
- Nachhaltigkeit beim Hausbau
- Tiny Houses
- Wärmepumpen als nachhaltige Heizvariante
- Maßgeschneiderten Kleiderschrank
- Der richtige Baukredit
- Ratgeber für erfolgreichen Hausbau
- Haus als Altersvorsorge
Do-it-yourself Anleitungen
- Verlegeanleitung für Bodenbeläge und Parkett
- Bodenbeläge und Parkett reinigen und pflegen
- Malerarbeiten am Haus
- Garten Tipps
- Umzug und Reinigung

ᐅ Grundriss Flachdachhaus am Hang

Erstellt am: 13.10.17 14:47
A
al3x_
A
al3x_
13.10.17 14:47
Hallo zusammen,

ich wollte hier mal meinen aktuellen Grundriss vorstellen.
zZ noch in der Änderung:
- Küchenbereich (Speiß wird entfallen)
- Eckfenster entfallen
- Carport entfällt

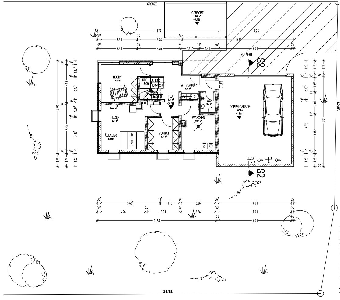
Das Grundstück liegt leicht am Hang, siehe Ansichten.
Bebauungsplan gibt es keinen, da in altem Wohngebiet.

Grundriss eines Hauses mit Doppelgarage, Carport, Hobbyraum, Vorrat, Waschen, Flur, Garten.


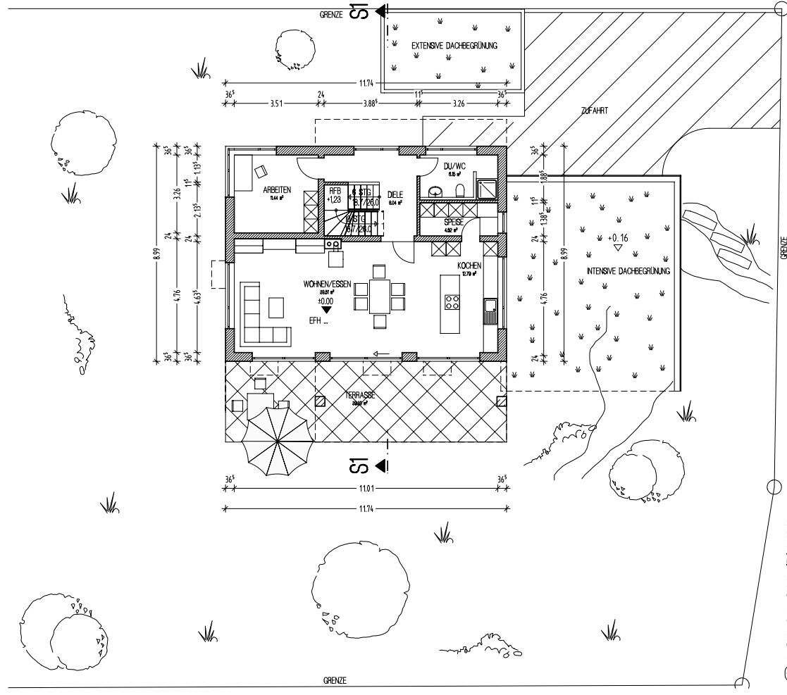
Grundriss eines Einfamilienhauses mit Wohn-/Essbereich, Kochen, Diele, Terrasse und Garten.


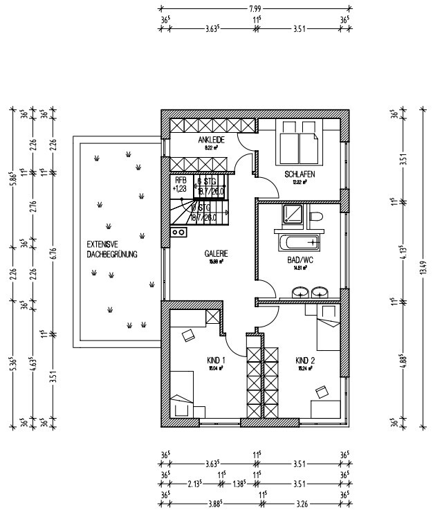
Grundriss eines Hauses mit Schlafzimmer, Bad/WC, zwei Kinderzimmer, Galerie, Ankleide


Modernes zweigeschossiges weißes Haus mit Terrasse, Esstisch, Stühlen und rotem Sonnenschirm.


Moderne weiße zweigeschossige Villa mit großen Fenstern, Grünfläche und Terrasse mit rotem Schirm


Moderne weiße Villa mit Garage, Carport, Auto auf der Einfahrt und grünem Garten.


Moderne weiße kubische Villa mit großen Fenstern, Terrasse und Garten
K
kbt09
13.10.17 15:04
Versuche mal, erst den "Vorschau"-Button zu klicken und dort dann die Bilder im Beitrag hochzuladen.

Und denke bitte auch an die Fragen aus dem oben angepinntem Thread: https://www.hausbau-forum.de/threads/grundrissplanung-unbedingt-vor-Beitrag-Erstellung-lesen.11714/
A
al3x_
13.10.17 15:15
kbt09 schrieb:
Versuche mal, erst den "Vorschau"-Button zu klicken und dort dann die Bilder im Beitrag hochzuladen.
funktioniert auch nicht. Habs sogar mit Firefox und Chrome probiert.
K
kbt09
13.10.17 15:50
Stimmt, funktioniert leider auch gar nicht mehr. @Admin ... was ist da los?
Y
ypg
13.10.17 17:33
Man kann Fotos ganz einfach in das Beitragsfenster ziehen!
M
mega2017
13.10.17 18:54
schade, so ist kaum etwas zu erkennen....