ᐅ Grundriss-Entwurf Einfamilienhaus in Hanglage, Einliegerwohnung, Doppelgarage
Erstellt am: 15.03.21 08:16
A
Andreas94A
Andreas9424.03.21 07:49Hallo zusammen,
wir haben gestern unseren überarbeiteten Plan erhalten.
Unsere Änderungswünsche wurden alle integriert, sodass wir sehrzufrieden mit dem Plan sind.
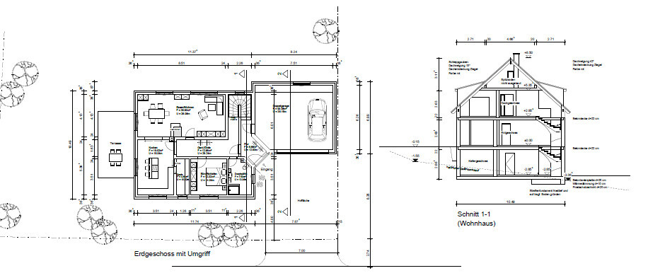
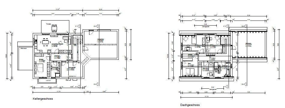
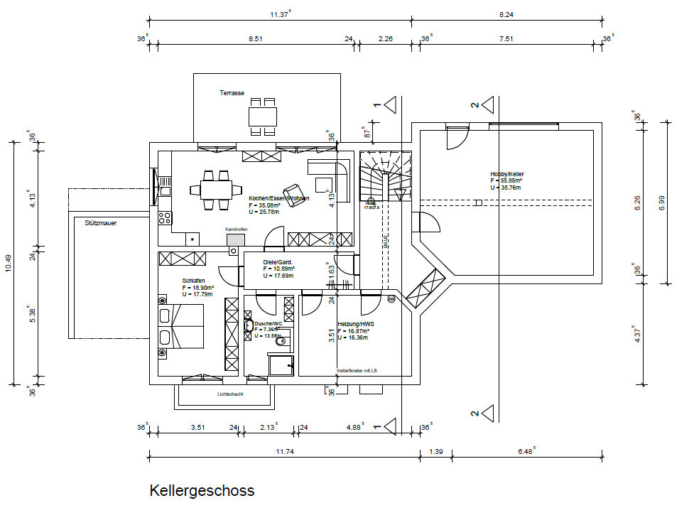
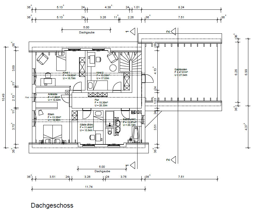
Unsere Frage an euch richtet sich hauptsächlich an unsere Grundrissplanung. Soll / Kann / Muss man noch etwas verbessern?
Nochmal zu den Eckpunkten:
-2 Wohneinheiten
- EG + DG von uns Bewohnt (2 Erwachsene + in den nächsten Jahren Kinder, max. 3)
- alles andere wurde denke ich shcon mal erwähnt
Wir freuen uns auf euer Feedback.





wir haben gestern unseren überarbeiteten Plan erhalten.
Unsere Änderungswünsche wurden alle integriert, sodass wir sehrzufrieden mit dem Plan sind.
Unsere Frage an euch richtet sich hauptsächlich an unsere Grundrissplanung. Soll / Kann / Muss man noch etwas verbessern?
Nochmal zu den Eckpunkten:
-2 Wohneinheiten
- EG + DG von uns Bewohnt (2 Erwachsene + in den nächsten Jahren Kinder, max. 3)
- alles andere wurde denke ich shcon mal erwähnt
Wir freuen uns auf euer Feedback.
Ist das nur bei mir so verpixelt? Kannst du das vielleicht nochmal schärfer hochladen?`
A
Andreas9424.03.21 08:19Naja, Ihr bzw der Planer bleibt im gleichen Quark: jetzt ist es eine Treppe, die sich nahezu absetzt und das Familienleben stark trennt in Wohn- und Schlafebene. Große Diele ohne Garderobenplatz für 5 Personen lässt viel Spielraum für herumliegende Schuhe oder mehreren Kommödchen, die aneinandergereiht werden.
Die Kritik zur Einliegerwohnung/Praxis ist nicht umgesetzt - bleibt somit als Kritik stehen. Was willst Du jetzt also neues hören?
Die Kritik zur Einliegerwohnung/Praxis ist nicht umgesetzt - bleibt somit als Kritik stehen. Was willst Du jetzt also neues hören?
Ein Haus muß ja nicht mainstreamig hip sein - aber daß es aussieht wie sechzig Jahre alt mit gelungen angepaßtem Garagenanbau, das würde mir doch zu denken geben. Da baut man bei uns selbst im Mennonitenviertel modischer. Und nachgezählt habe ich zwar nicht, aber auf den flüchtigen Blick bin ich mir unsicher, ob die Versöhnung der Quadratmeter mit dem Budget erfolgreich angestrebt wurde.
https://www.instagram.com/11antgmxde/
https://www.linkedin.com/company/bauen-jetzt/
https://www.instagram.com/11antgmxde/
https://www.linkedin.com/company/bauen-jetzt/