Grundriss Einfamilienhaus in leichter Hanglage + Grundstückpositionierung

Zuletzt aktualisiert 17.11.2025
Sie befinden sich auf der Seite 3 der Diskussion zum Thema: Grundriss Einfamilienhaus in leichter Hanglage + Grundstückpositionierung
>> Zum 1. Beitrag <<

Y

ypg

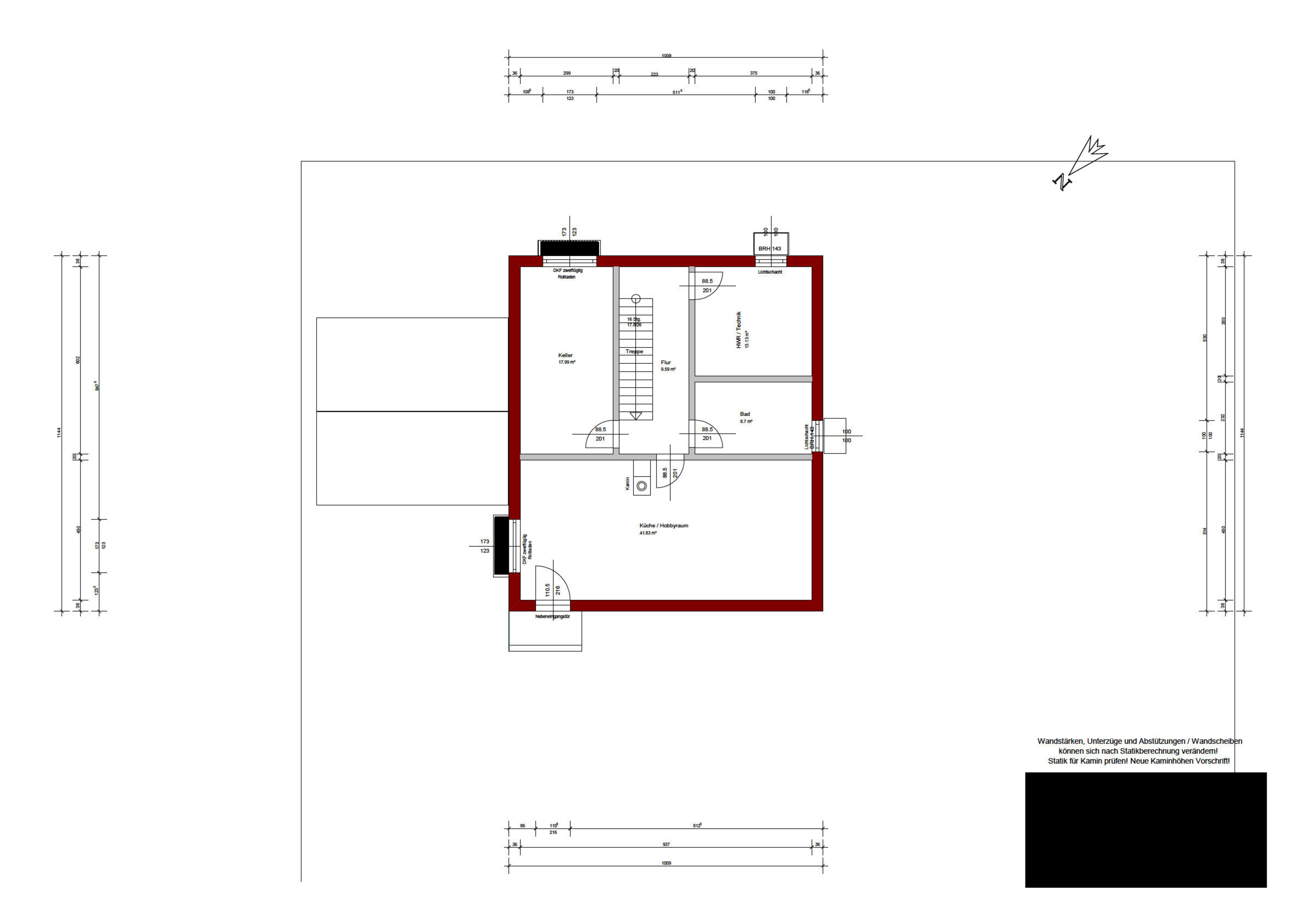
Wir haben bisher den Eindruck, dass der Keller bzw. dessen Fläche uns unterirdisch weniger kostet und wir dort "weniger schick" unterwegs sein können.
Weniger schick oder schick ist ja dem Handwerker egal, der nimmt pro Qm Verlegung. Ggf werden die Räume verputzt oder die Elektrik in die Wände verlegt statt auf Putz/Wand. Besitz weckt Begehrlichkeiten.
Pflasterarbeiten 15k
Wenn Du damit auskommst. Ich habe vor 12 Jahren 19000€ nur für Schotterauffahrt und Terrasse bezahlt.
Gibt es noch andere, große Posten?
Außentreppe will auch einen Belag, damit nichts durchrottet.
Wenn Ihr das Gelände/Garten modelliert, dann ggf Abfangungen zum Nachbarn.
 
A

Arauki11

Beim Kriterium Budget/Gesamtbaukosten kenne ich mich wenig aus, das würde ich aber zuallererst und verbindlich klären.
Ebenso würde ich auch manche grundsätzlichen Dinge für mich klären wie z.B. das Thema KWL, welches ich mit einem Ja beantworten würde. Natürlich kenne ich auch schöne Häuser ohne eine solche und Leute in Lebensumständen, die das nicht unbedingt brauchen, das sehe ich hier aber nicht. Bei soviel Homeoffice im Haus würde ich auch zusätzlich niemals auf eine Klimaanlage verzichten; im Vergleich zu Deinen anderen Wünschen kostet diese ja nur einen Klacks.

Als Streichpotential sehe ich zuallererst die teuren Garagen, da hast Du nach KWL+Klima und dann immer noch 20.000.- übrig. Mein Credo ist ohnehin immer, es mir es zunächst IM Haus drinnen maximal komfortabel zu gestalten, im Außenbereich kann man mit Phantasie und weniger Geld Vieles bewirken.
Fahrräder u.a. Gedöns passen locker in eine Gartenhütte bzw. einen evtl. erst später gebauten, deutlich günstigeren und hier zudem schickeren Carport (als diese Fertiggaragen zum ansonsten doch gewünschten, alpinen Stil).
Ebenso überdenken würde ich den riesigen und teuren Balkon, obwohl wir selbst ja einen gebaut haben. Ich mag ihn hier ganz gerne und sitze hin und wieder auch draußen, weil ich dort auch eine schöne Aussicht habe aber er grenzt eben direkt an einen wohnzimmerähnlichen Raum. In Deinem Plan aber begehe ich ihn vom OG-Bad aus bzw. von der Ankleide im Schlaf-OG, das halte ich für wenig geschickt, wenn ich meine Tasse Kaffee, Bierhumpen oder sonstwas aus dem EG von der Küche zurück in den EG-Flur, die Treppe hoch, durchs Bad/Ankleide auf meinen Balkon gelangen soll, um dort dann endlich relaxen zu können. Vlt. ist es auch als optisches Detail gedacht, dafür wird dieser Balkon dann aber sehr teuer werden und das Ergebnis wäre auch anderweitig und günstiger zu erreichen. Wenn das Geld übrig ist ok aber nicht, wenn Du andere grundsätzliche Dinge dafür bislang in Frage stellst.

Weiterhin prüfen würde ich das mit hohen Kosten verbundene Thema Kamin. Es gibt Nutzer, die sich mit den damit ver undenen Umständen gut arrangieren können und dann passt das auch für sie, ein gewisser Teil der Leute hier aber sieht die gemeinsame Nutzung von Kamin und FBH als kritisch bzw. unopassend und daher auch als unnötigen Kostenpunkt. Ich würde mich damit einfach nocheinmal tiefer auseinandersetzen und die zu mir passende Lösung für Heizen/Kamin finden wollen.
Ich gehöre zu der Fraktion, welche die naturgemäß träge FBH i.V.m Kamin als unpassend ansieht, weil es in den heute gut gedämmten und dichten Häusern ganz schnell überhitzt sein wird und Du dann das Fenster aufmachst. Einige Nutzer hier haben den einst teuer eingebauten Kamin irgendwann auch wieder ausgebaut. Wenn Du einen guten Zugang zu Brennholz hast würde ich über meine dazu passende Heizalternative nachdenken. Dein Allraum ist jetzt ja nicht gerade riesig, weshalb ich dieses Problem hier gegeben sehe. Wir selbst haben einen Kamin aber eben viel Luftraum und deswegen eben auch keine FBH.

Die zwingend gewünschte, gerade Treppe gefällt mir hier überhaupt nicht bzw. verstehe ich deren erzwungene Anwesenheit nicht. Eine gerade Treppe bringt oft planerische Nachteile bzw. Bedürfnisse mit. Ich verstehe es, wenn diese als sichtbares, sehenswertes Bauwerk und hochwertig ausgeführt im Raum steht, hier aber befundet sie sich eingekerkert in einen überaus schmalen und zudem dunklen Raum.

Ich verstehe auch Deinen Wunsch freier Sicht durch das Haus hindurch aber das ist doch hier überhaupt nicht umgesetzt; ich erkenne bislang ein schlauchartiges Sichtfeld mit einem normalen Fenster ganz am Ende und dies noch hinter einer Flur-/Wohnzimmertür.
Eigenes Elternbad kann ich auch gut verstehen aber eben nur dann, wenn es eine zweite Option auf der Ebene gibt.

Grundsätzlich finde ich den Grundriss ganz gut, mit Keller geht das eben deutlich einfacher. Ebenso gut auch Deine detaillierte Beschreibung der Wünsche/Bedürfnisse und dennoch empfinde ich aber, dass da aktuell noch zu viel Nicetohave mit drin ist, was Dich finanziell schnell an die Grenze bringen und Du auf mittelmäßige Qualität/Ausführung ausweichen wirst bzw. Dir die grundlegenden Dinge unnötig zerschiesst.
Punkte wie Balkon, Dampfdusche, gerade Treppe, Garagen, Natursteinmauer, Holzofen, Garage etc. sind gesetzt während bedeutende Punkte und Preistreiber wie Verschattung, KWL, Klima, top gedämmtes Haus, fehlendes "durchs Haus schauen" stiefmütterlich behandelt sind; das würde ich neu überdenken, ändern und hätte dann auch wieder Geld frei für neue Gedanken.
 
J

JoeDreiH

Vieles ist schon geschrieben, was fällt mir auf:
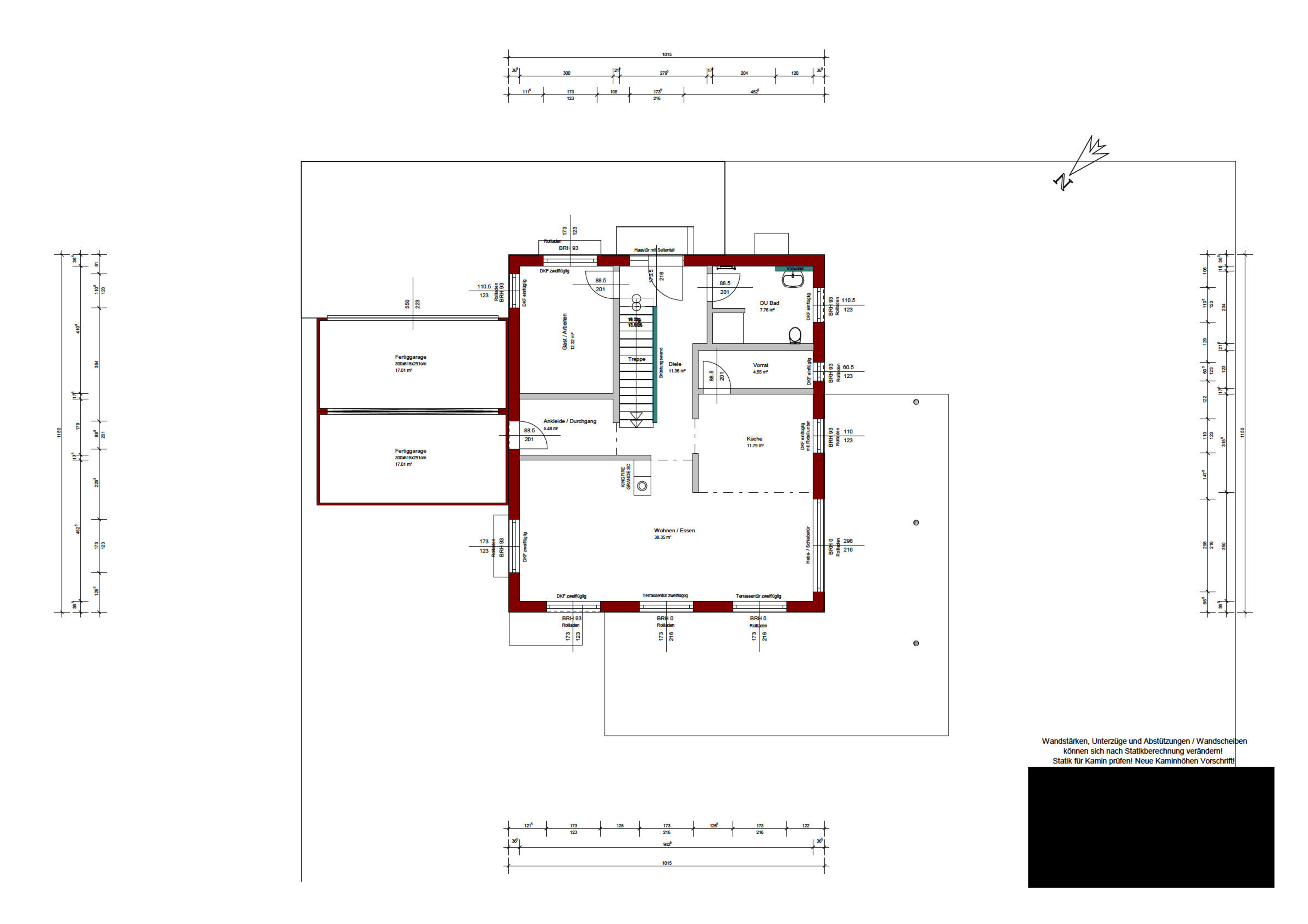
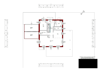
  • zunächst generell, man kann die Maße schlecht lesen
  • Küche .. mal einrichten incl. den gedachten Nutzungszweck Speisekammer. Um 60 cm tiefe Möbel, evtl. auch TK-Schrank sinnvoll nutzen zu können, sollte man immer mit Rohbautiefe von mind. 130 cm planen. Selten genutzte Geräte, da finde ich so eine Backup-Küchenecke ja noch gut, deshalb sollte man das zusammen mit der Küche auch mal andeutungsweise planen, denn die Küche wird nicht viel Platz bieten. Vorräte können dann in den Keller
    Warum eigentlich im Keller "Küche/Hobbyraum"
  • Garderobe ist recht weit von der Eingangstür entfernt. D. h. man wird auch immer mit den Schuhen bis dahin laufen usw.
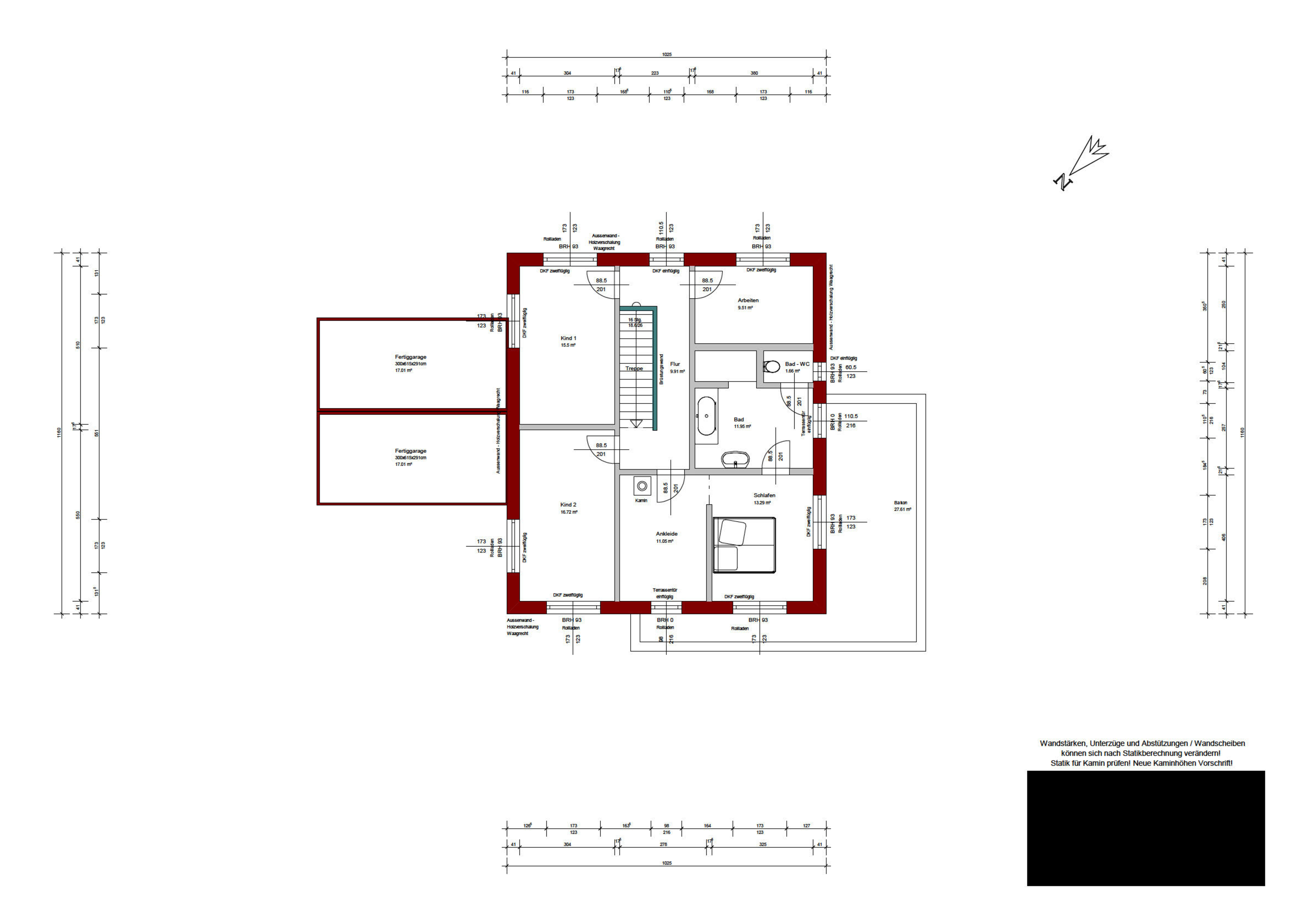
  • 2 bis 3 Kinder aber kein Bad in der Schlaf-Etage finde ich auch ein Nogo
  • Schlafzimmer Eltern - Kopfteil Bett steht für meinen Geschmack an der ungemütlichsten Stelle, wo es auch mit einem Nachtkästchen oder so an der einen Seite schwierig wird
  • Warum Balkon? - wg. Aussicht ... sitzt man da dann wirklich häufiger?
  • Check, die Kartoffelqualität geht auf meine Kappe, am liebsten hätte ich das originale PDF hochgeladen. Im Anhang aber nochmal etwas besser hoffentlich.
  • Da bin gerade dabei. In den Keller kommt die alte Küche mit einem kleinen Tresen drumrum, hauptsächlich für größere Feiern und den Schmutzkram, den wir oben nicht haben wollen. (Fische ausnehmen und Fleisch zerlegen)
  • Guter Punkt! Unsere Idee war eine Minikommode mit Spiegel in der Flurnische (Bad<>Speise) und die Hauptgarderobe bewusst zur Garage hin. Der Ort ist eher klein, alle Wege (Einkaufen, Arbeit, Vereine, Freizeit, ...) müssen mit dem Fahrzeug erledigt werden, daher ist der Familieneingang eher die Garage und Gäste/Geschäft über die Haustür.
  • Mit der Ansicht bist du - wie man sieht - nicht alleine. Aber ich habe einen breiten Rücken und komme mit anderen Sichtweisen zurecht. Wir haben ein Kleinkind im Altbau großgezogen, in dem weder für Kind noch Eltern ein Bad im OG war. Ist nicht schön, aber weniger Drama als Einige vermuten. Da ein Kleinkind für 2-3 Jahre bei uns sowieso im Elternschlafzimmer nächtigt, ist der Badkonflikt also eher für das Alter von 4-25 interessant und da drehe ich den Spieß einfach mal um: Ich will die Freunde und Liebschaften meiner Kinder ungerne in unserem Bad. Aber auch das kann jeder handhaben wie er möchte.
  • Würdest du das Bett um 180° drehen? Wir haben Stand heute quasi nichts (außer Kleiderschrank) im Schlafzimmer und halten uns da auch nicht lange auf, Nachtkästchen reicht bei meiner Frau.
  • Na damit der Terassentisch im Trockenen steht. ;-) Kann ich dir tatsächlich nicht sagen, wir haben ihn ja noch nicht. In meinem Elternhaus ist der Balkon zu klein zum Sitzen und Schwätzen. Im Urlaub nehmen wir konsequent immer Balkonzimmer oder -apartments, weil wir einfach gerne zu zweit draußen rumsitzen oder -liegen und uns das deutlich privater vorkommt als der Garten. Im Sommer sitze ich mit Laptop auch draußen zum Arbeiten, könnte ich ehrlicherweise aber auch auf der Terasse. Verbleibt als letztes Hilfsargument die Architektur: Wir haben uns schon auf einen ziemlich kompakt-ökonomischen Baukörper eingelassen, da sollte zumindest irgendetwas herausschauen.
Mal Quick und Dirty und out of the box angedacht und man müsste mal gucken, ob man das so hinbekommt mit den Flächen:
  • EG .. mit großem Koch-/(Backupküche)-/Ess-Raum und Elternsuite mit einem Bad, wo Toilette abtrennbar auch als Gäste-WC genutzt werden kann. Eltern sind in der Regel "sauberer", so dass diese Konstellation auch in aller Regel ohne Kontrolle Gästen angeboten werden kann. Ist bei Kinderbädern nicht immer der Fall ;)
  • OG .. mit Wohnzimmer mit Aussicht für Gucken, TV, Lesen usw. sowie 2 Kinderzimmer, 1 kleineres Kinder-Bad, 2 kleinere Büros, eines evtl. doch ins EG
Die Idee eines Wohnzimmers im OG hatte bei uns nur geringen WAF, wir hatten aber mal probiert Elterntrakt (Ankleide, Schlafen, Bad) ins EG zu verfrachten, haben das aber immer nur hinbekommen, wenn oben weniger Wohnraum als unten ist. Ergo wieder weg von der kompakten kubischen Bauhülle und dann ökonomisch weniger effizient. Learning für uns war: Entweder Wohnzimmer oder Elternbereich auf jeweils einer Ebene. Ich überlege aufgrund eurer Rückmeldungen gerade eher, ob wir das zweite Bad auch nach oben packen und unten nur ein WC haben und dafür beide Büros nach unten wandern..
 

Anhänge

J

JoeDreiH

Beim Kriterium Budget/Gesamtbaukosten kenne ich mich wenig aus, das würde ich aber zuallererst und verbindlich klären.
Ebenso würde ich auch manche grundsätzlichen Dinge für mich klären wie z.B. das Thema KWL, welches ich mit einem Ja beantworten würde. Natürlich kenne ich auch schöne Häuser ohne eine solche und Leute in Lebensumständen, die das nicht unbedingt brauchen, das sehe ich hier aber nicht. Bei soviel Homeoffice im Haus würde ich auch zusätzlich niemals auf eine Klimaanlage verzichten; im Vergleich zu Deinen anderen Wünschen kostet diese ja nur einen Klacks.

Als Streichpotential sehe ich zuallererst die teuren Garagen, da hast Du nach KWL+Klima und dann immer noch 20.000.- übrig. Mein Credo ist ohnehin immer, es mir es zunächst IM Haus drinnen maximal komfortabel zu gestalten, im Außenbereich kann man mit Phantasie und weniger Geld Vieles bewirken.
Fahrräder u.a. Gedöns passen locker in eine Gartenhütte bzw. einen evtl. erst später gebauten, deutlich günstigeren und hier zudem schickeren Carport (als diese Fertiggaragen zum ansonsten doch gewünschten, alpinen Stil).
Ebenso überdenken würde ich den riesigen und teuren Balkon, obwohl wir selbst ja einen gebaut haben. Ich mag ihn hier ganz gerne und sitze hin und wieder auch draußen, weil ich dort auch eine schöne Aussicht habe aber er grenzt eben direkt an einen wohnzimmerähnlichen Raum. In Deinem Plan aber begehe ich ihn vom OG-Bad aus bzw. von der Ankleide im Schlaf-OG, das halte ich für wenig geschickt, wenn ich meine Tasse Kaffee, Bierhumpen oder sonstwas aus dem EG von der Küche zurück in den EG-Flur, die Treppe hoch, durchs Bad/Ankleide auf meinen Balkon gelangen soll, um dort dann endlich relaxen zu können. Vlt. ist es auch als optisches Detail gedacht, dafür wird dieser Balkon dann aber sehr teuer werden und das Ergebnis wäre auch anderweitig und günstiger zu erreichen. Wenn das Geld übrig ist ok aber nicht, wenn Du andere grundsätzliche Dinge dafür bislang in Frage stellst.

Weiterhin prüfen würde ich das mit hohen Kosten verbundene Thema Kamin. Es gibt Nutzer, die sich mit den damit ver undenen Umständen gut arrangieren können und dann passt das auch für sie, ein gewisser Teil der Leute hier aber sieht die gemeinsame Nutzung von Kamin und FBH als kritisch bzw. unopassend und daher auch als unnötigen Kostenpunkt. Ich würde mich damit einfach nocheinmal tiefer auseinandersetzen und die zu mir passende Lösung für Heizen/Kamin finden wollen.
Ich gehöre zu der Fraktion, welche die naturgemäß träge FBH i.V.m Kamin als unpassend ansieht, weil es in den heute gut gedämmten und dichten Häusern ganz schnell überhitzt sein wird und Du dann das Fenster aufmachst. Einige Nutzer hier haben den einst teuer eingebauten Kamin irgendwann auch wieder ausgebaut. Wenn Du einen guten Zugang zu Brennholz hast würde ich über meine dazu passende Heizalternative nachdenken. Dein Allraum ist jetzt ja nicht gerade riesig, weshalb ich dieses Problem hier gegeben sehe. Wir selbst haben einen Kamin aber eben viel Luftraum und deswegen eben auch keine FBH.

Die zwingend gewünschte, gerade Treppe gefällt mir hier überhaupt nicht bzw. verstehe ich deren erzwungene Anwesenheit nicht. Eine gerade Treppe bringt oft planerische Nachteile bzw. Bedürfnisse mit. Ich verstehe es, wenn diese als sichtbares, sehenswertes Bauwerk und hochwertig ausgeführt im Raum steht, hier aber befundet sie sich eingekerkert in einen überaus schmalen und zudem dunklen Raum.

Ich verstehe auch Deinen Wunsch freier Sicht durch das Haus hindurch aber das ist doch hier überhaupt nicht umgesetzt; ich erkenne bislang ein schlauchartiges Sichtfeld mit einem normalen Fenster ganz am Ende und dies noch hinter einer Flur-/Wohnzimmertür.
Eigenes Elternbad kann ich auch gut verstehen aber eben nur dann, wenn es eine zweite Option auf der Ebene gibt.

Grundsätzlich finde ich den Grundriss ganz gut, mit Keller geht das eben deutlich einfacher. Ebenso gut auch Deine detaillierte Beschreibung der Wünsche/Bedürfnisse und dennoch empfinde ich aber, dass da aktuell noch zu viel Nicetohave mit drin ist, was Dich finanziell schnell an die Grenze bringen und Du auf mittelmäßige Qualität/Ausführung ausweichen wirst bzw. Dir die grundlegenden Dinge unnötig zerschiesst.
Punkte wie Balkon, Dampfdusche, gerade Treppe, Garagen, Natursteinmauer, Holzofen, Garage etc. sind gesetzt während bedeutende Punkte und Preistreiber wie Verschattung, KWL, Klima, top gedämmtes Haus, fehlendes "durchs Haus schauen" stiefmütterlich behandelt sind; das würde ich neu überdenken, ändern und hätte dann auch wieder Geld frei für neue Gedanken.
Richtig viele, präzise Gedankengänge. Ganz vielen lieben Dank, freut mich total. Ich versuche meine Gedanken dazu in Blöcke zu fassen:

KWL + Klima
Kam bei uns quasi ganz zum Schluss auf. Wir kennen nur ein befreundetes Paar mit KWL, das Klima dort ist prima, aber kann auch am Lüften liegen. Da es bei guter Planung anscheinend nicht so teuer ist, haben wir es jetzt mal ins Auge gefasst. Bei der Klima ist das ganz anders: Die wollte uns bisher jeder ausreden, auch wenn wir sie eher in den Schlafzimmer gesehen hätten und die Außengeräte dann auf die Garage verfrachtet hätten. Ehrlich gesagt finde ich es optisch schwierig, werde mich aber nochmal damit befassen.

Garage, Carport, Preise Nebengebäude
Das finde ich jetzt spannend. Bis eben dachte ich, dass das die schönste und billigste Lösung wäre. Eine in die Haushülle integrierte Garage wurde uns quasi zum doppelten Preis angeboten und ein Carport für 30k - aber dann stünden die Autos halt draußen und ich könnte da guten Gewissens keine Werkzeugkoffer an die Rückwand hängen.. kommt ja jeder dran. Haben wir bei der Carportsuche vielleicht den Falschen gefragt? Gibt es gute Anbieter, die zwei abschließbare Stellplätze günstiger als für 25k anbieten? In meinem Kopf rechne ich da aufjedenfall ein Tor zum Grundstück mit drauf, auf welches ich bei einer Garage verzichten würde.

Balkon
Der Punkt ist echt gut. Aber dann müssten wir nicht nur das Wohnzimmer, sondern auch die Küche und das Esszimmer mit hochholen und die Eltern würden runterwandern. Wie habt ihr das geregelt? Ich persönlich lege mich gerne nach dem Baden/Duschen raus und lese was oder telefoniere während die Haare trocknen. Aber ja, das klassische Weinglas und die Brotzeitplatte schleppe ich dann durchs ganze Haus, das ist eine Kröte. Der Balkon kostet abgedichtet übrigens 35k mit WPC-Belag, das fanden wir nicht so wild und haben uns zur moralischen Ertüchtigung quasi die 20k für eine verglaste Terassenüberdachung dagegen schöngerechnet.

Kamin
Kurz: Ist gesetzt. Wir haben mehr Holz als wir alleine verfeuern können und ich sehe es als Ersatz fürs Fitnessstudio. Und Effizienz in allen Ehren, aber der Holzkamin dient der Gemütlichkeit, auch wenn wir zwischendrin Lüften müssen.

Treppe
Nehmen wir an, dass die Form auch gesetzt ist. Was könnten wir am Flur oder Licht ändern? Der Blick geht aus unser Sicht auf ein 3,5m² großes, bodentiefes Glaselement. Kennen wir von Bekannten und finden wir okay, tatsächlich habe die aber einen breiteren Flur. Wir machen dafür keine Setzstufen in die Treppe und überlegen noch wie wir das Geländer gestalten, sodass es offener wirkt.

Qualität vs. Ausstattungsumfang
Diesen Hinweis finde ich extrem wertvoll und er hat bei mir einen Gedankengang ausgelöst, der mir bisher nicht klar war: Wir sind beim Keller bereit Abstriche in der Qualität zu machen, oben aber nicht. Wenn ich das Argument also durchziehe und wir bisher bedeutende Kosten in der Außenanlage und den NK übersehe, müssen wir mal überlegen, was wir vielleicht doch über Board werfen und/oder verkleinern. Dampfbad und Natursteinmauer haben wir schon zurückgestellt, reicht aber vielleicht noch nicht. Was übersehen wir eventuell beim Thema Verschattung? Ich glaube die Dämmung passt schon, unten 0,13 und oben 0,12.
 
Y

ypg

Ich will Dir nix Böses, aber..
Finde den Fehler!
weil wir einfach gerne zu zweit draußen rumsitzen oder -liegen und uns das deutlich privater vorkommt als der Garten.
Ihr seid nicht mehr zu zweit. Und plant weitere Kinder! Da sitzt man nicht mehr zu zweit auf einem Balkon.
alle Wege (Einkaufen, Arbeit, Vereine, Freizeit, ...) müssen mit dem Fahrzeug erledigt werden, daher ist der Familieneingang eher die Garage und Gäste/Geschäft über die Haustür.
Und die Kinder müssen durch die Garage, wenn sie von der Schule nach Hause kommen?
Da ein Kleinkind für 2-3 Jahre bei uns sowieso im Elternschlafzimmer nächtigt, ist der Badkonflikt also eher für das Alter von 4-25 interessant und da drehe ich den Spieß einfach mal um:
Ein Kind kann doch gar nicht so lange vernünftig innehalten, wie es ein Erwachsener kann. Ich denke, da muss man gar nix umdrehen: Du räumst „Hobbies und Fische ausnehmen“ Raum ein, ins Haus müssen viele Nice-to-Haves, inklusive ein teurer Balkon, wo der Nutzen geringer ausfällt, als dass die Kosten gerechtfertigt sind. Eine große Ankleide wird geplant, aber die Einstellung zur Badnutzung der Kinder finde ich sehr, sehr schlecht.
Ich will die Freunde und Liebschaften meiner Kinder ungerne in unserem Bad. Aber auch das kann jeder handhaben wie er möchte.
So etwas spaltet sich auf in Erziehung oder auch negative Unterstellung, die wir hier ja gar nicht diskutieren wollen.
 
Zuletzt aktualisiert 17.11.2025
Im Forum Grundrissplanung / Grundstücksplanung gibt es 2535 Themen mit insgesamt 87942 Beiträgen
Oben