ᐅ Grundriss 130m2 Einfamilienhaus am Hang mit Carport, Terrasse
Erstellt am: 17.05.24 14:49
I
IIIIIIIIIIIIII
Hallo,
wir sind mit der Planung des Hauses schon weitergekommen.
Es gibt den ersten Vorentwurf.
Bebauungsplan/Einschränkungen
Größe des Grundstücks: ~850m2
Hang: Ja
Geschossflächenzahl: 2
Anzahl Stellplatz: 2
Dachform: Satteldach (Pflicht)
Ausrichtung: Süd-West
Anforderungen der Bauherren
Anzahl der Personen, Alter: Pärchen ~32 Jahre, keine Kinder (auch kein Wunsch, max. 1 Kind falls doch noch was kommt)
Homeoffice muss dabei sein.
Schlafgäste pro Jahr: ab und zu mal vllt jemand.
offene Küche, Kochinsel: geschlossene Küche(!), Kochinsel brauchen wir nicht.
Anzahl Essplätze: 2-8
Kamin: Ja
Balkon, Terrasse: Ja
Garage, Carport: Carport
Hausentwurf
Von wem stammt die Planung: Generalunternehmer
Was gefällt besonders? Warum?: Lage des Hauses im Hang, Terrasse + Carport gut gelöst, Untergeschoss finden wir auch passend.
Was gefällt nicht? Warum?:
Badezimmer: (da haben wir etwas herumgezeichnet)
* wir wollen wo die Badewanne ist die Dusche platzieren
* dort wo das Klo ist längs die Badewanne
* dort wo die Dusche ist das Klo.
* Fenster Bodentief
Küche: Fenster soll normal groß werden, brauchen keine Schränke an dieser Wand.
Wohnzimmer: westliches Fenster soll Richtung Süden verschoben werden damit es mit dem Fenster/Türe im Dachgeschoss bündig abschließt.
Die Terrasse soll auch noch 0,5-1m breiter werden Richtung Westen (und das Carport von 6m auf 6,5-7m breite anwachsen).
Der Lagerraum auf der Terrasse ist auch Pflicht, vllt wird dieser auch noch etwas breiter, den kleinen Dachüberstand vom Lager über die Terrasse werden wir auch entfernen lassen.
Mit allen anderen sind wir eigentlich recht glücklich, nächste Woche haben wir die nächste Besprechung mit unseren Änderungswünschen.
Wir sind uns auch noch nicht sicher ob die Fassade komplett Holz wird, Putz + Holz oder Stein + Holz.
Aussicht ist nur West & Südlich interessant 🙂 im Osten wird ein weiteres Haus entstehen.
Das Grundstück ist etwas schwer zu bebauen dank der Hanglage, aber wir finden der GU hat hier sehr gute Arbeit geleistet.
Der GU ist aus dem Nachbardorf und hat schon >20 Häuser in diesem Hang, bzw. in dieser Lage gebaut.
Geheizt wird mit Luftwärme-Pumpe und Fußbodenheizung (27-29Grad Vorlauftemperatur), Wohnraumlüftung haben wir uns aktiv dagegen entschieden. Das Haus entspricht den örtlichen Bauplan.
Der LAGEPLAN ist eingenordet = Oben Nord unten Süd
Wenn ihr noch Fragen habt, beantworte ich diese gerne so gut wie es geht.
Wir bitten um Kritik!





wir sind mit der Planung des Hauses schon weitergekommen.
Es gibt den ersten Vorentwurf.
Bebauungsplan/Einschränkungen
Größe des Grundstücks: ~850m2
Hang: Ja
Geschossflächenzahl: 2
Anzahl Stellplatz: 2
Dachform: Satteldach (Pflicht)
Ausrichtung: Süd-West
Anforderungen der Bauherren
Anzahl der Personen, Alter: Pärchen ~32 Jahre, keine Kinder (auch kein Wunsch, max. 1 Kind falls doch noch was kommt)
Homeoffice muss dabei sein.
Schlafgäste pro Jahr: ab und zu mal vllt jemand.
offene Küche, Kochinsel: geschlossene Küche(!), Kochinsel brauchen wir nicht.
Anzahl Essplätze: 2-8
Kamin: Ja
Balkon, Terrasse: Ja
Garage, Carport: Carport
Hausentwurf
Von wem stammt die Planung: Generalunternehmer
Was gefällt besonders? Warum?: Lage des Hauses im Hang, Terrasse + Carport gut gelöst, Untergeschoss finden wir auch passend.
Was gefällt nicht? Warum?:
Badezimmer: (da haben wir etwas herumgezeichnet)
* wir wollen wo die Badewanne ist die Dusche platzieren
* dort wo das Klo ist längs die Badewanne
* dort wo die Dusche ist das Klo.
* Fenster Bodentief
Küche: Fenster soll normal groß werden, brauchen keine Schränke an dieser Wand.
Wohnzimmer: westliches Fenster soll Richtung Süden verschoben werden damit es mit dem Fenster/Türe im Dachgeschoss bündig abschließt.
Die Terrasse soll auch noch 0,5-1m breiter werden Richtung Westen (und das Carport von 6m auf 6,5-7m breite anwachsen).
Der Lagerraum auf der Terrasse ist auch Pflicht, vllt wird dieser auch noch etwas breiter, den kleinen Dachüberstand vom Lager über die Terrasse werden wir auch entfernen lassen.
Mit allen anderen sind wir eigentlich recht glücklich, nächste Woche haben wir die nächste Besprechung mit unseren Änderungswünschen.
Wir sind uns auch noch nicht sicher ob die Fassade komplett Holz wird, Putz + Holz oder Stein + Holz.
Aussicht ist nur West & Südlich interessant 🙂 im Osten wird ein weiteres Haus entstehen.
Das Grundstück ist etwas schwer zu bebauen dank der Hanglage, aber wir finden der GU hat hier sehr gute Arbeit geleistet.
Der GU ist aus dem Nachbardorf und hat schon >20 Häuser in diesem Hang, bzw. in dieser Lage gebaut.
Geheizt wird mit Luftwärme-Pumpe und Fußbodenheizung (27-29Grad Vorlauftemperatur), Wohnraumlüftung haben wir uns aktiv dagegen entschieden. Das Haus entspricht den örtlichen Bauplan.
Der LAGEPLAN ist eingenordet = Oben Nord unten Süd
Wenn ihr noch Fragen habt, beantworte ich diese gerne so gut wie es geht.
Wir bitten um Kritik!
H
hanghaus202317.05.24 20:44I
IIIIIIIIIIIIII17.05.24 20:53kbt09 schrieb:
Ich würde trotzdem mal einen Küchenplan machen, ob das Fenster nicht doch etwas breit ist. Ich sehe dort eher einen 2-Zeiler, durchaus evtl. ein zusätzliches Fenster nach Norden dabei. Mir persönlich wäre die Küche auch zu weit vom Terrassenplatz entfernt. Ob geschlossen oder offen ist halt Geschmackssache.
Die Tür zur Kammer unter der Treppe würde ich in der Wand nach planoben laufen lassen, dann ist der Raum unter der Treppe wesentlich besser nutzbar. Von Flurseite evtl. quasi eine untere Klappe, um Getränkekisten oder ähnliches durchzuschieben.
Die Brüstungshöhe des Fensters am Essplatz finde ich zum Sitzen am Tisch ungemütlich. Bei einer Bank hat man doch gerne auch mal eine Rückenlehne.
Die Treppe finde ich gut, Garderobenplatz scheint auch ausreichend, WC-Tür würde ich wohl nach außen öffnen lassen. Auch wenn da lt. Plan dann Kollisionsgefahr mit Eingangstür, aber beide Türen sind ja nicht ständig in Gebrauch. Das ermöglicht es, das Handwaschbecken etwas weiter nach planunten zu setzen und damit einen komfortableren Abstand zum WC zu haben.
Das Bad im OG finde ich wohl im Original besser, da großzügiger. Der Durchgang Dusche/Waschbecken wird großzügiger, die Dusche ist ohne Türen etc. gut nutzbar und WC / Waschbecken wird auch alles großzügiger. Das Fenster kann dann auch noch etwas weiter nach planunten wandern, gibt der Dusche noch mehr Raum.Das mit den Küchenplan zuerst erstellen und dann das Fenster planen ist ein guter Tipp, das werden wir wohl so machen.
Im Norden ein Fenster wird nicht gehen, die Wand steht im Hang.
Danke für den Tipp mit den Türrichtungen, die werden wir uns auch nochmal anschauen.
Esszimmerbank: Ich möchte auch deswegen das Fenster Richtung Süden verschieben, dann hat mindesten 1 Platz eine Rücklehne dort wenn nicht sogar 2 und die Aussicht wird besser, wir werden nicht oft mehr als zu 4 Essen.
In den warmen Monaten bestimmt auch immer auf der Terrasse, daher sollte das passen wenn ein Bankplatz eine Rückenlehne bekommt.
ypg schrieb:
Ich finde das Haus etwas.. stelzig und werde nicht warm mit dem Plan.
Ist es nicht sinnvoller, die Garage als Randbebauung in den Osten zu packen und die Südseite im UG als Allraum zu planen, damit man noch etwas vom
Grundstück hat? Darauf dann das OG mit den Schlafräumen…
Wo ist denn jetzt die Toilette und wo soll sie hin? Ich kann damit nichts anfangen, weil übergezeichnet.
Wie ist das Budget?Stelzig: Was wäre dein Vorschlag? Findest du es ist auch nicht gut ins Gelände bebaut oder wirkt nur der Plan stelzig?
Die Toilette ist das W, eingezeichnet im Original ist sie gegenüber neben dem Waschtisch = Gegenüber.
Das Carport daneben packen ist nicht so einfach... erstens müsste das Haus dann komplett auf die Westseite vom Grundstück, aber gerade da soll der "Garten" sein und zweitens wo kommt dann die Terrasse hin?
Das Grundstück ist wegen der Hanglage sowieso nicht mit der "großen Gartenfläche" gesegnet, das ist alles etwas Steil.
hanghaus2023 schrieb:
Das geht ganz einfach. 4 m nach vorn und 3 m tiefer.

Die Garage dann direkt anfahrenWeiter unten bauen ist nicht möglich. Das Grundstück im Osten wird auch bebaut, von der Familie - die wollen auch noch Aussicht nach Westen. Unsere Aussicht wird dadurch nicht besser und wir haben dann hinter dem Haus einen ziemlich großen, steilen Hang den niemand benützen kann (da klettert man rauf und geht nicht) - die zufahrt wäre natürlich einfacher dadurch.
Zwecks Abstände geht es natürlich.
3m sind Mindestabstand.
hanghaus2023 schrieb:
Hier mal noch der Lageplan. Das Haus wandert in eine etwas flachere Region.

Vielen Dank für den Vorschlag, aber siehe weiter oben, da "dürfen/sollen" wir nicht bauen das ist würde dann genau die Sicht versperren für das Haus im östlichen (Familien) Nachbargrundstück.
Was spricht deiner Meinung nach dafür das Haus nicht in den Steilen Hang zu stellen? Dort nimmt das Haus doch am wenigsten "verwendbares" Grundstück/Garten weg.
Vorweg: Ich möchte eure Vorschläge nicht pauschal abblocken, das Haus verschieben nach unten verschieben ist aber nicht drinnen.
Das Carport östlich in den Steilhang bauen ist wohl Zufahrts und Kostenmäßig etwas kompliziert? Dazu kommt noch das der geplante kleine Garten im Westen wegfällt, dafür hätten wir dann vor dem Haus einen Garten... was auch nicht schlecht wäre, aber wohl die deutlich teurere Lösung vllt? Und wo ist dann die große Terrasse?
IIIIIIIIIIIIII schrieb:
Die Toilette ist das W, eingezeichnet im Original ist sie gegenüber neben dem Waschtisch = Gegenüber.Ich dachte rechts vom eingezeichneten Waschbecken ... wäre halt vielleicht gut "Original" und "angedachte Variante" parallel einzustellen. Denn durch deine Zeichnungen kann man Original nicht mehr erkennen.I
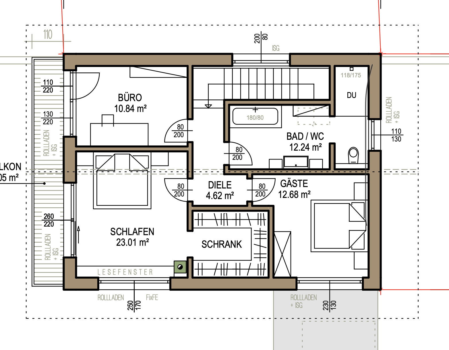
IIIIIIIIIIIIII17.05.24 21:01kbt09 schrieb:
Ich dachte rechts vom eingezeichneten Waschbecken ... wäre halt vielleicht gut "Original" und "angedachte Variante" parallel einzustellen. Denn durch deine Zeichnungen kann man Original nicht mehr erkennen.Hier der original Grundriss vom OG.
Ähnliche Themen