ᐅ Garten-Landschaftsbauer Angebot ok oder doch eher total überzogen?
Erstellt am: 15.09.18 17:40
R
R.HotzenplotzR
R.Hotzenplotz15.09.18 17:40Hi!
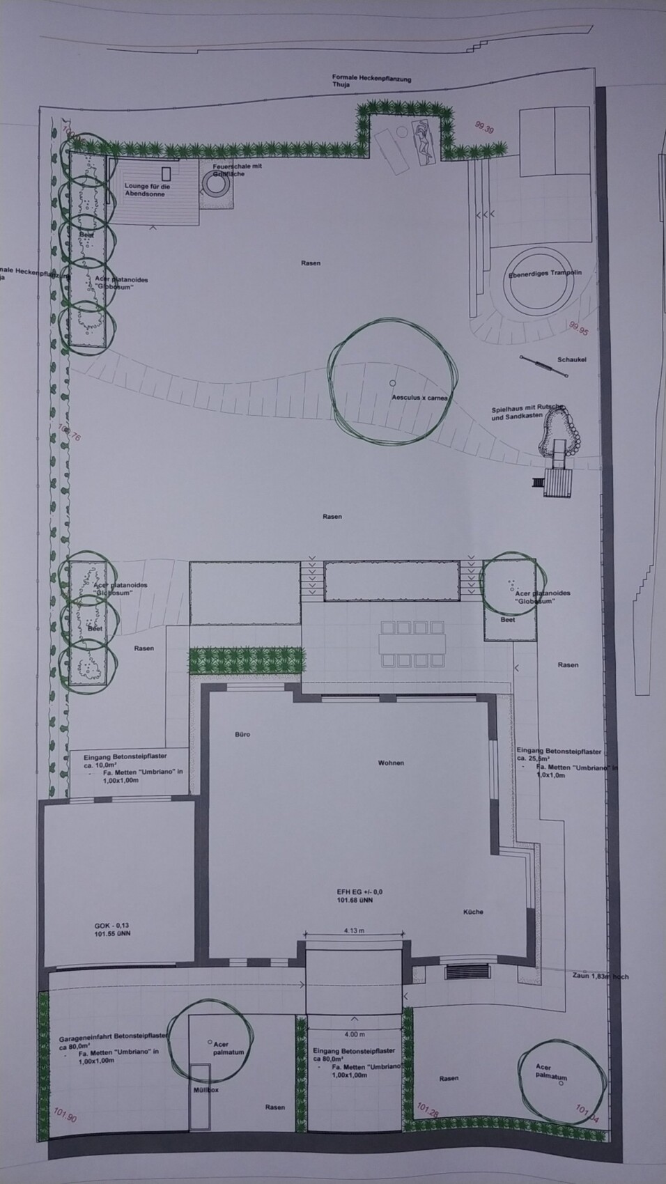
Ich habe von einem Garten-Landschaftsbauer ein Angebot erhalten und mich interessiert mal, ob ihr das so Ok findet oder maßlos überzogen? Dass es nicht der günstigste ist, wusste ich von Anfang an aber trotzdem wäre interessant, wie ihr das einordnet.
Schade ist, dass er erst sagte, für € 125.000 könne er alles fertig anbieten (sogar mit Pool) - also auch Lichtpaket etc. - aber jetzt ist so Vieles gar nicht mit drin - kein Licht, keine Bewässerungsanlage etc.
Hier in der Gegend ist es leider nicht so, dass man sich vor Alternativangeboten nicht retten kann. Wer nicht von Anfang an plant und weiß, dass er es dann auch umsetzen soll, tut sich schwer, mal eine Alternative anzubieten.










Ich habe von einem Garten-Landschaftsbauer ein Angebot erhalten und mich interessiert mal, ob ihr das so Ok findet oder maßlos überzogen? Dass es nicht der günstigste ist, wusste ich von Anfang an aber trotzdem wäre interessant, wie ihr das einordnet.
Schade ist, dass er erst sagte, für € 125.000 könne er alles fertig anbieten (sogar mit Pool) - also auch Lichtpaket etc. - aber jetzt ist so Vieles gar nicht mit drin - kein Licht, keine Bewässerungsanlage etc.
Hier in der Gegend ist es leider nicht so, dass man sich vor Alternativangeboten nicht retten kann. Wer nicht von Anfang an plant und weiß, dass er es dann auch umsetzen soll, tut sich schwer, mal eine Alternative anzubieten.
R
R.Hotzenplotz15.09.18 17:41R
R.Hotzenplotz15.09.18 17:42guter Preis! NICHT.
Garten ist sehr teuer und in dem Angebot ist auch viel drin, aber definitiv keine 125.000 Euro. Ich würde eher sagen bei dem Leistungsumfang 75.000 Euro.
Wenn man mit Rotstift rangeht und optimiert, kann man das auch für 50.000 machen lassen. Muss man aber geschickt planen.
Ein Beispiel: Statt 3000 Euro Entwässerungsrinne einen kleinen Sickerschacht und Gully setzen. Kostet 500 Euro. Wie du siehst 2500 gespart.
Das lässt sich wohl bei vielen Positionen so durchziehen.
Die Auftragslage der Garten-Landschaftsbauer wird wohl sehr hoch sein, aber alles muss man als Kunde nicht akzeptieren.
Garten ist sehr teuer und in dem Angebot ist auch viel drin, aber definitiv keine 125.000 Euro. Ich würde eher sagen bei dem Leistungsumfang 75.000 Euro.
Wenn man mit Rotstift rangeht und optimiert, kann man das auch für 50.000 machen lassen. Muss man aber geschickt planen.
Ein Beispiel: Statt 3000 Euro Entwässerungsrinne einen kleinen Sickerschacht und Gully setzen. Kostet 500 Euro. Wie du siehst 2500 gespart.
Das lässt sich wohl bei vielen Positionen so durchziehen.
Die Auftragslage der Garten-Landschaftsbauer wird wohl sehr hoch sein, aber alles muss man als Kunde nicht akzeptieren.
R
R.Hotzenplotz15.09.18 18:21Also würdest du eher den Leistungsumfang versuchen zu kürzen anstatt den Preis für die angebotenen Leistungen zu verhandeln? Auf € 75.000 runter wäre ja schon ein Wahnsinnsschritt. Ich hatte mit mehreren Garten-Landschaftsbauern damals gesprochen aber für unter € 100.000 hat keiner was in Aussicht gestellt.
Auf jeden Fall bin ich sicher, dass der Anbieter top ist und das Ganze top ausführen würde. Wenn ich dagegen unsere Nachbarn sehe; die müssen mit ihrem Garten-Landschaftsbauer vor Gericht. Da hätte ich keinen Bock darauf. Ich finde auch Ok, wenn Leistung bezahlt wird. Trotzdem will man als Laie ja wissen, dass man jemanden zwar gut aber nicht überzogen bezahlt.
Der hatte mir im Gespräch irgendwas gesagt, dass es solche Rinnen gibt, da klackert es jedes Mal, wenn man mit dem Auto aufs Grundstück fährt und sowas wolle ich doch wohl für so ein Objekt nicht haben, sagt er.
Auf jeden Fall bin ich sicher, dass der Anbieter top ist und das Ganze top ausführen würde. Wenn ich dagegen unsere Nachbarn sehe; die müssen mit ihrem Garten-Landschaftsbauer vor Gericht. Da hätte ich keinen Bock darauf. Ich finde auch Ok, wenn Leistung bezahlt wird. Trotzdem will man als Laie ja wissen, dass man jemanden zwar gut aber nicht überzogen bezahlt.
Bookstar schrieb:
Ein Beispiel: Statt 3000 Euro Entwässerungsrinne einen kleinen Sickerschacht und Gully setzen. Kostet 500 Euro. Wie du siehst 2500 gespart.
Der hatte mir im Gespräch irgendwas gesagt, dass es solche Rinnen gibt, da klackert es jedes Mal, wenn man mit dem Auto aufs Grundstück fährt und sowas wolle ich doch wohl für so ein Objekt nicht haben, sagt er.
Also ich kenne in den heutigen Zeiten niemanden mehr der sich das wirklich alles vom Garten-Landschaftsbauer hinstellen lässt, nicht mal die Leute die Kohle haben.
Such dir einen günstigen evtl polnischen oder was weiss ich was Pflasterer, lass den das machen was du selber nicht schaffst, weil Pflastern ist echt hart...
Und die Bäume und Pflanzen die musst dann selber machen. Rollrasen aus dem Netz aus Holland bestellen.
Ausser du hast einfach zu viel Geld.
Such dir einen günstigen evtl polnischen oder was weiss ich was Pflasterer, lass den das machen was du selber nicht schaffst, weil Pflastern ist echt hart...
Und die Bäume und Pflanzen die musst dann selber machen. Rollrasen aus dem Netz aus Holland bestellen.
Ausser du hast einfach zu viel Geld.
Ähnliche Themen