Hausbau - Ratgeber
Bauherrenhilfe
- Bauherrenhilfe vor Vertragsabschluss
-- Warum einen unabhängigen Baubetreuer?
-- Vertragsgrundlagen
-- Bausumme
-- Zahlungsplan zur Kostenkontrolle
-- Pflichten des Bauherren vor Vertragsabschluss
-- Unterlagen beim Hausbau vor Vertragsabschluss
- Bauherrenhilfe nach Vertragsabschluss
-- Bauantrag bei Behörden
-- Bau-Genehmigungsverfahren bei Baubehörden
-- Bauspezifische Versicherungen
-- Bauzeitenplan
-- Baubeginn - die Letzten Pflichten der Bauherrschaft
- Bauherrenhilfe während der Bauzeit
- Gewährleistungsansprüche
- Bauabnahme
Baufinanzierung
- Baufinanzierung - Allgemeine Fragen
- Kreditarten
- Kredit-Konditionen
- Bausparen
- Staatliche Förderungen
- Verkehrswert
- Haushaltsrechnung und Bonität
Hausbau Planung
- Haustypen
- Hausbau Vorbereitungsarbeiten
- Das Baugrundstück
- Baugrund beim Hausbau
- Baurecht
- Gebäudeschutz
- Erdarbeiten und Wasserhaltung
- Stützmauern
- Einfriedung
- Untergeschoss
- Kanalisation
- Tragende Elemente
- Nichttragende Innenwände
- Fundation / Fundament
- Deckenkonstruktionen
- Dächer
- Kaminanlagen
- Treppen Rampen Leitern
- Dachbeläge und Spengler
- Fenster
- Sonnen und Wetterschutz
- Aussenputze
- Einbauten, Küchen, Türen
- Bodenbeläge und Unterlagsböden
- Parkett
- Gips, Wand, Decke
Haustechnik und Energie
- Heiztechnik
- Lüftung und Klimatechnik
- Sanitärtechnik
- Elektrotechnik
- Erneuerbare Energie
Whirlpools / Jacuzzi
Hausbau Magazin
- Baufinanzierung trotz Krise?
- Das Blockhaus
- Moderne Dämmstoffe im Vergleich
- Erker Vor- und Nachteile
- Glasflächen beim Hausbau
- Günstig ein Haus Bauen
- Mediterraner Hausbaustil
- Mehrgenerationenhaus
- Moderne Architektur
- Gartengestaltung leicht gemacht
- Traditioneller Ziegelbau
- Villa als höchster Traum
- Im Eigenheim Ruhestand geniessen
- Altbau sanieren
- Kauf einer Holzgarage
- Immobilienmakler
- Arbeitshandschuhe für den Winter
- Zuhause verschönern
- Outdoor-Plissees
- Schlafzimmer planen
- Terrassenüberdachung
- Wohngebäudeversicherung
- Zaunarten und Eigenschaften
- Hauseingang gestalten
- Der perfekte Grundriss
- Sparsamer heizen im Altbau
- Einfamilienhaus smart finanzieren
- Planung einer PV-Anlage
- Neues Haus
- Immobilienfinanzierung
- Installation einer Photovoltaikanlage
- Asbest erkennen und entfernen
- Gartenpflege im Frühling – worauf achten
- Sauna im Fokus - Wellness zuhause
- Erfolgreich vermieten
- Die perfekte Winterbekleidung
- Das Niedrigenergiehaus
- Der April und seine Stürme
- Architektonische Vielfalt
- Ökologisch und nachhaltig bauen
- Das perfekte Schlafzimmer
- Nachhaltige Energieversorgung
- Zukunftsorientiert bauen
- Nachhaltigkeit beim Hausbau
- Tiny Houses
- Wärmepumpen als nachhaltige Heizvariante
- Maßgeschneiderten Kleiderschrank
- Der richtige Baukredit
- Ratgeber für erfolgreichen Hausbau
- Haus als Altersvorsorge
Do-it-yourself Anleitungen
- Verlegeanleitung für Bodenbeläge und Parkett
- Bodenbeläge und Parkett reinigen und pflegen
- Malerarbeiten am Haus
- Garten Tipps
- Umzug und Reinigung

ᐅ Fenster Brüstungshöhe 130 im Schlafzimmer / Arbeitszimmer?

Erstellt am: 23.11.21 17:37
A
audiophilone
Nida35a24.11.21 00:05
ein Haus wirkt für mich am schönsten mit einer modernen und vor allem zeitlosen Form,
farbliche Akzente können das unterstützen.
Gute Maler und Architekten haben einen Blick dafür, ich kann nur sagen,
gefällt mir oder nicht,
und das Haus auf dem Bild guckt mich nicht freundlich an
A
audiophilone
24.11.21 00:10
Gilt das für beide ausführen mit den verschiedenen Brüstungshöhen?
Nida35a24.11.21 00:24
mache nicht die Fenster abhängig von den Farbakzenten,
sondern was ihr von innen sehen wollt,
im Stehen, im Sitzen und im Liegen.
Wenn ich mit Kindern auf dem Boden spiele, mag ich auch den Blick raus.
Gleichzeitig sollten Blicke ins Schlafzimmer nicht unter die Gürtellinie gehen. Wir haben das mit bodentiefen Fenstern und Raffstores gemacht
11ant24.11.21 00:50
audiophilone schrieb:

@11ant ja dann mach doch mal einen Vorschlag
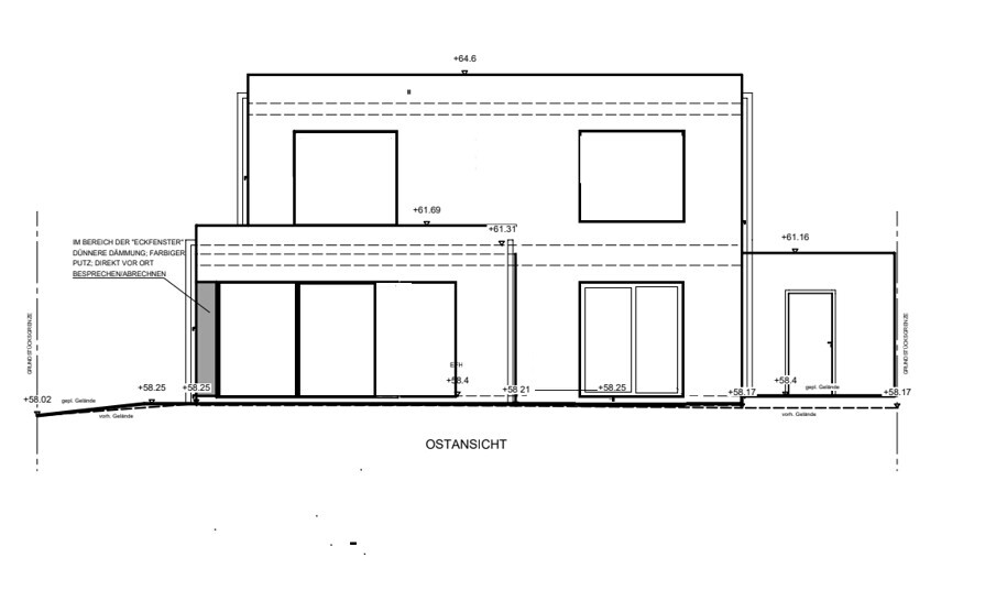
Das habe ich doch bereits: weg mit dem Heckmeck der Vor- und Rücksprünge - mindestens da, wo sie auch noch in EG und OG unterschiedlich sind - und den Eckfenstern (wtf braucht die ibs. beim Duschen und auf dem Klo ?), Smokey Eyes abschminken. Dann ist der Weg frei für Schritt 2: von innen nach außen planen. Einfach mal eine Nacht drüber schlafen, daß ich dreist behaupte, Konfuzius hätte das gesagt: "weniger Design ist mehr Gestaltung" (es könnte aber auch Gropius oder LC gewesen sein, oder keiner von den dreien - Hauptsache, es stimmt). Wisch´ die Attitüde weg, dann kann die Ästhetik durchatmen !
https://www.instagram.com/11antgmxde/
https://www.linkedin.com/company/bauen-jetzt/
A
audiophilone
24.11.21 01:20
@11ant Rücksprünge damit meinst du die an den Eckfenstern, ja? ach ja egal für heute bin ich völlig durcheinander...bezweifle aber auch das es morgen anders aussieht...und wirklich Zeit zum umplanen habe ich auch nicht mehr wollte ende der woche eigentlich das Ding frei geben.
A
audiophilone
24.11.21 01:43
so hab nochmal so ein bissel was versucht...

Ostansicht eines modernen, zweigeschossigen Hauses mit großen Fensterfronten und Eingang rechts.


Moderne Hausarchitektur: Süd- und Westansicht mit Garage und großen Fensterflächen
rücksprünge