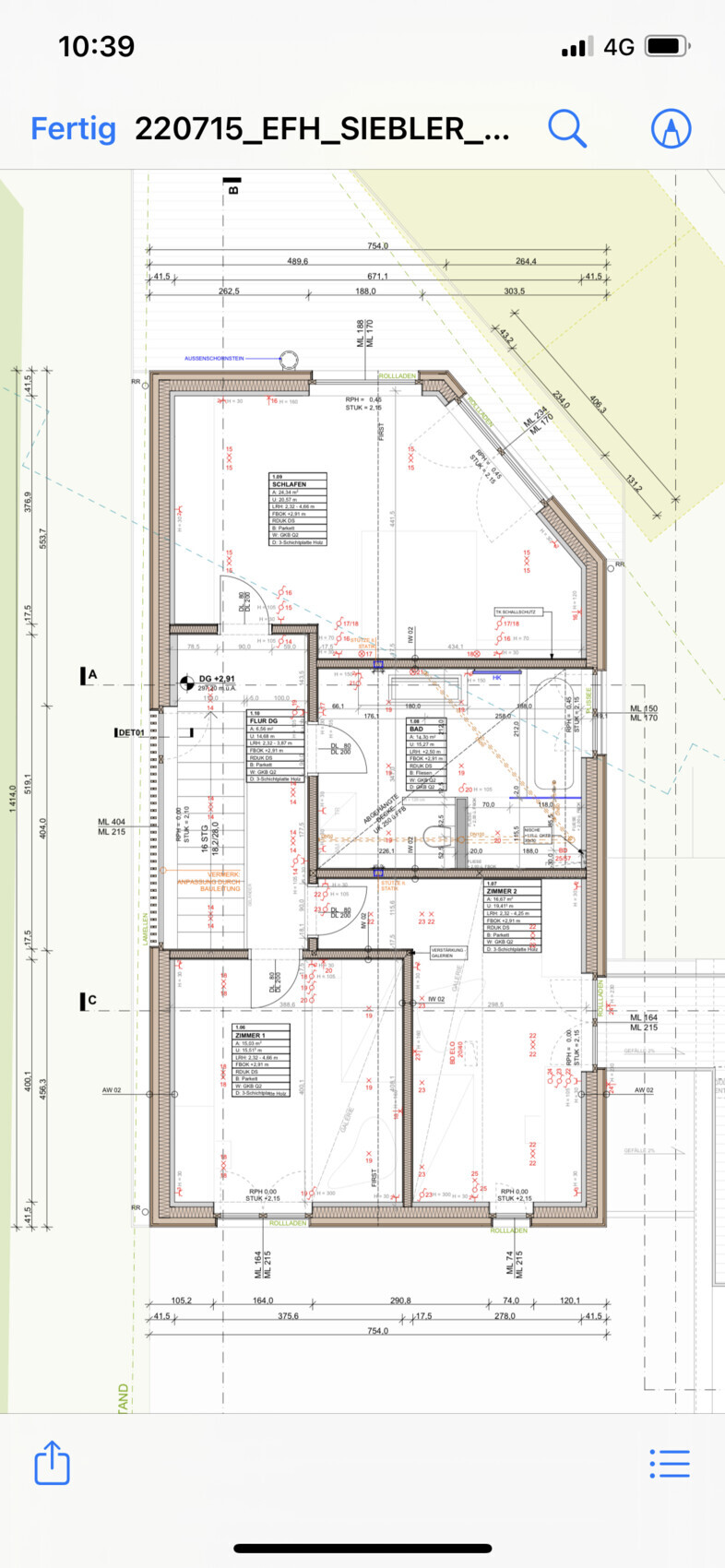
Euren Tipp mit einem Kinderzimmer weniger haben wir direkt umgesetzt.
Auch haben wir die Speisekammer deutlich reduziert.
Das war das Resultat aus einer konsequenten Streichung von etwa 1,5m auf die Gesamthauslänge, sowie einer Reduzierung von etwa 0,5m auf die Breite.
Natürlich ist jetzt das Gästezimmer sehr kompakt, aber zum Schlafen sowie Arbeiten reicht es allemal.


Auch haben wir die Speisekammer deutlich reduziert.
Das war das Resultat aus einer konsequenten Streichung von etwa 1,5m auf die Gesamthauslänge, sowie einer Reduzierung von etwa 0,5m auf die Breite.
Natürlich ist jetzt das Gästezimmer sehr kompakt, aber zum Schlafen sowie Arbeiten reicht es allemal.
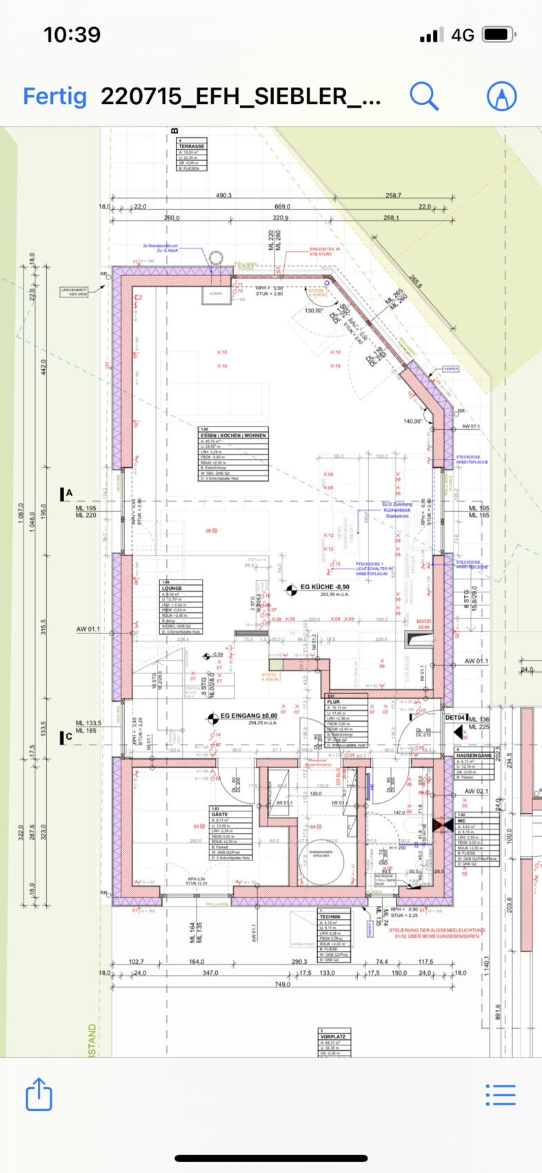
Ja die gibt es.
Es liegen etwa15% des nördlichen Gebäudes in der Zone.
Folgendes musste beachtet werden:
- Retentionsausgleich für die ges. Fläche
- keine Schlafräume idZone
- keine neuralgische Technik (Elo/Hauswirtschaftsraum) idZone
- erdberührende Teile aus Stahlbeton ( hier Sockel 90cm)
Es liegen etwa15% des nördlichen Gebäudes in der Zone.
Folgendes musste beachtet werden:
- Retentionsausgleich für die ges. Fläche
- keine Schlafräume idZone
- keine neuralgische Technik (Elo/Hauswirtschaftsraum) idZone
- erdberührende Teile aus Stahlbeton ( hier Sockel 90cm)