ᐅ Doppelhaushälfte Möglichkeitsabschätzung Ideen Hinweise
Erstellt am: 12.01.20 10:29
T
Tolentino12.01.20 10:29Bebauungsplan/Einschränkungen
Größe des Grundstücks; 327 m²
Hang: nein
Grundflächenzahl: 0,2
Geschossflächenzahl: 0,3
Baufenster, Baulinie und -grenze
§34 - 3m Abstand etc.
Randbebauung: Nicht relevant für Fragestellung
Anzahl Stellplatz: 1
Geschossigkeit: 2
Dachform: Sattel
Stilrichtung: Modern
Ausrichtung
Maximale Höhen/Begrenzungen
weitere Vorgaben
Das Haus als solches ist vom Bauträger bestimmt und damit in seinen Abmessungen, Formen und der Ausrichtung nicht mehr beeinflussbar (siehe Grundrisse). Es geht also nur um die inneren Grundrisse, Aufteilung und optimale Platzausnutzung.
Anforderungen der Bauherren
Stilrichtung, Dachform, Gebäudetyp: Durch Bauträger festgelegt, s.o.
Keller, Geschosse
Kein Keller, 2 Geschosse mit ausgebautem Dachstuhl
Anzahl der Personen, Alter
Ist: 2 Erwachsene, ein Kind (8), zweit weitere Kinder geplant
Raumbedarf im EG, OG
m² sind durch Gebäude vorgegeben (52,44 m² Brutto Innen-Grundfläche)
Büro: Homeoffice?
Schlafgäste pro Jahr: 8
offene oder geschlossene Architektur: offen
konservativ oder moderne Bauweise: modern
offene Küche: Ja Insel nur wenn es nicht zu eng wird
Anzahl Essplätze: 6
Kamin: nein
Musik/Stereowand: Heimkino
Balkon, Dachterrasse: Nein
Garage, Carport: Nein
Nutzgarten, Treibhaus: später, nicht Teil der Fragestellung
weitere Wünsche/Besonderheiten/Tagesablauf:
Wir brauchen noch irgendwo Stauraum, da kein Keller.
Extra Duschbad, weil bei später 5 Personen es morgens sonst zu sehr staut, mit Gästen sowieso
Partnerin mag keine "schräge" Zimmertüren, also Zimmer sollen immer im rechten Winkel begehbar sein (Eingang Küche/WZ ist als Ausnahme abgenommen (Aber ja auch keine Tür drin)
Hausentwurf
Von wem stammt die Planung:
-Do-it-Yourself auf Basis eines Plans vom Bauunternehmer
Was gefällt besonders? Warum?
6 Zimmer untergebracht, Extra Duschbad untergebracht, ein bisschen Stauraum hingekriegt
Was gefällt nicht? Warum?
Schmales Schlafzimmer, sehr kleiner Hauswirtschaftsraum (muss lt. BU min. 5 m² haben), ein Zimmer mit vielen Ecken im DG
Preisschätzung lt Architekt/Planer:
300.000
Persönliches Preislimit fürs Haus, inkl Ausstattung:
330.000 (All In ohne Außenanlagen, ohne Nebenkosten)
favorisierte Heiztechnik:
Luftwärmepumpe
Wenn Ihr verzichten müsst, auf welche Details/Ausbauten
-könnt Ihr verzichten:
Abstellraum (dann eben als Schuppen?)
-könnt Ihr nicht verzichten:
-zweites Duschbad, abgetrenntes Büro
Warum ist der Entwurf so geworden, wie er jetzt ist? ZB
Standardentwurf vom Planer?
Entsprechende/Welche Wünsche wurden vom Architekten umgesetzt?
Ein Gemisch aus vielen Beispielen aus div. Magazinen...
Was macht ihn in Euren Augen besonders gut oder schlecht?
selbst modifizierter Planungsvorschlag vom BT. Hatte ursprünglich nur 4 Zimmer.
Was ist die wichtigste/grundlegende Frage zum Grundriss in 130 Zeichen zusammengefasst?
Ist der Grundriss so überhaupt möglich?
Haben wir was vergessen? Kriegt man das irgendwie schöner hin? Die Treppe kann lt. BT kleiner, der Platz muss aber wohl schon dem Hauswirtschaftsraum zugeschlagen werden (lt BT zu klein).
Insbesondere machen uns der mangelnde Stauraum (kein Keller, kein Dachboden) Sorgen.
Wo kriegt man denn dann sein Geraffel unter (ich meine keinen Sperrmüll, sondern so Sachen, die man eben nicht das ganze Jahr über braucht: Schlauchboot und Luftmatratze, Tannenbaum, Winterjacken, etc).
Lageplan kommt nach.
Danke und Gruß
Tolentino



Größe des Grundstücks; 327 m²
Hang: nein
Grundflächenzahl: 0,2
Geschossflächenzahl: 0,3
Baufenster, Baulinie und -grenze
§34 - 3m Abstand etc.
Randbebauung: Nicht relevant für Fragestellung
Anzahl Stellplatz: 1
Geschossigkeit: 2
Dachform: Sattel
Stilrichtung: Modern
Ausrichtung
Maximale Höhen/Begrenzungen
weitere Vorgaben
Das Haus als solches ist vom Bauträger bestimmt und damit in seinen Abmessungen, Formen und der Ausrichtung nicht mehr beeinflussbar (siehe Grundrisse). Es geht also nur um die inneren Grundrisse, Aufteilung und optimale Platzausnutzung.
Anforderungen der Bauherren
Stilrichtung, Dachform, Gebäudetyp: Durch Bauträger festgelegt, s.o.
Keller, Geschosse
Kein Keller, 2 Geschosse mit ausgebautem Dachstuhl
Anzahl der Personen, Alter
Ist: 2 Erwachsene, ein Kind (8), zweit weitere Kinder geplant
Raumbedarf im EG, OG
m² sind durch Gebäude vorgegeben (52,44 m² Brutto Innen-Grundfläche)
Büro: Homeoffice?
Schlafgäste pro Jahr: 8
offene oder geschlossene Architektur: offen
konservativ oder moderne Bauweise: modern
offene Küche: Ja Insel nur wenn es nicht zu eng wird
Anzahl Essplätze: 6
Kamin: nein
Musik/Stereowand: Heimkino
Balkon, Dachterrasse: Nein
Garage, Carport: Nein
Nutzgarten, Treibhaus: später, nicht Teil der Fragestellung
weitere Wünsche/Besonderheiten/Tagesablauf:
Wir brauchen noch irgendwo Stauraum, da kein Keller.
Extra Duschbad, weil bei später 5 Personen es morgens sonst zu sehr staut, mit Gästen sowieso
Partnerin mag keine "schräge" Zimmertüren, also Zimmer sollen immer im rechten Winkel begehbar sein (Eingang Küche/WZ ist als Ausnahme abgenommen (Aber ja auch keine Tür drin)
Hausentwurf
Von wem stammt die Planung:
-Do-it-Yourself auf Basis eines Plans vom Bauunternehmer
Was gefällt besonders? Warum?
6 Zimmer untergebracht, Extra Duschbad untergebracht, ein bisschen Stauraum hingekriegt
Was gefällt nicht? Warum?
Schmales Schlafzimmer, sehr kleiner Hauswirtschaftsraum (muss lt. BU min. 5 m² haben), ein Zimmer mit vielen Ecken im DG
Preisschätzung lt Architekt/Planer:
300.000
Persönliches Preislimit fürs Haus, inkl Ausstattung:
330.000 (All In ohne Außenanlagen, ohne Nebenkosten)
favorisierte Heiztechnik:
Luftwärmepumpe
Wenn Ihr verzichten müsst, auf welche Details/Ausbauten
-könnt Ihr verzichten:
Abstellraum (dann eben als Schuppen?)
-könnt Ihr nicht verzichten:
-zweites Duschbad, abgetrenntes Büro
Warum ist der Entwurf so geworden, wie er jetzt ist? ZB
Standardentwurf vom Planer?
Entsprechende/Welche Wünsche wurden vom Architekten umgesetzt?
Ein Gemisch aus vielen Beispielen aus div. Magazinen...
Was macht ihn in Euren Augen besonders gut oder schlecht?
selbst modifizierter Planungsvorschlag vom BT. Hatte ursprünglich nur 4 Zimmer.
Was ist die wichtigste/grundlegende Frage zum Grundriss in 130 Zeichen zusammengefasst?
Ist der Grundriss so überhaupt möglich?
Haben wir was vergessen? Kriegt man das irgendwie schöner hin? Die Treppe kann lt. BT kleiner, der Platz muss aber wohl schon dem Hauswirtschaftsraum zugeschlagen werden (lt BT zu klein).
Insbesondere machen uns der mangelnde Stauraum (kein Keller, kein Dachboden) Sorgen.
Wo kriegt man denn dann sein Geraffel unter (ich meine keinen Sperrmüll, sondern so Sachen, die man eben nicht das ganze Jahr über braucht: Schlauchboot und Luftmatratze, Tannenbaum, Winterjacken, etc).
Lageplan kommt nach.
Danke und Gruß
Tolentino
T
Tolentino12.01.20 10:38Hier kommt noch der Lageplan.Wir hoffen, dass planrechte Teilgrundstück (also das östliche) zu bekommen.
Der Lageplan ist im Gegensatz zu den Grundrissen genordet.
Der gelb markierte Bereich ist das Geh-Fahr und Leitungsrecht des Nachbargrundstücks (dort werden zwei Teilgrundstücke für Einfamilienhaus geplant (selber BT), die wir uns leider nicht leisten können.
Liebe Grüße
Tolentino

Der Lageplan ist im Gegensatz zu den Grundrissen genordet.
Der gelb markierte Bereich ist das Geh-Fahr und Leitungsrecht des Nachbargrundstücks (dort werden zwei Teilgrundstücke für Einfamilienhaus geplant (selber BT), die wir uns leider nicht leisten können.
Liebe Grüße
Tolentino
T
Tolentino12.01.20 10:40T
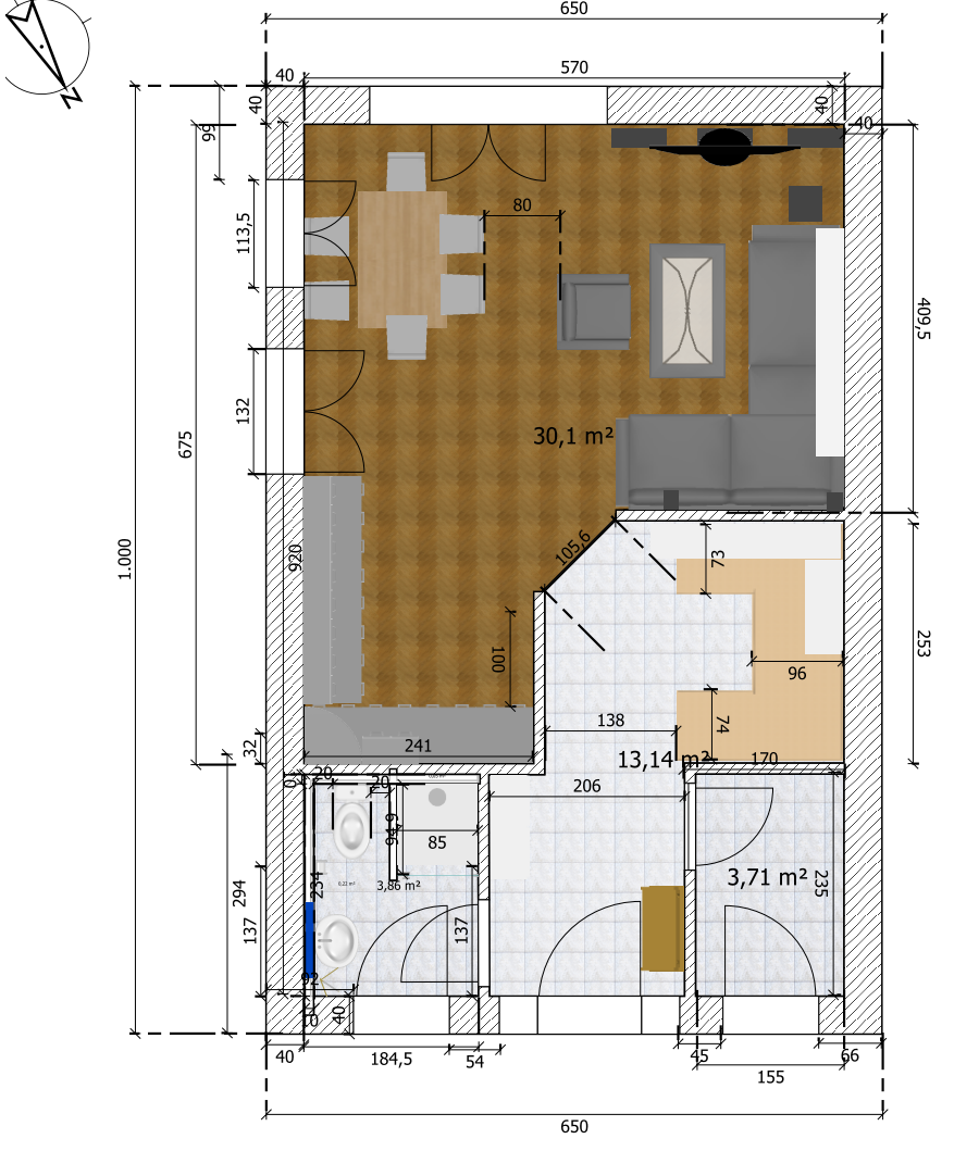
Tolentino12.01.20 11:41haydee schrieb:
Zeichne immer Möbel im Maßstab ein. Bei Tischen den Bewegungsraum mit berücksichtigen.
Dein Wohnbereich funktioniert nicht.
Du brauchst mind. 80cm Wand Tischkante und auf der anderen Seite auch. Somit mind. 2,6 m für den Tisch
Schau dir mal Town & Country Doppelhaus Mainz anDanke schon mal für deine Antwort.
Die Grundrisse habe ich in Sweethome3d gezeichnet insofern kann ich bei den Möbeln genaue Maße eingeben. Ich hoffe doch, dass das Programm dann auch alles im gleichen Maßstab darstellt.
Ich geh mal davon aus, dass du den Esstisch meinst. Der Tisch hat 140*90 ich kann es so hinschieben, dass ich 80 cm nach allen Seiten hab.
Den Town & Country Grundriss habe ich mir mal angeschaut. Ist ja schon sehr ähnlich. Allerdings fehlt die Dusche im Gäste-WC und das Studio muss auch durch zwei.
Mir gefällt das erste OG, dass sieht nicht so gedrängt wie bei mir aus. Das muss ich mal probieren ohne Maßangaben...
Bei 80 cm heißt es immer noch das nur sehr schlanke sich durchquetschen können.
Das sind dann immer noch 2,5 m bei 5, irgendwas m Innenmaß
Probiere es mit Karopapier und Lineal. Du musst nicht Tisch mit 8 Stühlen malen da reicht auch ein Rechteck von 3x2,5 m usw.
Keller geht wirklich nicht? Bei 5 Personen und dieser kleinen Grundfläche wäre es kein Luxus. Eure Haustechnik und Hauswirtschaft ist so groß wie bei uns nur die Wäsche. Und das ist der Raum wo ich sage etwas mehr wäre gut
Das sind dann immer noch 2,5 m bei 5, irgendwas m Innenmaß
Probiere es mit Karopapier und Lineal. Du musst nicht Tisch mit 8 Stühlen malen da reicht auch ein Rechteck von 3x2,5 m usw.
Keller geht wirklich nicht? Bei 5 Personen und dieser kleinen Grundfläche wäre es kein Luxus. Eure Haustechnik und Hauswirtschaft ist so groß wie bei uns nur die Wäsche. Und das ist der Raum wo ich sage etwas mehr wäre gut
Ähnliche Themen