Hausbau - Ratgeber
Bauherrenhilfe
- Bauherrenhilfe vor Vertragsabschluss
-- Warum einen unabhängigen Baubetreuer?
-- Vertragsgrundlagen
-- Bausumme
-- Zahlungsplan zur Kostenkontrolle
-- Pflichten des Bauherren vor Vertragsabschluss
-- Unterlagen beim Hausbau vor Vertragsabschluss
- Bauherrenhilfe nach Vertragsabschluss
-- Bauantrag bei Behörden
-- Bau-Genehmigungsverfahren bei Baubehörden
-- Bauspezifische Versicherungen
-- Bauzeitenplan
-- Baubeginn - die Letzten Pflichten der Bauherrschaft
- Bauherrenhilfe während der Bauzeit
- Gewährleistungsansprüche
- Bauabnahme
Baufinanzierung
- Baufinanzierung - Allgemeine Fragen
- Kreditarten
- Kredit-Konditionen
- Bausparen
- Staatliche Förderungen
- Verkehrswert
- Haushaltsrechnung und Bonität
Hausbau Planung
- Haustypen
- Hausbau Vorbereitungsarbeiten
- Das Baugrundstück
- Baugrund beim Hausbau
- Baurecht
- Gebäudeschutz
- Erdarbeiten und Wasserhaltung
- Stützmauern
- Einfriedung
- Untergeschoss
- Kanalisation
- Tragende Elemente
- Nichttragende Innenwände
- Fundation / Fundament
- Deckenkonstruktionen
- Dächer
- Kaminanlagen
- Treppen Rampen Leitern
- Dachbeläge und Spengler
- Fenster
- Sonnen und Wetterschutz
- Aussenputze
- Einbauten, Küchen, Türen
- Bodenbeläge und Unterlagsböden
- Parkett
- Gips, Wand, Decke
Haustechnik und Energie
- Heiztechnik
- Lüftung und Klimatechnik
- Sanitärtechnik
- Elektrotechnik
- Erneuerbare Energie
Whirlpools / Jacuzzi
Hausbau Magazin
- Baufinanzierung trotz Krise?
- Das Blockhaus
- Moderne Dämmstoffe im Vergleich
- Erker Vor- und Nachteile
- Glasflächen beim Hausbau
- Günstig ein Haus Bauen
- Mediterraner Hausbaustil
- Mehrgenerationenhaus
- Moderne Architektur
- Gartengestaltung leicht gemacht
- Traditioneller Ziegelbau
- Villa als höchster Traum
- Im Eigenheim Ruhestand geniessen
- Altbau sanieren
- Kauf einer Holzgarage
- Immobilienmakler
- Arbeitshandschuhe für den Winter
- Zuhause verschönern
- Outdoor-Plissees
- Schlafzimmer planen
- Terrassenüberdachung
- Wohngebäudeversicherung
- Zaunarten und Eigenschaften
- Hauseingang gestalten
- Der perfekte Grundriss
- Sparsamer heizen im Altbau
- Einfamilienhaus smart finanzieren
- Planung einer PV-Anlage
- Neues Haus
- Immobilienfinanzierung
- Installation einer Photovoltaikanlage
- Asbest erkennen und entfernen
- Gartenpflege im Frühling – worauf achten
- Sauna im Fokus - Wellness zuhause
- Erfolgreich vermieten
- Die perfekte Winterbekleidung
- Das Niedrigenergiehaus
- Der April und seine Stürme
- Architektonische Vielfalt
- Ökologisch und nachhaltig bauen
- Das perfekte Schlafzimmer
- Nachhaltige Energieversorgung
- Zukunftsorientiert bauen
- Nachhaltigkeit beim Hausbau
- Tiny Houses
- Wärmepumpen als nachhaltige Heizvariante
- Maßgeschneiderten Kleiderschrank
- Der richtige Baukredit
- Ratgeber für erfolgreichen Hausbau
- Haus als Altersvorsorge
Do-it-yourself Anleitungen
- Verlegeanleitung für Bodenbeläge und Parkett
- Bodenbeläge und Parkett reinigen und pflegen
- Malerarbeiten am Haus
- Garten Tipps
- Umzug und Reinigung

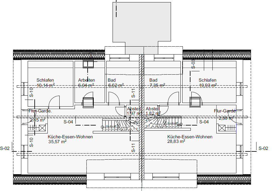
ᐅ Doppelhaushälfte mit 2-3 Wohneinheiten

Erstellt am: 02.09.23 20:58
J
jojojo!
J
jojojo!
02.09.23 20:58
Hallo,
ich bin ganz neu hier und wollte fragen, ob mir jemand erklären kann, ob man eine Doppelhaushälfte in mehrere Wohneinheiten aufteilen kann? Wo ist geregelt, ob sowas geht? Wie würde man vorgehen?
Danke und liebe Grüße
Y
ypg
02.09.23 21:32
Im Bebauungsplan ist das geregelt!
Meist ist es das Gemeinschaftsgrundstück, was 2 Wohneinheiten erlaubt. Somit also 2 Doppelhaushälften: ein Doppelhaus, 2 Doppelhaushälften = 2 Wohneinheiten.
Es gibt auch Doppelhaushälften-Regelungen mit 2 Wohneinheiten, allerdings recht selten, da zu einer Wohneinheit meist mindestens ein Stellplatz generiert werden muss, ggf. auch 2. Das würde bei einer Doppelhaushälfte mit zwei Wohneinheiten 4 Stellplätze bedeuten, was oft gar nicht möglich ist.
J
jojojo!
02.09.23 22:32
Danke!!
Könnte man denn vielleicht eine Abgabe zahlen, wenn man nicht alle Parkplätze zur Verfügung hat?
H
hanse987
02.09.23 22:54
jojojo! schrieb:

Danke!!
Könnte man denn vielleicht eine Abgabe zahlen, wenn man nicht alle Parkplätze zur Verfügung hat?

Musst du deine Kommune fragen, ob dies möglich ist.
S
Sunshine387
03.09.23 09:36
Wenn man im Einfamilienhaus Haus Gebiet ein Mehrfamilienhaus bauen will hat man dann einen ganz einfacheren Weg vor sich. Das Grundstück real teilen und jeweils eine Doppelhaushälfte mit 2 Wohneinheiten auf das Grundstück setzen. So hat man dann ein Mehrfamilienhaus mit 4 Wohnungen als Doppelhaus.
H
hanghaus2023
03.09.23 10:29
Sunshine387 schrieb:

So hat man dann ein Mehrfamilienhaus mit 4 Wohnungen als Doppelhaus.

Und mindestens 6 Stellplätze. Die oft nicht unterzubringen sind.

Ich erinnere mich an einen Beitrag, da hat einer so etwas hinbekommen. Da ging es doch um günstig bauen. Mit aussenliegenden Treppen für das OG.

Ich bitte mal @11ant um Hilfe.
doppelhaushälftenwohneinheitenstellplätzemehrfamilienhausgrundstück