Dachbodenausbau planen - Kniestock und Schrägen

4,80 Stern(e) 4 Votes
Zuletzt aktualisiert 20.10.2025
Sie befinden sich auf der Seite 2 der Diskussion zum Thema: Dachbodenausbau planen - Kniestock und Schrägen
>> Zum 1. Beitrag <<

Y

ypg

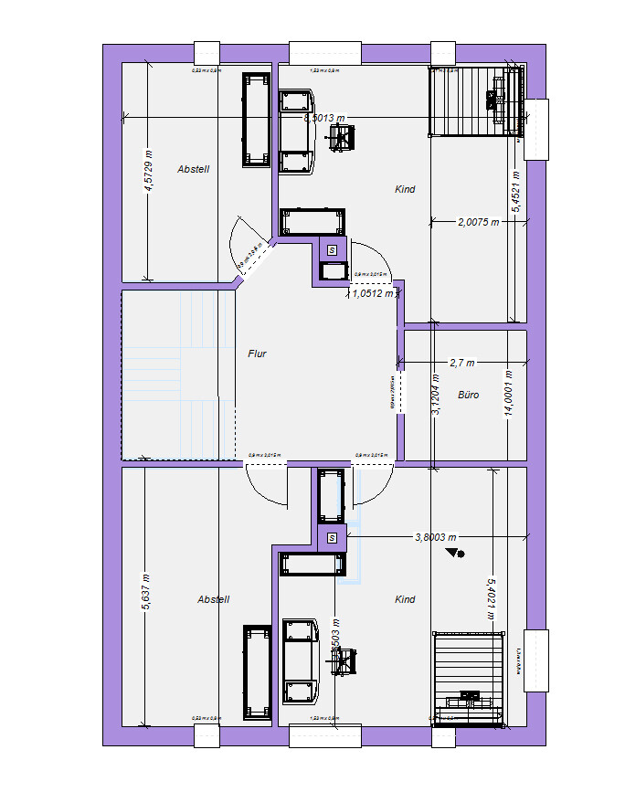
Die Fenster unter dem Kniestock sind Gauben?
Man kann auch den 73er Kniestock mit Einbauschränken bestücken und so auf einen Meter kommen. Würde ich zumindest so machen. Gerade Kindern fällt es darunter nicht schwer, dort diesen Platz als Stauraum zu nutzen.
 
kaho674

kaho674

Ja, ich glaub 73cm Kniestock reichen für das Bett nicht, oder? Da rennt man sich doch ständig die Birne ein. Weiß nicht so recht, muss mal mein Bett messen gehen...
Ein großer Schrank sollte im Zimmer sein. Und der Schreibtisch geht m.E. auch schwer anderswo, wegen der Schrägen.
Deswegen steht das Bett quasi mitten im Zimmer. Ich wollte auch nicht unbedingt die Gaube mit dem Bett verstellen - aber wird wohl anders nicht gehen. Ist schon blöd, riesen Zimmer und doch kein Platz. ;)
 
Zuletzt aktualisiert 20.10.2025
Im Forum Dach gibt es 800 Themen mit insgesamt 6689 Beiträgen


Ähnliche Themen zu Dachbodenausbau planen - Kniestock und Schrägen
Nr.ErgebnisBeiträge
1Aufteilung?! Kleines Zimmer / starke Schräge / Heizkörper 61
2Bett SUNDNES - welche Schrauben? 15
3Idee Schlafzimmer - Bett / Schrank Anordnung 32
4OG Zimmer ausbauen - Genehmigung notwendig? 10
5Estrich in 4 Zimmer 1,5-2cm zu hoch. 13
6Zimmer riecht nach Marihuana oder Haschisch - Seite 10121
7Parkett von Flur in Zimmer durchlegen 17
8Grundrissplanung Stadthaus 150qm mit Satteldach 6 Zimmer - Seite 19150

Oben