Ratgeber
Hausbau - Ratgeber
Bauherrenhilfe
-
Bauherrenhilfe vor Vertragsabschluss
--
Warum einen unabhängigen Baubetreuer?
--
Vertragsgrundlagen
--
Bausumme
--
Zahlungsplan zur Kostenkontrolle
--
Pflichten des Bauherren vor Vertragsabschluss
--
Unterlagen beim Hausbau vor Vertragsabschluss
-
Bauherrenhilfe nach Vertragsabschluss
--
Bauantrag bei Behörden
--
Bau-Genehmigungsverfahren bei Baubehörden
--
Bauspezifische Versicherungen
--
Bauzeitenplan
--
Baubeginn - die Letzten Pflichten der Bauherrschaft
-
Bauherrenhilfe während der Bauzeit
-
Gewährleistungsansprüche
-
Bauabnahme
Baufinanzierung
-
Baufinanzierung - Allgemeine Fragen
-
Kreditarten
-
Kredit-Konditionen
-
Bausparen
-
Staatliche Förderungen
-
Verkehrswert
-
Haushaltsrechnung und Bonität
Hausbau Planung
-
Haustypen
-
Hausbau Vorbereitungsarbeiten
-
Das Baugrundstück
-
Baugrund beim Hausbau
-
Baurecht
-
Gebäudeschutz
-
Erdarbeiten und Wasserhaltung
-
Stützmauern
-
Einfriedung
-
Untergeschoss
-
Kanalisation
-
Tragende Elemente
-
Nichttragende Innenwände
-
Fundation / Fundament
-
Deckenkonstruktionen
-
Dächer
-
Kaminanlagen
-
Treppen Rampen Leitern
-
Dachbeläge und Spengler
-
Fenster
-
Sonnen und Wetterschutz
-
Aussenputze
-
Einbauten, Küchen, Türen
-
Bodenbeläge und Unterlagsböden
-
Parkett
-
Gips, Wand, Decke
Haustechnik und Energie
-
Heiztechnik
-
Lüftung und Klimatechnik
-
Sanitärtechnik
-
Elektrotechnik
-
Erneuerbare Energie
Whirlpools / Jacuzzi
Hausbau Magazin
-
Baufinanzierung trotz Krise?
-
Das Blockhaus
-
Moderne Dämmstoffe im Vergleich
-
Erker Vor- und Nachteile
-
Glasflächen beim Hausbau
-
Günstig ein Haus Bauen
-
Mediterraner Hausbaustil
-
Mehrgenerationenhaus
-
Moderne Architektur
-
Gartengestaltung leicht gemacht
-
Traditioneller Ziegelbau
-
Villa als höchster Traum
-
Im Eigenheim Ruhestand geniessen
-
Altbau sanieren
-
Kauf einer Holzgarage
-
Immobilienmakler
-
Arbeitshandschuhe für den Winter
-
Zuhause verschönern
-
Outdoor-Plissees
-
Schlafzimmer planen
-
Terrassenüberdachung
-
Wohngebäudeversicherung
-
Zaunarten und Eigenschaften
-
Hauseingang gestalten
-
Der perfekte Grundriss
-
Sparsamer heizen im Altbau
-
Einfamilienhaus smart finanzieren
-
Planung einer PV-Anlage
-
Neues Haus
-
Immobilienfinanzierung
-
Installation einer Photovoltaikanlage
-
Asbest erkennen und entfernen
-
Gartenpflege im Frühling – worauf achten
-
Sauna im Fokus - Wellness zuhause
-
Erfolgreich vermieten
-
Die perfekte Winterbekleidung
-
Das Niedrigenergiehaus
-
Der April und seine Stürme
-
Architektonische Vielfalt
-
Ökologisch und nachhaltig bauen
-
Das perfekte Schlafzimmer
-
Nachhaltige Energieversorgung
-
Zukunftsorientiert bauen
-
Nachhaltigkeit beim Hausbau
-
Tiny Houses
-
Wärmepumpen als nachhaltige Heizvariante
-
Maßgeschneiderten Kleiderschrank
-
Der richtige Baukredit
-
Ratgeber für erfolgreichen Hausbau
-
Haus als Altersvorsorge
Do-it-yourself Anleitungen
-
Verlegeanleitung für Bodenbeläge und Parkett
-
Bodenbeläge und Parkett reinigen und pflegen
-
Malerarbeiten am Haus
-
Garten Tipps
-
Umzug und Reinigung
Navigation
Ratgeber
Über Uns
Login
Themen
Erfahrungen / Preise Hausbau-Firmen und Produkte
Hausanbieter Deutschlandweit
Hausanbieter Regional
Anbieter Baufinanzierung
Anbieter Küche
Anbieter Fenster & Türen
Anbieter Garagen, Carports, Garagentore
Anbieter Smarthome, Hausautomation
Anbieter Solaranlage, Photovoltaik, Wärmepumpe
Baufinanzierung
Liquiditätsplanung / Finanzplanung / Zinsen
Baukosten / Baunebenkosten / Baupreise
Bau-Förderung / KfW-Förderung / Zuschüsse Hausbau
Hausbau Planung
Grundrissplanung / Grundstücksplanung
Bauplanung
Baubeschreibung / Bauleistungsbeschreibung
Bauland / Baurecht / Baugenehmigung / Verträge
Kaufberatung / Substanzbewertung
Versicherungen beim Hausbau
Vermieter / Mieter
Rohbau
Architekt / Architektur
Bauleiter / Bauleitung
Statiker / Statik
Keller
Fundament / Bodenplatte
Maurer / Maler / Gipser
Innenausbau
Fenster / Türen
Elektrik / Elektroplanung
Holzbau / Schreiner
Do-it yourself / Umzug / Reinigung
Küchenplanung und Küchenbau
Einrichtung / Wohnen
Firmen und deren Arbeiten / Produkte
Erfahrungen mit Hausbau-Firmen
Baumaterialien / Werkzeuge / Produkte
Erneuerbare Energien
Solaranlagen
Photovoltaik
Wärmepumpen / Lüftungsanlagen
Haustechnik
Haustechnik / Ökologisches Bauen
Smarthome
Dach
Dämmung / Isolation
Heizung / Klima
Sanitär / Bad / WC
Aussenanlagen
Gartenbau / Gartengestaltung
Garage / Carport
Pools / Whirlpools / Tauchbecken
Bodenbeläge
Parkett
Laminat
Fliesen / Platten / Naturstein
Vinyl Boden
Estrich
Fussbodenheizung
Terrassenplatten - Terrassenböden
Weitere Bodenbeläge
IKEA
Ikea Kallax
Ikea Billy
Ikea Malm
Ikea Hemnes
Ikea Platsa
Ikea Brimnes
Ikea Metod
Ikea Allgemein
Ikea Smarthome & Beleuchtung
Ikea Montage / Aufbau
Ikea Küche / Küchenplanung
Ikea Pax / Kleiderschränke
Ikea Besta
Hausbau Forum Schweiz
Baufragen Allgemeines
Baufinanzierung Schweiz
Bauland / Baurecht / Baugenehmigung
Schweizer Normen / Versicherungen / Mietrecht
Mängel und Garantieleistung Schweiz
Frage stellen
Frage?
Login
Foren
Haustechnik
Dämmung / Isolation
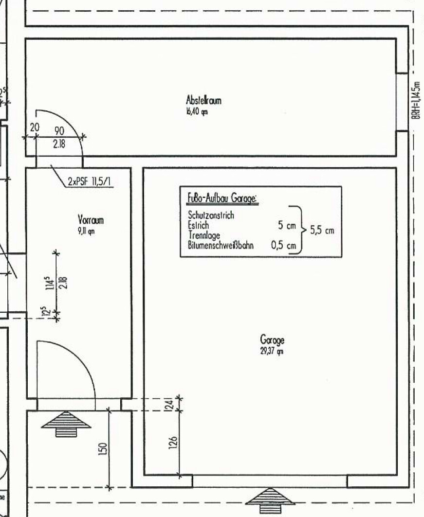
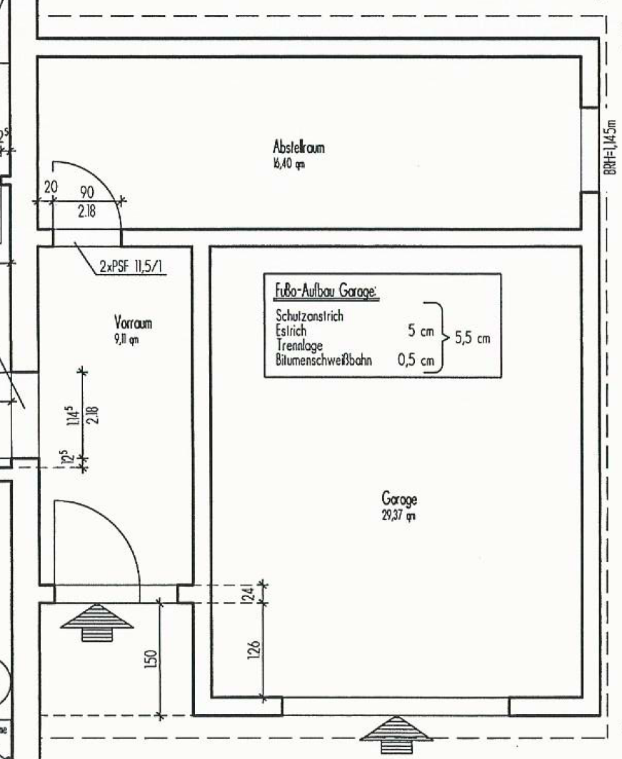
ᐅ Dachanbindung Garage an Wohnhaus
Erstellt am: 29.05.16 20:01
X
xyztestuser
X
xyztestuser
29.05.16 20:01
#1
Anzeige
Hallo xyztestuser,
schau mal hier:
Dachanbindung Garage an Wohnhaus
. Da wird jeder fündig!
1
Ähnliche Themen
Fertiggarage an Hauswand - Putz?
HUF Haus - Schwarze Balken weiss streichen - Erfahrungen?
Garagendach Wärmeisolieren - Dach ist mit Teerpappe abgedichtet
Bodenbelag für Dachterrasse festlegen Garten-Landschaftsbauer oder Dachdecker?
dünnen Bereich zwischen Hauswand und Podest beiputzen? Frost?
Grundstück auffüllen, Schutz der Hauswand
Feuchtigkeit Hauswand außen und Innen
Bankbürgschaft vom Dachdecker wegen Mängeln am Dach - Seite 2
Mit Fenstern warten bis Dachdecker fertig ist? - Seite 2
Dach plötzlich stark undicht, nach Dachdecker
Helle Up/Down-Lights für Hauswand gesucht
Befestigung Wandpfette Terrassendach an Hauswand
Reaktionen
Benachrichtigungen
Lädt...
Push - Mitteilung (Sofort)
E-Mail (Sofort)
E-Mail (Intervall)
Mehr Informationen
Abbrechen
Speichern
Push - Mitteilungen
Lädt...
Link erfolgreich kopiert!