ᐅ Bungalow geplant auf vorhandenem Keller: Ideen?
Erstellt am: 08.12.19 14:05
S
Seven198408.12.19 14:05Hallo zusammen,
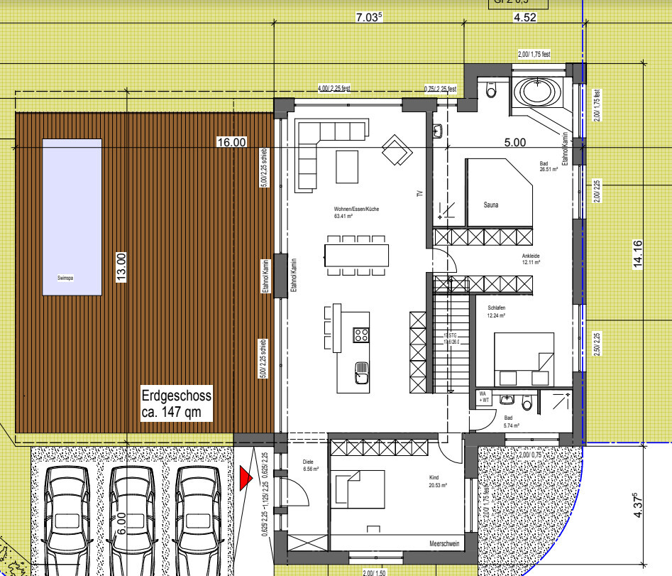
wir überlegen auf einem bestehenden Keller in einem Westhang zu bauen.
Treppe ist vorgegeben, drum rum haben wir einen Bungalow geplant.
Was fällt euch im Grundriss auf?
Danke schön für jeden Verbesserungstipp.
Rahmenbedingung:
Links ist Süden mit Straße/Wald. Rechts ist Norden/Wald Oben ist die Westseite mit Fernblick und der Eingang unten liegt im Osten.
Prämisse: Altersgerecht, Kinderzimmer wird später Büro. Büro wird im vorhandenen Keller geplant.
Schönen Dank!

wir überlegen auf einem bestehenden Keller in einem Westhang zu bauen.
Treppe ist vorgegeben, drum rum haben wir einen Bungalow geplant.
Was fällt euch im Grundriss auf?
Danke schön für jeden Verbesserungstipp.
Rahmenbedingung:
Links ist Süden mit Straße/Wald. Rechts ist Norden/Wald Oben ist die Westseite mit Fernblick und der Eingang unten liegt im Osten.
Prämisse: Altersgerecht, Kinderzimmer wird später Büro. Büro wird im vorhandenen Keller geplant.
Schönen Dank!
S
Seven198408.12.19 14:05Der Bereich auf dem der Whrilpool steht ist Unterkellert und soll Terrasse werden.
Ich hoffe, damit lässt sich alles aus unserem groben Plan ableiten
Ich hoffe, damit lässt sich alles aus unserem groben Plan ableiten
S
Seven198408.12.19 14:07Falls jemand die Örtlichkeiten sehen möchte zur Beurteilung:
Ich habe wg. dem Bestand ein anderen Thread eröffnet dort sieht man die Umgebung und die Gesamtsituation:
https://www.hausbau-forum.de/threads/rohbaukeller-Fundament-steht-10-Jahre.33055/
Ich habe wg. dem Bestand ein anderen Thread eröffnet dort sieht man die Umgebung und die Gesamtsituation:
https://www.hausbau-forum.de/threads/rohbaukeller-Fundament-steht-10-Jahre.33055/
S
Seven198408.12.19 14:10entschuldigt, die vielen Nachkommentare:
Maße Links sind 10,9 Rechts 12,5 entgegen der Notiz auf dem Zettel.
Freue mich auf euer Feedback
Maße Links sind 10,9 Rechts 12,5 entgegen der Notiz auf dem Zettel.
Freue mich auf euer Feedback
M
Miss_Jane08.12.19 14:17Wo soll das Kind Zähne putzen und Duschen?
S
Seven198408.12.19 14:20Stimmt, das fehlte in meinen Hinweisen: Im Gäste-WC wird ein separate Dusche und normales Waschbecken geplant..
Und wenn sie baden mag, darf sie das natürlich bei uns
Und wenn sie baden mag, darf sie das natürlich bei uns
Ähnliche Themen