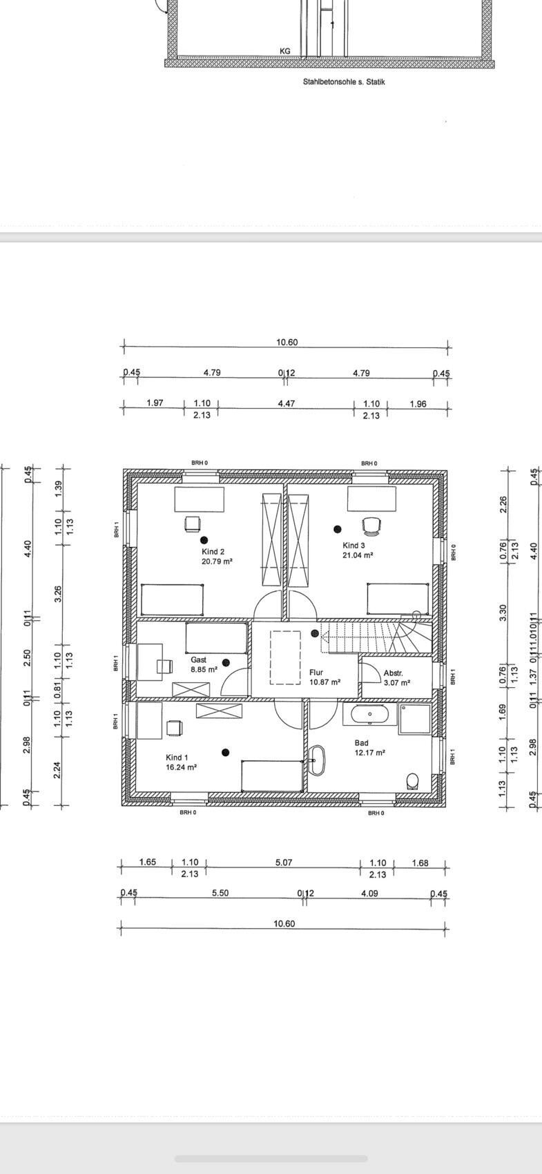
Y ypg 11 August 2018 Teilen #26 ypg schrieb: So Mädel, Schreib doch mal alles andere auf: den angepinnten Thread beachten! Es interessiert nicht das Alter des Architekten, sondern das, was ihr wollt und an Grundstück habt. Dann kann man auch Vorschläge machen . Zum Vergrößern anklicken.... kbt09 schrieb: @Tatjana44536 zum Grundriss ist genug gesagt. Wenn du Tipps haben willst, mach einen neuen Thread auf und gönne alle Infos, die lt. https://www.hausbau-forum.de/threads/grundrissplanung-unbedingt-vor-Beitrag-Erstellung-lesen.11714/ sinnvoll sind. Wichtig Lageplan und ein paar Worte von Dir. Sonst wirst du hier noch seitenweise lesen, wie schrecklich der Grundriss ist, was aber wohl jetzt schon klar ist. Zum Vergrößern anklicken....
ypg schrieb: So Mädel, Schreib doch mal alles andere auf: den angepinnten Thread beachten! Es interessiert nicht das Alter des Architekten, sondern das, was ihr wollt und an Grundstück habt. Dann kann man auch Vorschläge machen . Zum Vergrößern anklicken.... kbt09 schrieb: @Tatjana44536 zum Grundriss ist genug gesagt. Wenn du Tipps haben willst, mach einen neuen Thread auf und gönne alle Infos, die lt. https://www.hausbau-forum.de/threads/grundrissplanung-unbedingt-vor-Beitrag-Erstellung-lesen.11714/ sinnvoll sind. Wichtig Lageplan und ein paar Worte von Dir. Sonst wirst du hier noch seitenweise lesen, wie schrecklich der Grundriss ist, was aber wohl jetzt schon klar ist. Zum Vergrößern anklicken....