Würfel* schrieb:
Habe jetzt nicht alles im Detail gelesen, aber hast Du schon mal das Wohnzimmer möbliert? Das wird ganz schön eng und der Tisch steht gefühlt im Flur und so schepps vor dem Fenster.Acof1978 schrieb:
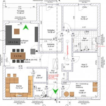
Danke für die Anregung. Wir haben das Zimmer bereits möbliert. Da wir zu dritt sind, wird der Tisch 1,60m - 1,80m und die Couch 2,4m x 1,80m ca. Haben alle unsere Möbeln die wir mitnehmen platziert. Hat alles sehr gut gepasst. Klar, wird nicht mega viel Platz sein, aber das wollten wir auch nicht, sonst hätten wir viel größer gebaut.
Unsere Einstellung ist: "Wir bauen für uns und nicht für andere" 🙂Jetzt bin ich ehrlich gesagt überrascht, dass es jetzt doch nicht "sehr gut passt". 😉 Mit meiner Skizze hatte ich schon damals versucht Dir das vor Augen zu führen. Zu deiner Frage: Ja, ich würde die Terrasse streichen und ins WZ integrieren. UND ich würde dem WZ - dann erst recht - planlinks noch mehr Fensterfläche gönnen. Tu Dir einen Gefallen und zeichne mal deine Möbel in das nun größere WZ ein und schau, wo du gegen die Wand schaust und ein Fenster vertragen könntest. Beim Esstisch sind Fenster immer was tolles.
Würfel* schrieb:

Jetzt bin ich ehrlich gesagt überrascht, dass es jetzt doch nicht "sehr gut passt". 😉 Mit meiner Skizze hatte ich schon damals versucht Dir das vor Augen zu führen. Zu deiner Frage: Ja, ich würde die Terrasse streichen und ins WZ integrieren. UND ich würde dem WZ - dann erst recht - planlinks noch mehr Fensterfläche gönnen. Tu Dir einen Gefallen und zeichne mal deine Möbel in das nun größere WZ ein und schau, wo du gegen die Wand schaust und ein Fenster vertragen könntest. Beim Esstisch sind Fenster immer was tolles.Möbeln passten, aber das der Kamin 1,64m breit ist hätten wir nicht gedacht :-)
Ob wir die Terrasse streichen hängt vom Energieeffizienz-Berater ab. Falls wir durch die Änderung kein KFW 55 Zuschuss bekommen, fällt das dann weg.
Mehr Fenster auf der linken Seite würden nur für noch mehr Hitze sorgen, da dort die Sonne vom Norden (17 Uhr) in den Süden (11 Uhr) wandert.
Wir schauen was der Energieeff-Berater sagt.
Noch kurze Erklärung wieso unsere Möbeln ohne Probleme passen.
a) wir nehmen eher ein 1,60m * 0,80m Tisch der ausziehbar ist, da wir in 95% der Fälle zu dritt essen.
b) Mit der Eckcouch ist genau das Gleiche. Max. 2,50m Länge, eher weniger.
Uns war klar, das es in der Konstellation kein großes WZ ist, aber es würde uns reichen. Wir schauen uns es heute nochmal genauer an und warten auf die Antwort des Beraters.
a) wir nehmen eher ein 1,60m * 0,80m Tisch der ausziehbar ist, da wir in 95% der Fälle zu dritt essen.
b) Mit der Eckcouch ist genau das Gleiche. Max. 2,50m Länge, eher weniger.
Uns war klar, das es in der Konstellation kein großes WZ ist, aber es würde uns reichen. Wir schauen uns es heute nochmal genauer an und warten auf die Antwort des Beraters.
Acof1978 schrieb:
a) wir nehmen eher ein 1,60m * 0,80m Tisch der ausziehbar ist, da wir in 95% der Fälle zu dritt essen.Hihi, wir essen in 95 % der Fälle nur zu zweit und haben einen 2,20 x 1,00 cm Tisch. Aber wir tafeln aber auch gerne mal richtig auf und haben den Platz für nen großen Tisch. :pWir haben außerdem sehr große Südfenster im WZ und die sind an heißen Tagen mit Raffstores verschattet. So bleibt es hell und trotzdem wirklich richtig kühl. Dafür freuen wir uns im Frühjahr, Herbst und Winter über wärmende Sonnenstrahlen. Nur so zum Nachdenken. Aber Abwarten was dein Energieberater sagt.
Acof1978 schrieb:
Falls wir durch die Änderung kein kfw 55 Zuschuss bekommen, fällt das dann weg.Ich würde eher meinen, dass Ihr ohne Terrasse energetisch besser dasteht, da ja das Fenster dann nicht mehr vom Dach verschattet wird und das doch (tlw.) die Südeseite ist, oder?Ich denke, eine komplett neue Baugenehmigung benötigt Ihr nicht, allerdings sehr wohl eine Tektur, da Ihr ja nicht nur ein Fenster verschieben wollt und sich dadurch Kubatur usw. ändern.
K1300S schrieb:
Ich würde eher meinen, dass Ihr ohne Terrasse energetisch besser dasteht, da ja das Fenster dann nicht mehr vom Dach verschattet wird und das doch (tlw.) die Südeseite ist, oder?
Ich denke, eine komplett neue Baugenehmigung benötigt Ihr nicht, allerdings sehr wohl eine Tektur, da Ihr ja nicht nur ein Fenster verschieben wollt und sich dadurch Kubatur usw. ändern.Die Frage war ob man noch was ändern kann. Antrag ist für 140 qm ca. Jetzt werden es 150 qm mit der Änderung.
Ähnliche Themen