Hallo zusammen,
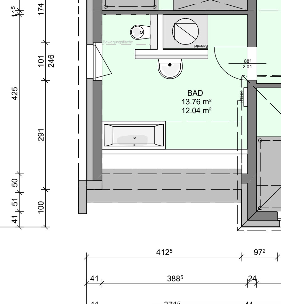
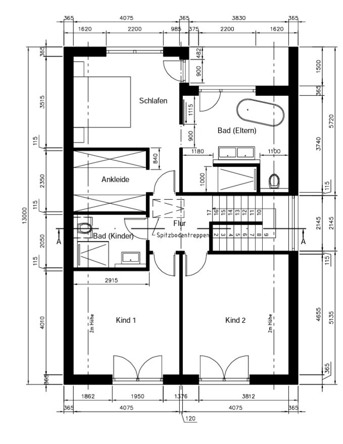
wir planen unser Einfamilienhaus und sind nun in der Feinplanung bezüglich unseres Bades im OG. Das Bad hat eine Dachschräge (Südseite). Wir wünschen uns eine offene Dusche ohne Tür und hätten gerne zwei waschbecken. Bei der Badewanne sind wir uns unsicher, ob eine freistehende Wanne bei der geringen Badgröße von ca. 13m2 gut aussieht. Anbei der offizielle Planungsstand sowie mein Nachbau in SweetHome 3D.
Habt Ihr Verbesserungsvorschläge bzw. Ideen bzgl. der Badewanne? Die Toilette hinter der Tür gefällt mir nicht 100%, meine bessere Hälfte möchte das aber gerne haben.


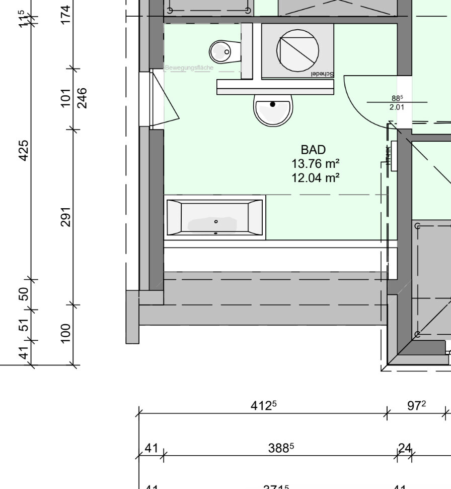
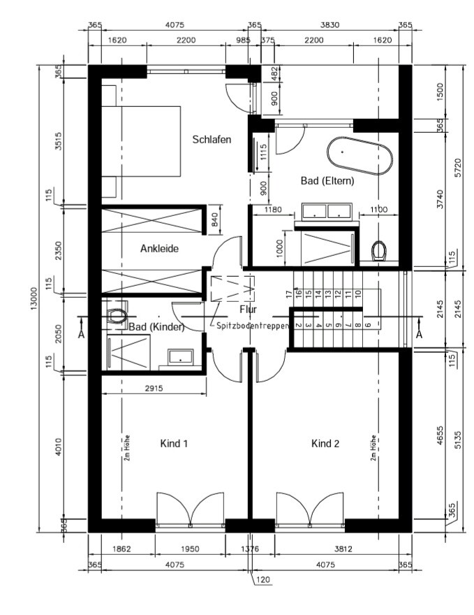
wir planen unser Einfamilienhaus und sind nun in der Feinplanung bezüglich unseres Bades im OG. Das Bad hat eine Dachschräge (Südseite). Wir wünschen uns eine offene Dusche ohne Tür und hätten gerne zwei waschbecken. Bei der Badewanne sind wir uns unsicher, ob eine freistehende Wanne bei der geringen Badgröße von ca. 13m2 gut aussieht. Anbei der offizielle Planungsstand sowie mein Nachbau in SweetHome 3D.
Habt Ihr Verbesserungsvorschläge bzw. Ideen bzgl. der Badewanne? Die Toilette hinter der Tür gefällt mir nicht 100%, meine bessere Hälfte möchte das aber gerne haben.
Ähnliche Themen