Badezimmer Grundriss Entscheidungshilfe

4,30 Stern(e) 3 Votes
Zuletzt aktualisiert 06.01.2026
Sie befinden sich auf der Seite 2 der Diskussion zum Thema: Badezimmer Grundriss Entscheidungshilfe
>> Zum 1. Beitrag <<

S

Sawdust

Natürlich auf keine der beiden. Bei einer Badplanung muss man nicht reparieren. Da plant man neu und zwar in einem Raum, nicht in zweien.
Natürlich geht es hier auch um eine Neuplanung, ich habe nie das Gegenteil gesagt. Ich habe lediglich nachgefragt, weil ich wissen wollte, wo du das L platzieren würdest. Das war für mich nicht eindeutig.

Hab als Alternative mal diese T-Lösung probiert. Was denkt ihr?


Modernes Badezimmer mit Doppelwaschbecken, Spiegel, Dusche, Ablage; Grundriss und 3D-Ansicht.
 
H

hanghaus2023

Ich würde erstmal nur die Grundrisse erstellen. Rendering nach dem diskutierten Entwurf. Sind die Eckfenster im Budget? Fenster sind nicht so einfach zu ändern. Das sollte man auch in den Ansichten berücksichtigen.
 
H

hanghaus2023

Ich habe noch keinen Grundriss vom EG gesehen. Warum macht man die Trennwand 25cm dick? Massive oder Trockenbau? 13 cm sind ausreichend für den Entwurf.
 
S

Sawdust

Ich würde erstmal nur die Grundrisse erstellen. Rendering nach dem diskutierten Entwurf. Sind die Eckfenster im Budget? Fenster sind nicht so einfach zu ändern. Das sollte man auch in den Ansichten berücksichtigen.
Ich zieh mir die Renderings einfach aus meinem Planungsprogrammraus. Hilft mir besser beim vorstellen.
Eckfenster haben wir tatsächlich auch auf der anderen Hausseite oben und unten. Fenster zu ändern ist nicht schlimm, da wir eh noch in der Planungsphase sind.


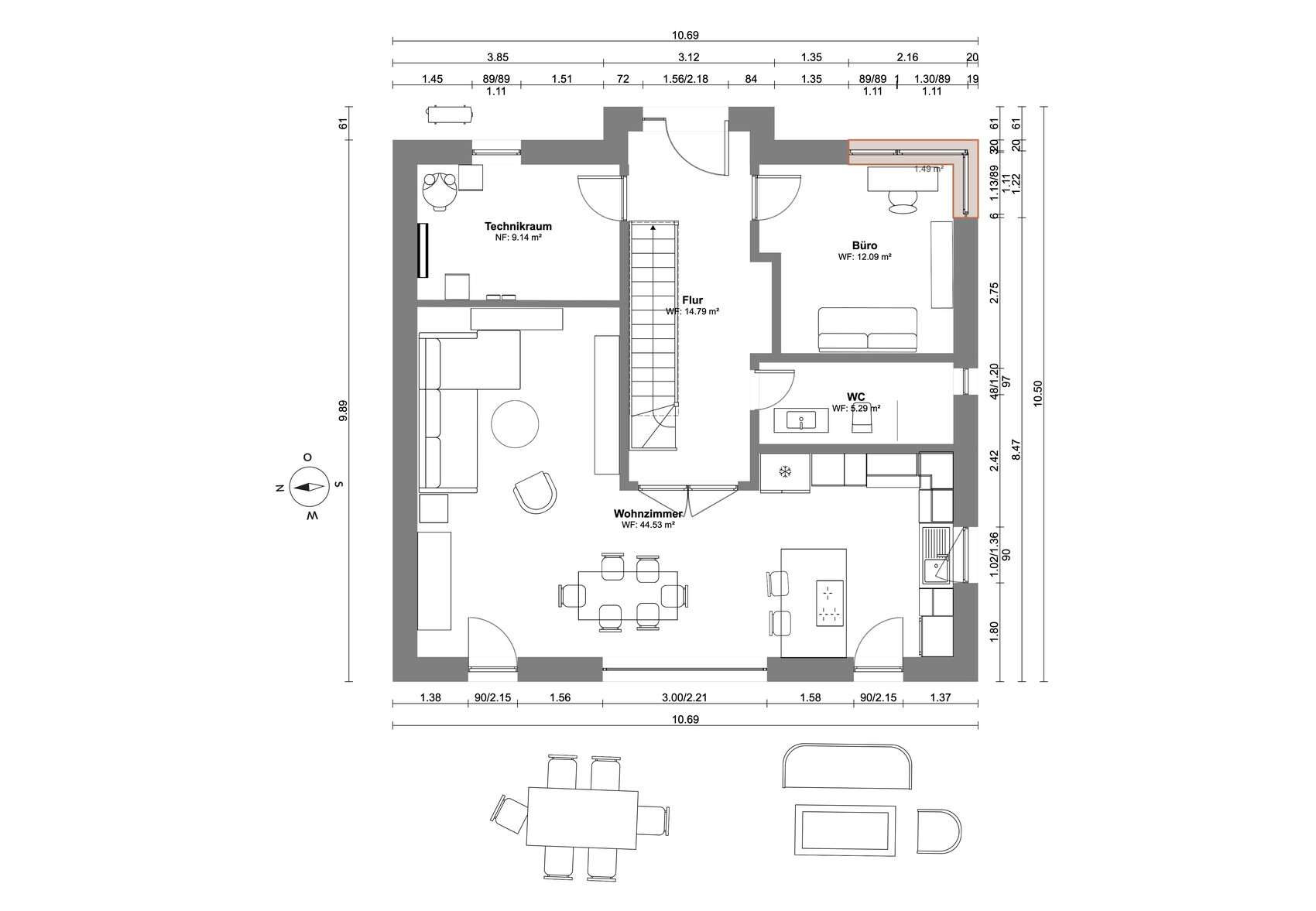
Ich habe noch keinen Grundriss vom EG gesehen. Warum macht man die Trennwand 25cm dick? Massive oder Trockenbau? 13 cm sind ausreichend für den Entwurf.
Ich häng dir den EG Grundriss mal an. Das mit der Trennwand ist eine super Info, hatte die nur erstmal sicherheitshalber so dick gemacht. Das Haus ist ein Massivhaus aber die Wänder werden ja wahrscheinlich mit Trockenbau gemacht.
Grundriss eines Hauses mit Wohnzimmer, Essbereich, Küche, Büro, Technikraum, Flur und WC.

Modernes, zweigeschossiges Haus bei Dämmerung, Außenbeleuchtung, Vorgarten mit Blumen, Auto.
 
H

hanghaus2023

Wie ist denn da die Sicht von außen? Rechts ist ein Haus also kann der Nachbar gut sehen, was da im Bad los ist. Gegenüber ist vermutlich auch ein Haus. Das Eckfenster ist dann wohl eher vom Tisch.

Die T Lösung ist bei dem grossen Bad mMn die bessere Idee.
 
Y

ypg

Hilft mir besser beim vorstellen.
Ok, . . Es ist aber für die Planung nicht hilfreich. Du verliebst Dich doch jedes Mal in ein Rendering und fühlst Dich bestätigt und die Planung gelungen.

Ich wollte hier, nachdem ich mich am Bad versucht habe, eigentlich schreiben, dass drei Fenster eins zu viel sind und schlecht für eine Badeinrichtung. Zudem wollte ich nachfragen, wo das Fallrohr hinkommt und sehe jetzt erst gerade die EG-Planung. Und ehrlich? Ist nicht so dolle.
Was ist Dir denn da zwischen Treppe und Trennwand zum Allraum passiert? Der Allraum ist dort, wo er am großzügigsten sein müsste, gerade mal knapp über 3 Meter breit. Da kommt keiner mehr zum TV, wenn der Tisch besetzt ist. Garderobe gibt es gerade mal eine kleine Nische für die Frauenschuhkommode. Mehr nicht. Und WC im Süden und nur ein Qm Südfenster im Allraum macht Dir von O bis O die Bude dunkel.

Ich hätte gedacht, dass es schon eine Finalplanung gibt und jetzt das Bad nur noch Probleme bereitet, aber das ist - ehrlich gesagt - für eine Feinplanung überhaupt noch nicht dran.
Da werden 180qm im DIY-Verfahren geplant, aber alles ist ein Kompromiss. Das Programm denkt nicht für Dich. Das Programm mag zwar schöne Renderings erzeugen, aber macht aus jmd, der eine Maus bedient, noch lange keinen Planer oder gar Architekten.
 
Zuletzt aktualisiert 06.01.2026
Im Forum Grundrissplanung / Grundstücksplanung gibt es 2565 Themen mit insgesamt 88757 Beiträgen


Ähnliche Themen zu Badezimmer Grundriss Entscheidungshilfe
Nr.ErgebnisBeiträge
1Grundriss erster Entwurf - Meinungen erwünscht 21
2Entwurf Grundriss Bungalow Meinungen 22
3Einfamilienhaus-Grundriss Entwurf - Seite 223
4Grundriss-Entwurf Stadtvilla mit Doppelgarage - Seite 238
5Entwurf Grundriss Einfamilienhaus (als Zweifamilienhaus im Alter möglich) in Hanglage - Seite 753
6Grundriss-Entwurf für Einfamilienhaus 135 qm - Ideen und Ratschläge gesucht 29
7Grundriss Entwurf Neubau Einfamilienhaus - Grundstück 610qm - Meinungen erwünscht - Seite 850
8Hausbau 2.0 - erster Grundriss-Entwurf 155
9Grundriss-Entwurf: Einfamilienhaus mit Keller; 560qm Grundstück - Seite 665
10Grundriss-Entwurf: Einfamilienhaus mit 4 Schlafzimmern und Büro, 160qm - Seite 1482
11Grundriss-Entwurf Einfamilienhaus in Hanglage, Einliegerwohnung, Doppelgarage - Seite 271
12Bitte schaut kritisch über unseren Grundriss-Entwurf 13
13Unser Grundriss-Entwurf für ein günstiges Haus - Seite 4348
14Unser Grundriss-Entwurf, eure Meinungen 20
15Grundriss-Planung, 2 Vollgeschosse, ca. 130-140 qm ohne Keller - Seite 27192
16Grundriss Einfamilienhaus Stadtvilla ca. 240m² ohne Keller - Seite 10132
17Grundriss Bungalow mit 140 qm - passt der Stauraum? - Seite 7175
18Bungalow Grundriss ~16x9.5m ( außen ) in 1000m² mit Altbestand - Seite 9102
19Grundriss Einfamilienhaus ca. 190qm - bitte um Kritik 12
201. Entwurf Grundriss Einfamilienhaus 150 qm - Seite 450

Oben