ᐅ Anzahl der nötigen Spots (Halox) und welche?
Erstellt am: 18.03.20 14:31
Hallo zusammen,
wir bräuchten mal Hilfe bei der Planung der entsprechenden Spots für unser EG.
Sind uns nicht ganz einig, wie viele denn nötig wären und wie angeordnet sein müssen, um "vernünftige" Lichtverhältnisse zu haben. Weder zu hell noch zu dunkel.
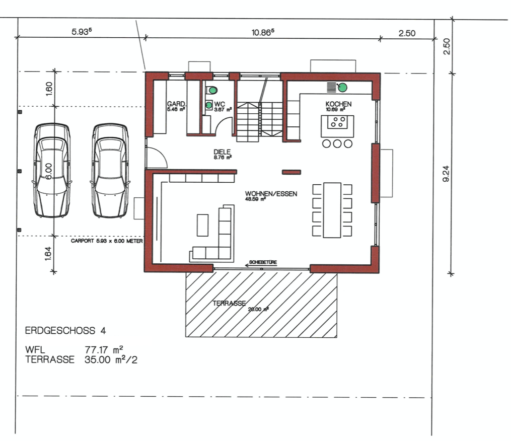
Das gesamte EG soll mit Spots versehen werden, keine hängende Leuchte oder ähnliches, also keine weitere Lampen.
Wir bekommen nur die Halox Gehäuse in die Decke rein, das Leuchtmittel etc. müssen wir selbst "kaufen". Einen Vorschlag dazu haben wir bis jetzt noch nicht vorliegen. Da wäre ich für Tipps ggf. auch dankbar.

wir bräuchten mal Hilfe bei der Planung der entsprechenden Spots für unser EG.
Sind uns nicht ganz einig, wie viele denn nötig wären und wie angeordnet sein müssen, um "vernünftige" Lichtverhältnisse zu haben. Weder zu hell noch zu dunkel.
Das gesamte EG soll mit Spots versehen werden, keine hängende Leuchte oder ähnliches, also keine weitere Lampen.
Wir bekommen nur die Halox Gehäuse in die Decke rein, das Leuchtmittel etc. müssen wir selbst "kaufen". Einen Vorschlag dazu haben wir bis jetzt noch nicht vorliegen. Da wäre ich für Tipps ggf. auch dankbar.
A
Alessandro18.03.20 14:42Wenn ihr ausschließlich mit Einbauspots arbeitet, würde ich zum Lichtplaner gehen. Der kann das Simulieren. Kostet ca. 500-700 Euor, je nach Größe des Objekts. Du ärgerst dich dumm und dämlich wenn du hier etwas vergisst oder die Decke am Ende aussieht als hätte da jemand mit der MG reingeschossen.
Achtet darauf dass der Elektriker auf keinen Fall die Löcher der Halox-Töpfe größer als DM=7cm ausschneidet. Ansonsten seid ihr mit der Auswahl der Spots sehr eingeschränkt.
Achtet darauf dass der Elektriker auf keinen Fall die Löcher der Halox-Töpfe größer als DM=7cm ausschneidet. Ansonsten seid ihr mit der Auswahl der Spots sehr eingeschränkt.
Wichtig ist, dass ihr im Voraus festlegt, welche Einbaustrahler - vermutlich übrigens keine Spots sondern welche für flächige Ausleuchtung - Ihr verwenden wollt, denn daran bemisst sich, wo und wie viele Einbaudosen Ihr vorsehen solltet. Wenn Ihr die einfachen Einbaurahmen mit GU10 Leuchtmittel nehmt, sind es tendenziell (deutlich) mehr als bei hochwertigen Modellen, da Letztere einfach mehr Power haben.
Nur mal als Anhaltspunkt: Wir haben - bei einer ähnlichen Fläche für Wohnen/Essen - vier über dem Esstisch und vier über dem Sofa/Couchtisch, die dann jeweils in Gruppen von zwei Strahlern geschaltet werden können. Bei niedrigster Dimmstufe hat man eine angenehme Grundausleuchtung, bei voller Power ist es gleißend hell. Ich würde vermutlich noch drei im Flur und je einen in der Garderobe und im WC vorsehen. Für die Küche haben wir keine Einbaustrahler genommen, damit die Lichtquelle tiefer sitzt und außerdem besser ausgerichtet werden kann. Sind allerdings auch insgesamt acht Leuchten plus Unterbauleuchten an den Hängeschränken.
Wenn Ihr allerdings überhaupt keinen Plan habt und auch keine Lust, Euch wenigstens ein bisschen in die Materie (Lichtstrom, Helligkeit, Abtrahlwinkel, Deckenhöhe, visuelle Planung, ...) einzuarbeiten, dürfte der Gang zum Lichtplaner sinnvoll sein.
LG
K1300S
Nur mal als Anhaltspunkt: Wir haben - bei einer ähnlichen Fläche für Wohnen/Essen - vier über dem Esstisch und vier über dem Sofa/Couchtisch, die dann jeweils in Gruppen von zwei Strahlern geschaltet werden können. Bei niedrigster Dimmstufe hat man eine angenehme Grundausleuchtung, bei voller Power ist es gleißend hell. Ich würde vermutlich noch drei im Flur und je einen in der Garderobe und im WC vorsehen. Für die Küche haben wir keine Einbaustrahler genommen, damit die Lichtquelle tiefer sitzt und außerdem besser ausgerichtet werden kann. Sind allerdings auch insgesamt acht Leuchten plus Unterbauleuchten an den Hängeschränken.
Wenn Ihr allerdings überhaupt keinen Plan habt und auch keine Lust, Euch wenigstens ein bisschen in die Materie (Lichtstrom, Helligkeit, Abtrahlwinkel, Deckenhöhe, visuelle Planung, ...) einzuarbeiten, dürfte der Gang zum Lichtplaner sinnvoll sein.
LG
K1300S
ms-t-89 schrieb:
Wir bekommen nur die Halox Gehäuse in die Decke rein, das Leuchtmittel etc. müssen wir selbst "kaufen".Hallo MS-t-89bekommt ihr eine Fertigdecke oder Ortbeton?
Für größere Zimmer, wie Wohnzimmer, würde ich immer die Beleuchtung auf 3 Schalter verteilen.
Sagen wir jeweils 6 Stück auf die längere Seite. Dann hast du insgesamt 12 Stück. Jeweils noch 2 auf die schmale Seite. 16 Stück. Die schaltest du ein über die andere. In die Mitte noch eine Reihe, die wird extra geschaltet.
Ich habe bei mir noch 3 vor dem Fenster, wiederum über einen extra Schalter. Die sind mit 3 Watt etwas bläuliches Licht bestückt. Ist beim Fernsehen angenehm.
man kann da unendlich variieren.
Steven
A
Alessandro19.03.20 08:26die Frage die sich mir stellt ist, ob du eine Grundbeleuchtung haben willst wie bei normalen Deckenlampen und/oder eine Akzentbeleuchtung die man üblicherweise 20-30cm vor der Wand installiert.
Jetzt wird hoffentlich gleich klar, wie wichtig die Festlegung der Leuchten ist. Wenn ich bei Steven richtig gerechnet habe, sind das 21 Strahler für den Wohn-/Essbereich. Das wäre bei unserem Modell schlicht Overkill - und zwar massiv.
Noch ein Punkt: Deckeneinbaustrahler sind vermutlich nur für die Grundbeleuchtung vorgesehen. Dies wird dann noch durch Akzentbeleuchtung (Stehlampe, Wandlampe, ...) ergänzt. Bedenkt das bei Eurer Planung.
Noch ein Punkt: Deckeneinbaustrahler sind vermutlich nur für die Grundbeleuchtung vorgesehen. Dies wird dann noch durch Akzentbeleuchtung (Stehlampe, Wandlampe, ...) ergänzt. Bedenkt das bei Eurer Planung.
Ähnliche Themen