G
Gianni00710.07.19 09:47Liebes Forum!
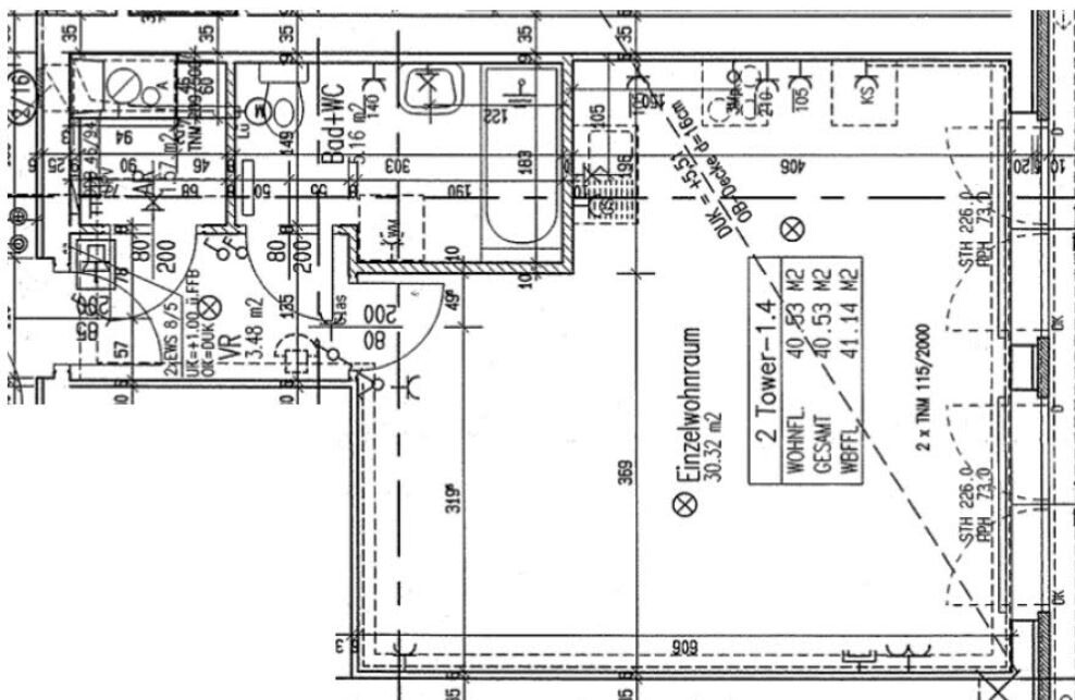
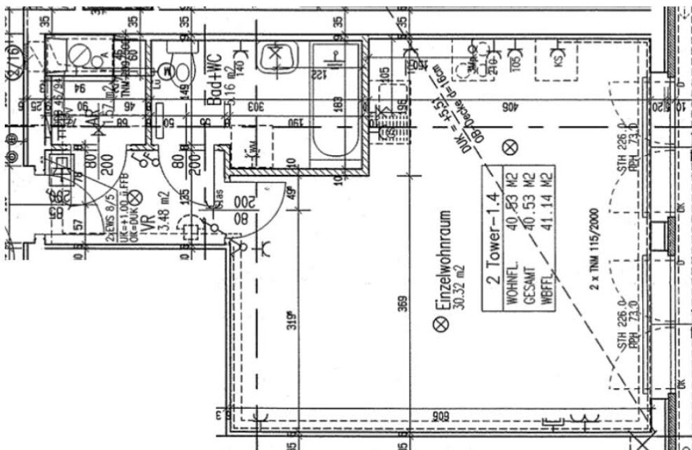
Ich überlege die Wohnung meines Vaters in zwei Wohneinheiten zu teilen. Das Ziel soll es sein, einen Teil quasi selbst frei zur Verfügung zu haben und den anderen Teil zu vermieten (bspw. an einen Studenten, Airbnb, etc.). Idealerweise sollten beide Einheiten jeweils ein Bad inkl. WC und eine kleine Küchenzeile beinhalten. Mir ist klar, dass dieser Vorgang beträchtliche Baumaßnahmen mit sich bringen wird, zumal der Grundriss (siehe Anhang) wohl nicht optimal dafür ist. In erster Linie geht es mir jedoch einfach darum herauszufinden ob die Trennung baulich/sanitär überhaupt möglich ist und wenn ja wie.
Würde mich freuen, wenn ihr mir Feedback gibt, bin offen für jede Idee!
Vielen Dank und liebe Grüße aus Wien!

Ich überlege die Wohnung meines Vaters in zwei Wohneinheiten zu teilen. Das Ziel soll es sein, einen Teil quasi selbst frei zur Verfügung zu haben und den anderen Teil zu vermieten (bspw. an einen Studenten, Airbnb, etc.). Idealerweise sollten beide Einheiten jeweils ein Bad inkl. WC und eine kleine Küchenzeile beinhalten. Mir ist klar, dass dieser Vorgang beträchtliche Baumaßnahmen mit sich bringen wird, zumal der Grundriss (siehe Anhang) wohl nicht optimal dafür ist. In erster Linie geht es mir jedoch einfach darum herauszufinden ob die Trennung baulich/sanitär überhaupt möglich ist und wenn ja wie.
Würde mich freuen, wenn ihr mir Feedback gibt, bin offen für jede Idee!
Vielen Dank und liebe Grüße aus Wien!
Bevor ich mir über bauliches den Kopf zerbreche, würde ich erst mal klären, ob es rechtlich überhaupt zulässig ist. Da könnte einerseits die Hausverwaltung ein gewaltiges Wörtchen mitreden wollen, andererseits das Bauamt einen weiteren Stellplatz fordern.
In D müsstest du meines Wissens übrigens für eine eigene Wohneinheit eine Küche und Abstellraum einplanen (zumindest von Platz her). Am ehesten würde ich zwei Zimmer im Allraum sehen, so dass man eine WG machen könnte, aber für zwei eigene Wohneinheiten halte ich es für utopisch (ganz an davon, dass ich von Gewinnmaximierung über AirBnB gar nichts halte und mW immer mehr Städte gegen diese Zweckentfremdung vorgehen)
In D müsstest du meines Wissens übrigens für eine eigene Wohneinheit eine Küche und Abstellraum einplanen (zumindest von Platz her). Am ehesten würde ich zwei Zimmer im Allraum sehen, so dass man eine WG machen könnte, aber für zwei eigene Wohneinheiten halte ich es für utopisch (ganz an davon, dass ich von Gewinnmaximierung über AirBnB gar nichts halte und mW immer mehr Städte gegen diese Zweckentfremdung vorgehen)
G
Gianni00710.07.19 10:52Grundsätzlich hätte ich geplant, dass man weiterhin eine Eingangstür hat und über den Vorraum zu den zwei Wohneinheiten gelangt - also quasi ne WG die jeweils Bad und Küchenzeile beinhaltet.
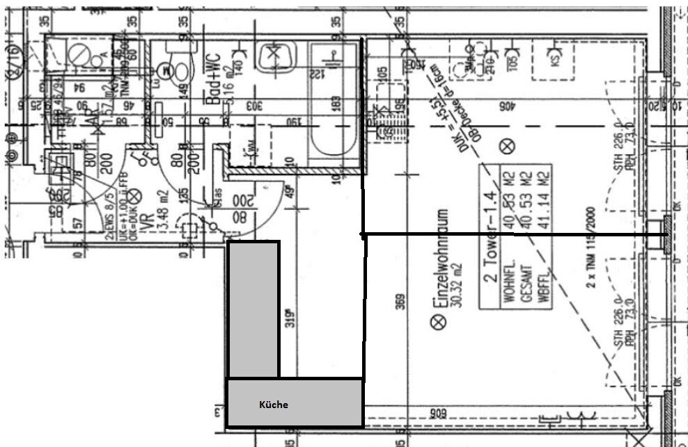
Den Vorschlag einer Zwei-Zimmer WG mit gemeinsamen Bad und Küche finde ich auch super! Wie würdest du die zwei Zimmer denn anordnen?
Den Vorschlag einer Zwei-Zimmer WG mit gemeinsamen Bad und Küche finde ich auch super! Wie würdest du die zwei Zimmer denn anordnen?
Naja, viel Auswahl hast du doch nicht, was die Anordnung der Zimmer angeht, sollen ja beide ein Fenster haben.
Küche kann natürlich nur verlegt werden, wenn Wasser und Abwasser verzogen werden könnten. Ist weniger problematisch als ein WC zu verlegen, aber mitunter trotzdem schwierig.
Zwei eigenständige Wohneinheiten sind - mit Verlaub- eine bescheidene Idee.

Küche kann natürlich nur verlegt werden, wenn Wasser und Abwasser verzogen werden könnten. Ist weniger problematisch als ein WC zu verlegen, aber mitunter trotzdem schwierig.
Zwei eigenständige Wohneinheiten sind - mit Verlaub- eine bescheidene Idee.
G
Gianni00712.07.19 08:28Tamstar schrieb:
Naja, viel Auswahl hast du doch nicht, was die Anordnung der Zimmer angeht, sollen ja beide ein Fenster haben.
Küche kann natürlich nur verlegt werden, wenn Wasser und Abwasser verzogen werden könnten. Ist weniger problematisch als ein WC zu verlegen, aber mitunter trotzdem schwierig.
Zwei eigenständige Wohneinheiten sind - mit Verlaub- eine bescheidene Idee.Vielen Dank für die Zeichnung. Diese Idee hatte ich auch. Was ist denn die Voraussetzung, um Wasser und Abwasserleitungen zu verlegen? Bzw. woran kann es hacken?
Ähnliche Themen