Obermuh schrieb:
Die Garage muss da auch noch irgendwie vor.Die Garage ist Nebensache und kriegt den Platz, der übrig bleibt.https://www.instagram.com/11antgmxde/
https://www.linkedin.com/company/bauen-jetzt/
Um hier noch mal ein Update zu geben:
das Haus ist, bis auf Kleinigkeiten wie Fußleisten und einzelnen Armaturen, fertig und die Außenanlagen sind in Arbeit. Abnahme ist für Ende Dezember geplant (auch wegen der MwSt. 😉 ).
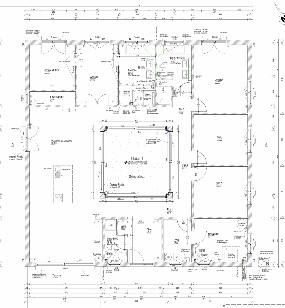
Der Grundriss ist beim Atriumhaus geblieben und hat nur ein paar Detailveränderungen bekommen. Abweichend zum Plan haben wir im Rohbau WC/Dusche im Elternbad auch noch mal verändert.

Ein paar Impressionen:









das Haus ist, bis auf Kleinigkeiten wie Fußleisten und einzelnen Armaturen, fertig und die Außenanlagen sind in Arbeit. Abnahme ist für Ende Dezember geplant (auch wegen der MwSt. 😉 ).
Der Grundriss ist beim Atriumhaus geblieben und hat nur ein paar Detailveränderungen bekommen. Abweichend zum Plan haben wir im Rohbau WC/Dusche im Elternbad auch noch mal verändert.
Ein paar Impressionen:
Integrierte Skatebahn. Nicht nur die 11 m wie bei uns von Tür zu Tür.
Danke für die Bilder. Einiges was mich am Anfang gestört hat, stört mich immer noch.
Trotzdem ist es mal ein ganz anderes Projekt. Sieht alles Stimmig aus
Bin mal gespannt wie sich das Atrium verhält. Stauwärme, Licht etc
Danke für die Bilder. Einiges was mich am Anfang gestört hat, stört mich immer noch.
Trotzdem ist es mal ein ganz anderes Projekt. Sieht alles Stimmig aus
Bin mal gespannt wie sich das Atrium verhält. Stauwärme, Licht etc
Ähnliche Themen