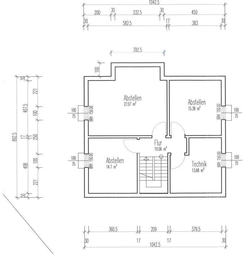
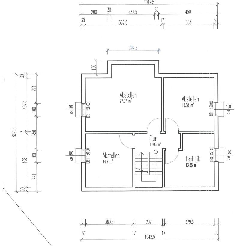
ᐅ 12cm Absatz von Flur in die Kellerräume
Erstellt am: 12.02.24 12:01
Hallo,
nach Aussagen von unserem Hausbauer wird es vom Flur in die Kellerräume einen Absatz von 12cm geben, da in den Kellerräumen nur Estrich ohne Dämmung (4cm hoch) verlegt wird. Die Kellerräume sind nicht in der thermischen Hülle, der Flur jedoch schon.
Er bietet uns an auch in den Kellerräumen Fußbodendämmung zu verlegen, um auf die gleiche Höhe von 16cm zu kommen. Das ganze soll 4090€ zusätzlich kosten.
Ist das gerechtfertigt und gibt es möglichweise noch einen sinnvolleren Weg diesen Absatz zu umgehen?
"Verlegung der Dämmung ohne Fußbodenheizung auf Bodenplatte im KG, Gesamt-Fußbodenaufbau 160 mm, bestehend aus:
Verbundplatte Kompakt EPS-DEO 032 in 30 mm
Wärmedämmung EPS 035 in 60 mm
Randdämmstreifen
Liefern und montieren"

nach Aussagen von unserem Hausbauer wird es vom Flur in die Kellerräume einen Absatz von 12cm geben, da in den Kellerräumen nur Estrich ohne Dämmung (4cm hoch) verlegt wird. Die Kellerräume sind nicht in der thermischen Hülle, der Flur jedoch schon.
Er bietet uns an auch in den Kellerräumen Fußbodendämmung zu verlegen, um auf die gleiche Höhe von 16cm zu kommen. Das ganze soll 4090€ zusätzlich kosten.
Ist das gerechtfertigt und gibt es möglichweise noch einen sinnvolleren Weg diesen Absatz zu umgehen?
"Verlegung der Dämmung ohne Fußbodenheizung auf Bodenplatte im KG, Gesamt-Fußbodenaufbau 160 mm, bestehend aus:
Verbundplatte Kompakt EPS-DEO 032 in 30 mm
Wärmedämmung EPS 035 in 60 mm
Randdämmstreifen
Liefern und montieren"
J
jens.knoedel12.02.24 12:12Hissi schrieb:
Er bietet uns an auch in den Kellerräumen Fußbodendämmung zu verlegen, um auf die gleiche Höhe von 16cm zu kommen. Das ganze soll 4090€ zusätzlich kosten.Hissi schrieb:
noch einen sinnvolleren Weg diesen Absatz zu umgehen?Geht in den Baumarkt und holt Euch die Dämmung selber (wobei ich mich frage, warum eine 32er dabei sein muss - aber egal). Damit spart Ihr locker 3.000€ ein.T
Tolentino12.02.24 13:25Mit Fußbodenheizung, vielleicht gerade so normaler GU-Preis.
Ohne Fußbodenheizung ist das eine Unverschämtheit für die du vor 200 Jahren den zum Duell hättest fordern können. Das ist unglaublich dreist. Mach es wie Jens sagt.
Ohne Fußbodenheizung ist das eine Unverschämtheit für die du vor 200 Jahren den zum Duell hättest fordern können. Das ist unglaublich dreist. Mach es wie Jens sagt.
Hissi schrieb:
nach Aussagen von unserem Hausbauer wird es vom Flur in die Kellerräume einen Absatz von 12cm geben, da in den Kellerräumen nur Estrich ohne Dämmung (4cm hoch) verlegt wird. Die Kellerräume sind nicht in der thermischen Hülle, der Flur jedoch schon.
[...] Ist das gerechtfertigt und gibt es möglichweise noch einen sinnvolleren Weg diesen Absatz zu umgehen?Auch wenn Du leider keinen Schnitt gezeigt hast und die Frage wohl auf den Aufpreis beziehst, klingt es in meinen Augen doch vor allem höchst fragwürdig. Wenn Du den (vermutlichen) Schwachsinn so geschehen lassen willst, würde ich hier schlicht keilförmig angerampt überblenden.https://www.instagram.com/11antgmxde/
https://www.linkedin.com/company/bauen-jetzt/
Ein Schnitt der Kellerflursohle habe ich angehängt.
Das Legen der EPS Platten in den Kellerräumen würde ich auch gerne selbst machen. Ist ja auch kein Hexenwerk.
Nur ist das leider logistisch nicht machbar, da der Estrichleger die Kaltschweißbahn verlegt und dann direkt den Estrich.
Generell halte ich den Kellerbodenaufbau für fraglich. Die im Schnitt gezeigte Perimeterdämmung ist bereits weggefallen, da im Gebäudeenergiegesetz-Nachweis der Keller fälschlicherweise als Wohnkeller und nicht als Nutzkeller berechnet wurde.
Der Kellerflur soll aber weiterhin die beiden EPS Platten bekommen, da er angeblich in der thermischen Hülle sei, die Kellerräume jedoch nicht. Dadurch kommt es dann zu einem Absatz von 12cm in die Kellerräume.

Das Legen der EPS Platten in den Kellerräumen würde ich auch gerne selbst machen. Ist ja auch kein Hexenwerk.
Nur ist das leider logistisch nicht machbar, da der Estrichleger die Kaltschweißbahn verlegt und dann direkt den Estrich.
Generell halte ich den Kellerbodenaufbau für fraglich. Die im Schnitt gezeigte Perimeterdämmung ist bereits weggefallen, da im Gebäudeenergiegesetz-Nachweis der Keller fälschlicherweise als Wohnkeller und nicht als Nutzkeller berechnet wurde.
Der Kellerflur soll aber weiterhin die beiden EPS Platten bekommen, da er angeblich in der thermischen Hülle sei, die Kellerräume jedoch nicht. Dadurch kommt es dann zu einem Absatz von 12cm in die Kellerräume.
Ähnliche Themen