ᐅ Beleuchtung in der Garage inkl. Werkstattteil
Erstellt am: 06.02.19 16:49
Hallo zusammen,
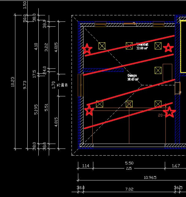
ich habe hier mal den Ausschnitt der Garage inkl. Werkstattteil angehangen.
Als Beleuchtung waren eigentlich die 7 eingezeichneten großen gelben Rechtecke geplant. Es sollten LED-Panels werden. Evtl. 40x40cm, aber auf die größe hatte ich mich noch nicht festgelegt.
Nun habe ich mal das Garagentor und die Dachbodenluke in orange eingezeichnet. Beim Garagentor steht noch die 20 weil das Garagentor wenn es geöffnet ist nur bis zur ersten orangenen Linie geht und 20 cm weiter kommt dann der Profilrahmen von den Führungsschienen. Genau unter dem mittigen Panel liegt der Motor. Zumindest diese mittige Lampe macht nun keinen Sinn mehr. Ich bin nun am Grübeln ob ich diese einfach weg lasse und den Rest wie geplant umsetzte oder ob ich es nun ganz anders mache.
Mir ist beispielsweise aufgefallen, dass ich evtl. im Werkstattbereich wo die Werkbank hin kommen soll (planoben links vor das Fenster) vielleicht mehr Licht gebrauchen könnte.
Der Raum soll im Winter evtl. auch für eine Geburtstagsfeier genutzt werden können, also sollte es nicht nur ein bisschen Funzellicht sein.
Wie habt ihr das gelöst?
ich habe hier mal den Ausschnitt der Garage inkl. Werkstattteil angehangen.
Als Beleuchtung waren eigentlich die 7 eingezeichneten großen gelben Rechtecke geplant. Es sollten LED-Panels werden. Evtl. 40x40cm, aber auf die größe hatte ich mich noch nicht festgelegt.
Nun habe ich mal das Garagentor und die Dachbodenluke in orange eingezeichnet. Beim Garagentor steht noch die 20 weil das Garagentor wenn es geöffnet ist nur bis zur ersten orangenen Linie geht und 20 cm weiter kommt dann der Profilrahmen von den Führungsschienen. Genau unter dem mittigen Panel liegt der Motor. Zumindest diese mittige Lampe macht nun keinen Sinn mehr. Ich bin nun am Grübeln ob ich diese einfach weg lasse und den Rest wie geplant umsetzte oder ob ich es nun ganz anders mache.
Mir ist beispielsweise aufgefallen, dass ich evtl. im Werkstattbereich wo die Werkbank hin kommen soll (planoben links vor das Fenster) vielleicht mehr Licht gebrauchen könnte.
Der Raum soll im Winter evtl. auch für eine Geburtstagsfeier genutzt werden können, also sollte es nicht nur ein bisschen Funzellicht sein.
Wie habt ihr das gelöst?
Ich würde wohl plan-links und -rechts jeweils 2 LED-Röhren in Deckennähe an die Wand setzen und ggf. im Werkstattteil noch ne Schreibtischlampe für Nahbereichsbeleuchtung vorsehen.
Sollte ne niedrige Garage wohl besser ausleuchten, als die Panels von oben und insgesamt auch mehr als ausreichen - das ist ne Garage, kein OP-Saal.
Wegen etwaiger Feierlichtkeiten jeweils ne Steckdose neben die LED-Röhren, dann kann man dort Lichterketten anschließen - die finde ich für ne (Geburtstags-)Feier sehr viel angebrachter. Paar Kerzen auf den Tischen dazu, alles tutti ;-)

Sollte ne niedrige Garage wohl besser ausleuchten, als die Panels von oben und insgesamt auch mehr als ausreichen - das ist ne Garage, kein OP-Saal.
Wegen etwaiger Feierlichtkeiten jeweils ne Steckdose neben die LED-Röhren, dann kann man dort Lichterketten anschließen - die finde ich für ne (Geburtstags-)Feier sehr viel angebrachter. Paar Kerzen auf den Tischen dazu, alles tutti ;-)
K
kkk27272907.02.19 06:59Also meine Garage ist ca 7 x 6 und ich habe dort 6 mal Doppel-Led-Röhren verbaut. Das ist sehr hell. Würde ich empfehlen.
kkk272729 schrieb:
Also meine Garage ist ca 7 x 6 und ich habe dort 6 mal Doppel-Led-Röhren verbaut. Das ist sehr hell. Würde ich empfehlen.Und wie hast du die angeordnet?
Hast du den Bereich, wo das Garagentor im offenen Zustand ist, ausgespart?
Ähnliche Themen