desixtor
27/06/2019 11:48:25
- #1
नमस्ते सभी को,
हमने अपनी ज़मीन पर एक घर का प्लान बनवाया है।
इस योजना के बारे में आपकी सामान्य राय क्या है?
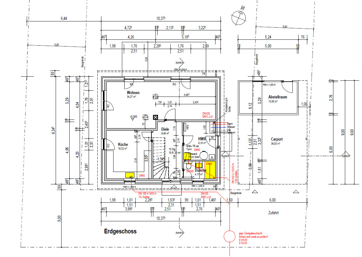
बेबाउंग्सप्लान/सीमाएं
ज़मीन का आकार 950 वर्ग मीटर
ग्राउंड फ्लोर एरिया अनुपात 0.16
निर्माण सीमा - ज़मीन की सीमा: 5 मीटर
अधिकतम ऊंचाई/सीमाएँ ट्रॉफ ऊंचाई 3.5 मीटर, फर्स्ट ऊंचाई 10 मीटर
निर्माताओं की आवश्यकताएँ
शैली, छत का प्रकार, भवन प्रकार: एकल परिवार का घर, सैटल छत
तहखाना, मंजिलें: नहीं, 1.5
लोगों की संख्या, आयु: 2, लगभग 30
भोजन करने वालों की संख्या: 2-4
चिमनी: हाँ
गैराज, कारपोर्ट: डबल कारपोर्ट
घर की डिज़ाइन
योजना किसकी है: GU के पहले बनाए घर का संशोधन
निर्माण: -आर्किटेक्ट
क्या विशेष रूप से पसंद आया? क्यों?
क्या पसंद नहीं आया? क्यों?
आर्किटेक्ट/प्लानर के अनुसार कीमत का अनुमान: 240000 (अतिरिक्त खर्च, ज़मीन को छोड़कर)
घर की व्यक्तिगत मूल्य सीमा, साज-सज्जा सहित: 250000 (अतिरिक्त खर्च, ज़मीन को छोड़कर)
पसंदीदा हीटिंग तकनीक: गैस
यह डिज़ाइन इस प्रकार क्यों बनी है?
कोना ज़मीन -> गार्डन की दृश्यमानता सीमित करने के लिए
पश्चिमी छत, L आकार में, घर के आसपास उत्तर की ओर

हमने अपनी ज़मीन पर एक घर का प्लान बनवाया है।
इस योजना के बारे में आपकी सामान्य राय क्या है?
बेबाउंग्सप्लान/सीमाएं
ज़मीन का आकार 950 वर्ग मीटर
ग्राउंड फ्लोर एरिया अनुपात 0.16
निर्माण सीमा - ज़मीन की सीमा: 5 मीटर
अधिकतम ऊंचाई/सीमाएँ ट्रॉफ ऊंचाई 3.5 मीटर, फर्स्ट ऊंचाई 10 मीटर
निर्माताओं की आवश्यकताएँ
शैली, छत का प्रकार, भवन प्रकार: एकल परिवार का घर, सैटल छत
तहखाना, मंजिलें: नहीं, 1.5
लोगों की संख्या, आयु: 2, लगभग 30
भोजन करने वालों की संख्या: 2-4
चिमनी: हाँ
गैराज, कारपोर्ट: डबल कारपोर्ट
घर की डिज़ाइन
योजना किसकी है: GU के पहले बनाए घर का संशोधन
निर्माण: -आर्किटेक्ट
क्या विशेष रूप से पसंद आया? क्यों?
क्या पसंद नहीं आया? क्यों?
आर्किटेक्ट/प्लानर के अनुसार कीमत का अनुमान: 240000 (अतिरिक्त खर्च, ज़मीन को छोड़कर)
घर की व्यक्तिगत मूल्य सीमा, साज-सज्जा सहित: 250000 (अतिरिक्त खर्च, ज़मीन को छोड़कर)
पसंदीदा हीटिंग तकनीक: गैस
यह डिज़ाइन इस प्रकार क्यों बनी है?
कोना ज़मीन -> गार्डन की दृश्यमानता सीमित करने के लिए
पश्चिमी छत, L आकार में, घर के आसपास उत्तर की ओर