Fleckenzwerg
26.05.2020 11:26:14
- #1
Bonjour,
depuis quelques mois, nous travaillons sur le plan de notre future maison individuelle sur un terrain en emphytéose de 500 m².
Un entrepreneur général de la région a déjà réalisé plusieurs plans basés sur nos souhaits, à savoir :
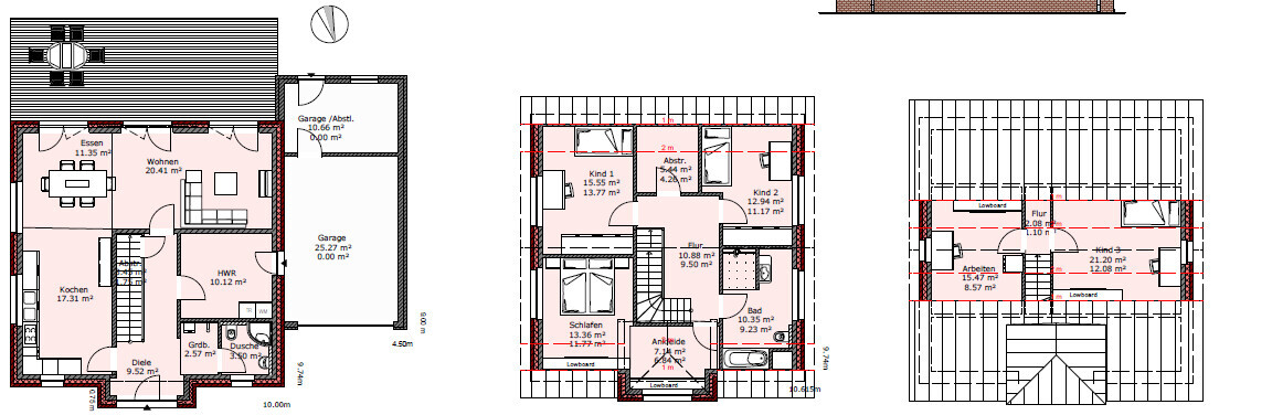
- Espace de vie ouvert (le classique), mais « en angle » – nous ne voulons pas voir de casseroles sales dans la cuisine depuis le canapé
- WC invités avec douche (nous avons déjà 2 filles, 1 et 3 ans, un troisième enfant est prévu dans 2 à 4 ans)
- Buanderie spacieuse, car pas de cave prévue
- Garage de 4,5 x 9 m, avec entrée latérale vers la buanderie
- 3 chambres d’enfants + bureau (je travaille régulièrement en télétravail)
Comme surface au sol, nous avons imaginé environ 10 x 10 m ; avec une largeur de terrain d’environ 17,5 m, une maison plus large se ferait au détriment du garage ; selon le plan d’urbanisme, une profondeur jusqu’à 14 m est autorisée (l’arête de toit doit être parallèle à la rue).
La question que nous nous posons est de savoir comment aménager le plus judicieusement possible les pièces prévues. Deux variantes nous viennent à l’esprit :
1) Deux chambres d’enfants à l’étage, la 3ᵉ chambre et le bureau dans les combles aménagés (hauteur faîtière 10 m, pente 45°).
2) Toutes les 3 chambres d’enfants à l’étage, bureau au rez-de-chaussée, combles non aménagés.
Avec la variante 1, nous avons très vite réalisé que l’escalier, qui doit alors monter jusqu’aux combles, devient un point central du plan. L’espace est mieux exploité si les escaliers des étages sont superposés (n’est-ce pas ?) Il ne peut pas être placé du côté pignon, car il ne resterait alors qu’une seule pièce utile dans les combles ; le placer du côté gouttereau ne fonctionne pas non plus à cause de la hauteur max de 4,10 m, il manque la hauteur sous plafond nécessaire. Il ne peut donc être placé qu’au centre de la surface au sol. Mais cela limite encore la liberté d’aménagement du reste de la maison.
La variante 2 est possible avec 10 x 10 m, mais les pièces seraient probablement un peu petites (chambres d’enfants environ 11 m², bureau 9 m² aussi assez juste). La fenêtre de construction nous permet jusqu’à 10 x 14 m. Élargir ou allonger serait la solution rapide et facile, mais sans doute aussi la plus coûteuse.
Notre entrepreneur général a indiqué que créer un espace de vie dans les combles est relativement bon marché, car on possède déjà les combles. Cela semble logique. Y a-t-il des expériences contraires dans le forum ?
Bien que l’entrepreneur ait intégré tous nos souhaits dans un plan, nous ne sommes pas complètement satisfaits à plusieurs endroits, ça ne colle pas encore tout à fait.
Pour la vue d’ensemble, voici un extrait du plan d’urbanisme. Le terrain se trouve à peu près dans la zone rouge.

Et ici, une proposition du plan :

Plan d’urbanisme / contraintes
Surface du terrain : 499 m²
Terrain en pente : non
Coefficient d’occupation des sols : 0,4
Coefficient d’emprise au sol : n.c.
Fenêtre de construction, ligne de construction et limite : ligne à 3 m derrière la voirie, profondeur de la fenêtre de construction 14 m
Construction en limite : garages / carports autorisés
Nombre de places de stationnement : sur le terrain
Nombre d’étages max. : 2 niveaux complets
Type de toiture : toit à deux versants
Style : maison individuelle ou jumelée
Orientation : gouttereau vers la rue
Hauteurs maximales / limites : hauteur sous gouttière max 4,10 m ; hauteur faîtière max 10,0 m ; pente 35-45°
autres prescriptions
Exigences des maîtres d’ouvrage
Style, type de toiture, type de bâtiment : maison massive en brique, toit à deux versants, maison individuelle
Cave, étages : pas de cave ; rez-de-chaussée, étage, éventuellement combles
Nombre de personnes, âges : 4-5, 36, 33, 3, 1, ?
Besoins en pièces rez-de-chaussée, étage
Bureau : usage familial ou télétravail ? Télétravail, mais idéalement aussi un petit « coin refuge » avec un canapé pour deux, table + TV
Nuits d’invités par an : non pertinent
Architecture ouverte ou fermée : cf. ci-dessus
Style traditionnel ou moderne : selon nos besoins, si c’est traditionnel ou moderne, aucune idée
Cuisine ouverte, ilôt de cuisine, ouverte, pas d’ilôt
Nombre de places à manger : 6, avec possibilité d’extension pour invités (table extensible)
Cheminée : non
Mur pour musique/stéréo : oui, idéalement emplacement pour 5.1
Balcon, terrasse sur le toit : non
Garage, carport : garage 4,5 x 9 m
Potager, serre ? Fraises, tomates, quelques herbes, sinon terrasse et pelouse pour l’aire de jeux des enfants
Autres souhaits/spécificités/emploi du temps, volontiers aussi raisons pourquoi ceci ou cela ne doit pas être
Projet de maison
Auteur de la planification : planificateur d’une entreprise de construction
Qu’est-ce qui plaît particulièrement ? Pourquoi ? Voir plus bas.
Qu’est-ce qui ne plaît pas ? Pourquoi ? Voir plus bas.
Estimation du prix selon architecte/planificateur : une première proposition à 315k € ; je pense que nous sommes un peu au-dessus ici.
Budget personnel pour la maison, y compris équipement : 350 k€
Technique de chauffage préférée : pompe à chaleur géothermique avec forage ou capteur collectif en tranchée (mais difficile à cause de la taille du terrain, donc probablement forage).
Photovoltaïque prévu, mais en plus du budget mentionné.
Si vous deviez renoncer, à quels détails / aménagements
-pourriez-vous renoncer :
lucarne de toit
entrée latérale du garage vers la buanderie
combles aménagés si les pièces sont ailleurs.
-ne pourriez-vous pas renoncer :
3 chambres d’enfants, bureau
Pourquoi le plan est-il ainsi devenu ce qu’il est ? par exemple
Plan type du planificateur ? Conçu pour nous, avec suggestions et croquis de notre part.
Quels souhaits ont été pris en compte par l’architecte ? cf. ci-dessus
Qu’est-ce qui le rend, selon vous, particulièrement bon ou mauvais ?
Certaines choses ne correspondent tout simplement pas. L’escalier quart tournant à l’étage prend de la place, le couloir devient assez grand. Le dressing attenant à la chambre parentale est difficile à utiliser malgré la lucarne, car il n’y a pas d’endroit pour un grand placard. Nous ne sommes pas sûrs que le « L » dans le séjour salle à manger soit trop long, donnant une impression de long passage. Nos souhaits ont été réalisés, mais il nous est difficile d’imaginer si les pièces sont pratiques dans leurs proportions et formes.
Quelle est la question la plus importante/fondamentale concernant le plan, résumée en 130 caractères ?
Peut-être sommes-nous trop fixés sur nos idées et ne savons plus envisager d’autres agencements. Le forum rassemble beaucoup d’expériences sur ce qui fonctionne ou non. Peut-être grâce aux suggestions ici, pourrons-nous créer un plan harmonieux qui nous plaît mieux.
Merci d’avance pour cela.
depuis quelques mois, nous travaillons sur le plan de notre future maison individuelle sur un terrain en emphytéose de 500 m².
Un entrepreneur général de la région a déjà réalisé plusieurs plans basés sur nos souhaits, à savoir :
- Espace de vie ouvert (le classique), mais « en angle » – nous ne voulons pas voir de casseroles sales dans la cuisine depuis le canapé
- WC invités avec douche (nous avons déjà 2 filles, 1 et 3 ans, un troisième enfant est prévu dans 2 à 4 ans)
- Buanderie spacieuse, car pas de cave prévue
- Garage de 4,5 x 9 m, avec entrée latérale vers la buanderie
- 3 chambres d’enfants + bureau (je travaille régulièrement en télétravail)
Comme surface au sol, nous avons imaginé environ 10 x 10 m ; avec une largeur de terrain d’environ 17,5 m, une maison plus large se ferait au détriment du garage ; selon le plan d’urbanisme, une profondeur jusqu’à 14 m est autorisée (l’arête de toit doit être parallèle à la rue).
La question que nous nous posons est de savoir comment aménager le plus judicieusement possible les pièces prévues. Deux variantes nous viennent à l’esprit :
1) Deux chambres d’enfants à l’étage, la 3ᵉ chambre et le bureau dans les combles aménagés (hauteur faîtière 10 m, pente 45°).
2) Toutes les 3 chambres d’enfants à l’étage, bureau au rez-de-chaussée, combles non aménagés.
Avec la variante 1, nous avons très vite réalisé que l’escalier, qui doit alors monter jusqu’aux combles, devient un point central du plan. L’espace est mieux exploité si les escaliers des étages sont superposés (n’est-ce pas ?) Il ne peut pas être placé du côté pignon, car il ne resterait alors qu’une seule pièce utile dans les combles ; le placer du côté gouttereau ne fonctionne pas non plus à cause de la hauteur max de 4,10 m, il manque la hauteur sous plafond nécessaire. Il ne peut donc être placé qu’au centre de la surface au sol. Mais cela limite encore la liberté d’aménagement du reste de la maison.
La variante 2 est possible avec 10 x 10 m, mais les pièces seraient probablement un peu petites (chambres d’enfants environ 11 m², bureau 9 m² aussi assez juste). La fenêtre de construction nous permet jusqu’à 10 x 14 m. Élargir ou allonger serait la solution rapide et facile, mais sans doute aussi la plus coûteuse.
Notre entrepreneur général a indiqué que créer un espace de vie dans les combles est relativement bon marché, car on possède déjà les combles. Cela semble logique. Y a-t-il des expériences contraires dans le forum ?
Bien que l’entrepreneur ait intégré tous nos souhaits dans un plan, nous ne sommes pas complètement satisfaits à plusieurs endroits, ça ne colle pas encore tout à fait.
Pour la vue d’ensemble, voici un extrait du plan d’urbanisme. Le terrain se trouve à peu près dans la zone rouge.
Et ici, une proposition du plan :
Plan d’urbanisme / contraintes
Surface du terrain : 499 m²
Terrain en pente : non
Coefficient d’occupation des sols : 0,4
Coefficient d’emprise au sol : n.c.
Fenêtre de construction, ligne de construction et limite : ligne à 3 m derrière la voirie, profondeur de la fenêtre de construction 14 m
Construction en limite : garages / carports autorisés
Nombre de places de stationnement : sur le terrain
Nombre d’étages max. : 2 niveaux complets
Type de toiture : toit à deux versants
Style : maison individuelle ou jumelée
Orientation : gouttereau vers la rue
Hauteurs maximales / limites : hauteur sous gouttière max 4,10 m ; hauteur faîtière max 10,0 m ; pente 35-45°
autres prescriptions
Exigences des maîtres d’ouvrage
Style, type de toiture, type de bâtiment : maison massive en brique, toit à deux versants, maison individuelle
Cave, étages : pas de cave ; rez-de-chaussée, étage, éventuellement combles
Nombre de personnes, âges : 4-5, 36, 33, 3, 1, ?
Besoins en pièces rez-de-chaussée, étage
Bureau : usage familial ou télétravail ? Télétravail, mais idéalement aussi un petit « coin refuge » avec un canapé pour deux, table + TV
Nuits d’invités par an : non pertinent
Architecture ouverte ou fermée : cf. ci-dessus
Style traditionnel ou moderne : selon nos besoins, si c’est traditionnel ou moderne, aucune idée
Cuisine ouverte, ilôt de cuisine, ouverte, pas d’ilôt
Nombre de places à manger : 6, avec possibilité d’extension pour invités (table extensible)
Cheminée : non
Mur pour musique/stéréo : oui, idéalement emplacement pour 5.1
Balcon, terrasse sur le toit : non
Garage, carport : garage 4,5 x 9 m
Potager, serre ? Fraises, tomates, quelques herbes, sinon terrasse et pelouse pour l’aire de jeux des enfants
Autres souhaits/spécificités/emploi du temps, volontiers aussi raisons pourquoi ceci ou cela ne doit pas être
Projet de maison
Auteur de la planification : planificateur d’une entreprise de construction
Qu’est-ce qui plaît particulièrement ? Pourquoi ? Voir plus bas.
Qu’est-ce qui ne plaît pas ? Pourquoi ? Voir plus bas.
Estimation du prix selon architecte/planificateur : une première proposition à 315k € ; je pense que nous sommes un peu au-dessus ici.
Budget personnel pour la maison, y compris équipement : 350 k€
Technique de chauffage préférée : pompe à chaleur géothermique avec forage ou capteur collectif en tranchée (mais difficile à cause de la taille du terrain, donc probablement forage).
Photovoltaïque prévu, mais en plus du budget mentionné.
Si vous deviez renoncer, à quels détails / aménagements
-pourriez-vous renoncer :
lucarne de toit
entrée latérale du garage vers la buanderie
combles aménagés si les pièces sont ailleurs.
-ne pourriez-vous pas renoncer :
3 chambres d’enfants, bureau
Pourquoi le plan est-il ainsi devenu ce qu’il est ? par exemple
Plan type du planificateur ? Conçu pour nous, avec suggestions et croquis de notre part.
Quels souhaits ont été pris en compte par l’architecte ? cf. ci-dessus
Qu’est-ce qui le rend, selon vous, particulièrement bon ou mauvais ?
Certaines choses ne correspondent tout simplement pas. L’escalier quart tournant à l’étage prend de la place, le couloir devient assez grand. Le dressing attenant à la chambre parentale est difficile à utiliser malgré la lucarne, car il n’y a pas d’endroit pour un grand placard. Nous ne sommes pas sûrs que le « L » dans le séjour salle à manger soit trop long, donnant une impression de long passage. Nos souhaits ont été réalisés, mais il nous est difficile d’imaginer si les pièces sont pratiques dans leurs proportions et formes.
Quelle est la question la plus importante/fondamentale concernant le plan, résumée en 130 caractères ?
Peut-être sommes-nous trop fixés sur nos idées et ne savons plus envisager d’autres agencements. Le forum rassemble beaucoup d’expériences sur ce qui fonctionne ou non. Peut-être grâce aux suggestions ici, pourrons-nous créer un plan harmonieux qui nous plaît mieux.
Merci d’avance pour cela.