zizzi
06.03.2018 15:10:02
- #1
Salut,
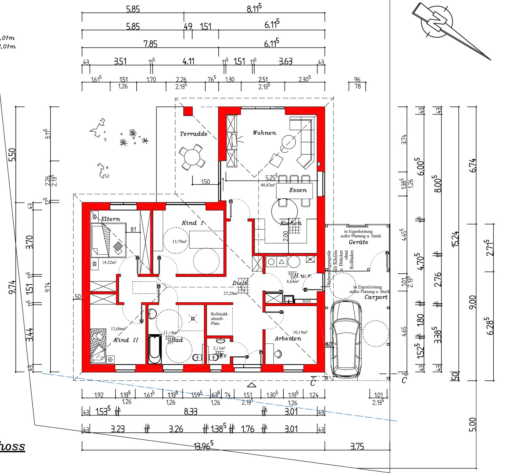
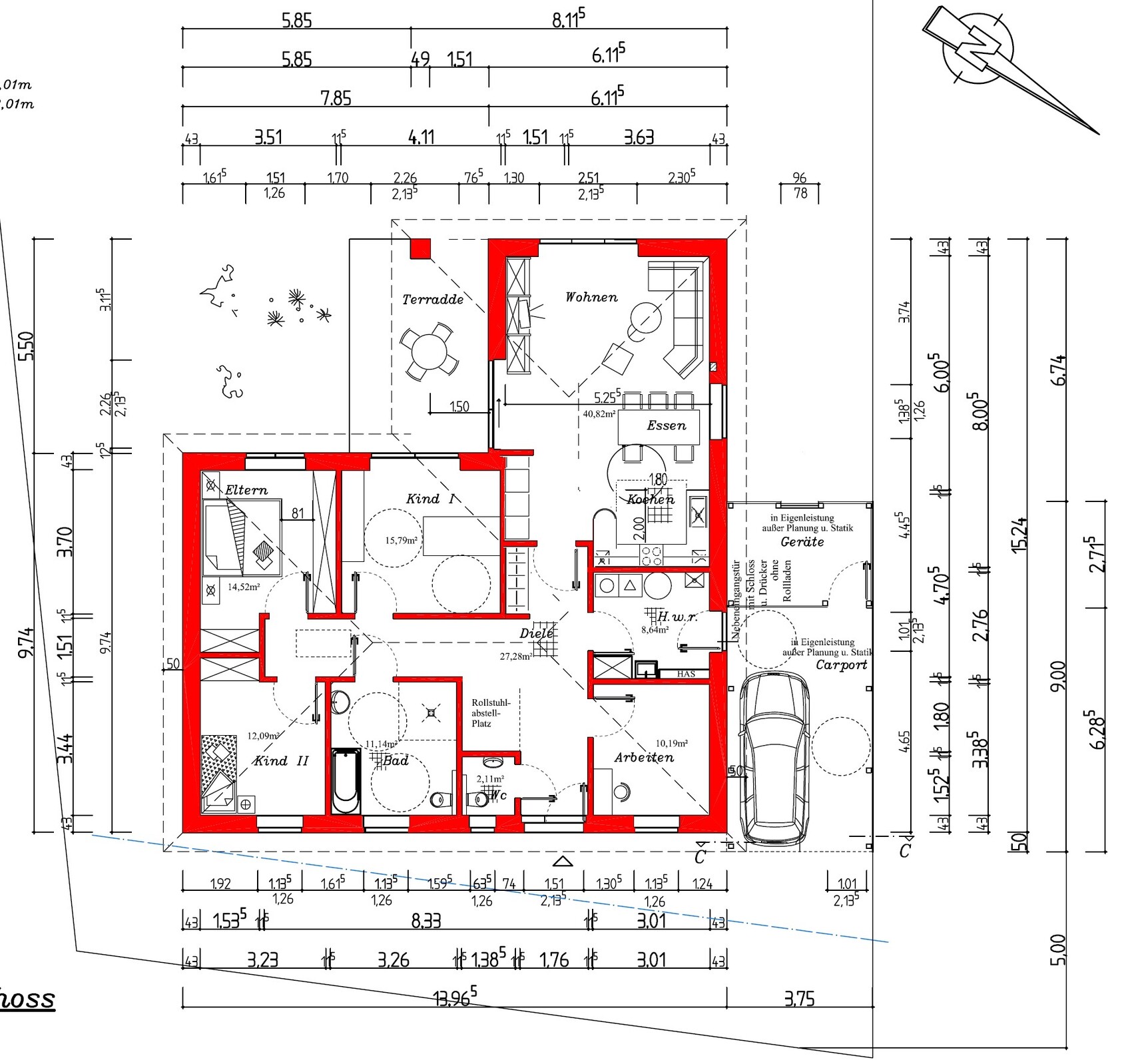
nous avons terminé le financement et le terrain et reprenons la planification et le plan d’étage. Il s'agit actuellement de la cuisine.
J’ai téléchargé le plan d’étage. Cuisine0 est une proposition de l'entrepreneur. Je l’ai un peu modifiée, et maintenant j’ai aussi trois variantes différentes (Cuisine1, Cuisine2, Cuisine3).
J’aimerais savoir quelle variante vous préférez et pourquoi ?
Je serai également reconnaissant pour d'autres suggestions d'amélioration.
Merci beaucoup
Reza




nous avons terminé le financement et le terrain et reprenons la planification et le plan d’étage. Il s'agit actuellement de la cuisine.
J’ai téléchargé le plan d’étage. Cuisine0 est une proposition de l'entrepreneur. Je l’ai un peu modifiée, et maintenant j’ai aussi trois variantes différentes (Cuisine1, Cuisine2, Cuisine3).
J’aimerais savoir quelle variante vous préférez et pourquoi ?
Je serai également reconnaissant pour d'autres suggestions d'amélioration.
Merci beaucoup
Reza