DNL
16.12.2014 09:40:09
- #1
Bonjour à tous,
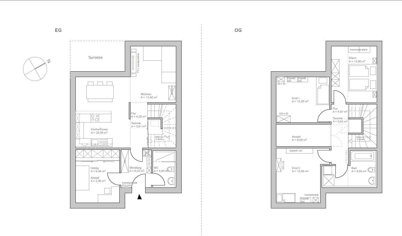
j’ai déjà lu plusieurs discussions sur les plans d’étage et je souhaite maintenant avoir de votre part des retours et des critiques sur notre plan compact prévu jusqu’à présent.
Je vais essayer de résumer les critères sous forme de points :
Je me réjouis de toute forme de critique constructive et de retours.

j’ai déjà lu plusieurs discussions sur les plans d’étage et je souhaite maintenant avoir de votre part des retours et des critiques sur notre plan compact prévu jusqu’à présent.
Je vais essayer de résumer les critères sous forme de points :
[*]Deux adultes et deux jeunes enfants (âge maternelle) doivent trouver leur place dans la maison.
[*]environ 128m²
[*]Toit en pente (hauteur d’environ 1,90m à 2,60m), le côté haut à gauche.
[*]Pas de sous-sol possible
[*]Pas de construction massive.
[*]Fenêtres pas encore prévues.
[*]La technique doit trouver sa place dans les pièces d’environ 1m² situées au centre de l’escalier et sous l’escalier. Selon un échange avec une entreprise de techniques du bâtiment, cela devrait être suffisant, même si la technique n’est pas encore précisément définie.
[*]La machine à laver et le sèche-linge sont derrière la porte dans la salle de bain.
[*]Les meubles sont bien sûr dessinés à titre d’exemple. C’est à peu près comme ça que nous pouvons l’imaginer.
[*]À gauche de la parcelle, il y a un fossé et une petite rue, et en bas une rue.
[*]Du côté droit, une deuxième maison est construite par une famille amie. Il n’y aura pas de séparation.
[*]Derrière le coin sud de la parcelle se trouve un énorme chêne.
[*]Du point de vue des directions cardinales, il serait en fait plus classique d’orienter le salon vers le sud. Mais nous souhaitons nous éloigner de la rue et notre vie familiale et nos invités se passent plutôt à la table à manger ou dehors.
[*]L’emplacement de la maison sur la parcelle peut éventuellement encore être modifié un peu.
Je me réjouis de toute forme de critique constructive et de retours.