Lisa24
06.07.2019 17:28:56
- #1
Hola queridos,
después de mucho ir y venir (aproximadamente 1 1/2 años - pero también hubo un cambio de residencia, boda, etc.) mi marido y yo hemos decidido quién será nuestra empresa constructora y cómo será nuestra casa.
Como ya he leído algunos buenos consejos, quería pedirles que le echen un vistazo y me digan qué piensan.
Estamos muy emocionados.
Muchos saludos
Lisa & Udo
_____________________________________________________________________________________________________
Vista exterior, la más a la derecha la armé un poco, porque no la teníamos a color.

_____________________________________________________________________________________________________
Vistas exteriores de la casa en el terreno

_____________________________________________________________________________________________________
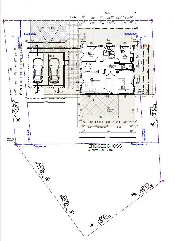
Así queda la casa en el terreno + plano planta baja

_____________________________________________________________________________________________________
Plano planta alta + sótano

después de mucho ir y venir (aproximadamente 1 1/2 años - pero también hubo un cambio de residencia, boda, etc.) mi marido y yo hemos decidido quién será nuestra empresa constructora y cómo será nuestra casa.
Como ya he leído algunos buenos consejos, quería pedirles que le echen un vistazo y me digan qué piensan.
Estamos muy emocionados.
Muchos saludos
Lisa & Udo
_____________________________________________________________________________________________________
Vista exterior, la más a la derecha la armé un poco, porque no la teníamos a color.
_____________________________________________________________________________________________________
Vistas exteriores de la casa en el terreno
_____________________________________________________________________________________________________
Así queda la casa en el terreno + plano planta baja
_____________________________________________________________________________________________________
Plano planta alta + sótano