Manu1976
02.07.2014 15:09:15
- #1
Después de haber leído aquí un tiempo, ahora también necesito ayuda. Estamos construyendo y ahora se están acercando las decisiones importantes. Hemos planificado 2 baños en nuestra casa. Somos 5 - 2 adultos + 3 niñas. Un baño será el baño de los padres, que debido a la cercanía con la hija 3 probablemente también será usado por ella. El segundo baño está entre dos habitaciones infantiles y será el baño de los niños.
El desagüe en ambos baños está presente en ambos lados, por lo que según el arquitecto podemos hacer en el baño lo que queramos. También las puertas todavía son modificables.
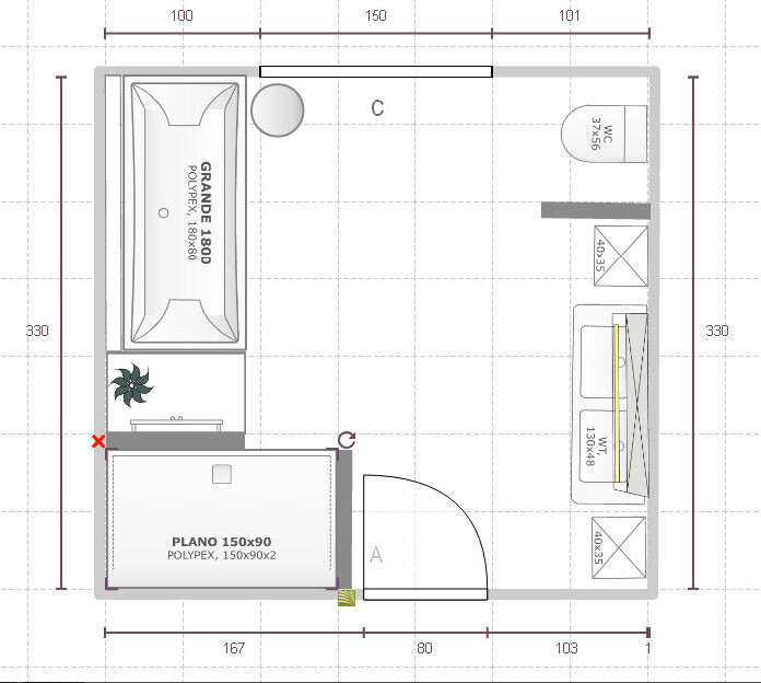
Las dimensiones del baño de los padres son: 3,50 x 3,30
Las dimensiones del baño de los niños son: 3,50 x 1,70, por lo que es bastante estrecho.
En el baño de los padres estamos pensando en una solución en T. Pero, ¿qué tal será en 10 años? Definitivamente queremos tener una ducha grande y un inodoro escondido.
He hecho algunos planos y espero recibir muchos comentarios de ustedes. Porque un baño no es algo que se renueve cada pocos años. Las instalaciones sanitarias representadas son solo para indicar espacio.

El desagüe en ambos baños está presente en ambos lados, por lo que según el arquitecto podemos hacer en el baño lo que queramos. También las puertas todavía son modificables.
Las dimensiones del baño de los padres son: 3,50 x 3,30
Las dimensiones del baño de los niños son: 3,50 x 1,70, por lo que es bastante estrecho.
En el baño de los padres estamos pensando en una solución en T. Pero, ¿qué tal será en 10 años? Definitivamente queremos tener una ducha grande y un inodoro escondido.
He hecho algunos planos y espero recibir muchos comentarios de ustedes. Porque un baño no es algo que se renueve cada pocos años. Las instalaciones sanitarias representadas son solo para indicar espacio.