MelleL
21.11.2018 11:34:46
- #1
Querido foro,
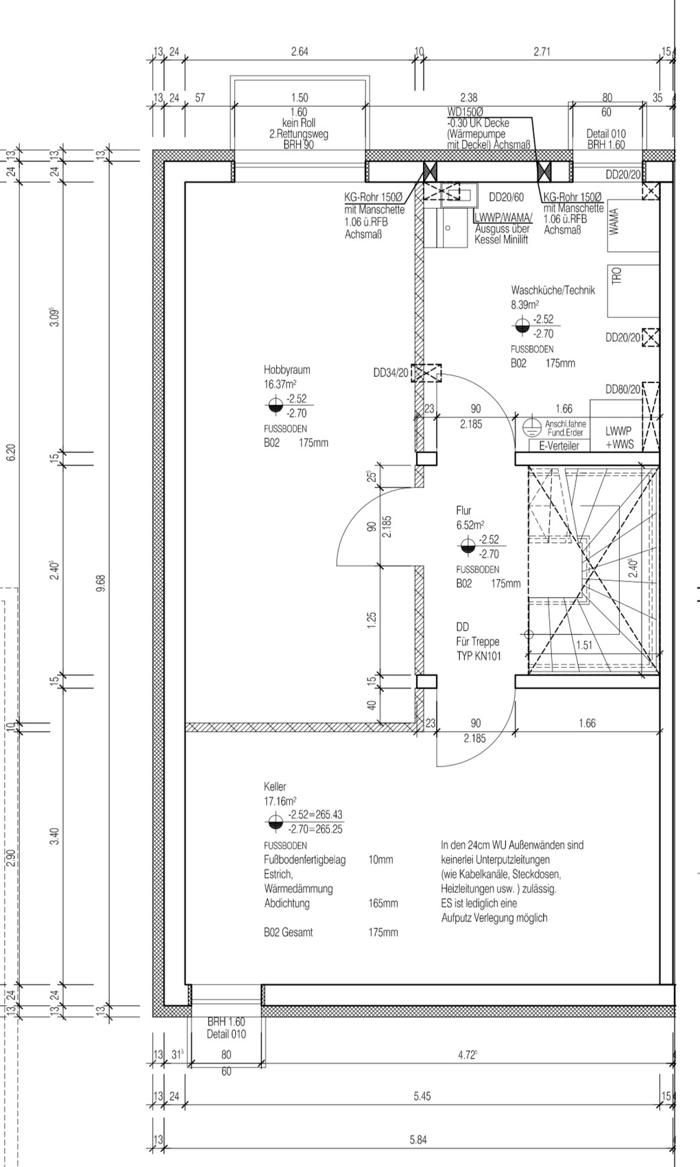
Espero su ayuda con la distribución de nuestra casa adosada.
Plan de ordenación/restricciones
Tamaño del terreno: 228 m²
Pendiente: no
Plaza de estacionamiento: 1 garaje 1, 1 plaza
Otras especificaciones: terreno/posición de la casa/garaje son fijos
Requisitos de los propietarios
Número de personas 3, edades 35, 35, 1
Necesidad de habitaciones en planta baja, planta alta habitación infantil, habitación de invitados
Oficina: profesora (mucho espacio de almacenamiento) + ocasionalmente teletrabajo marido. Raras veces ambos al mismo tiempo.
Huéspedes por año: varias veces, porque los abuelos viven lejos
Arquitectura abierta
Estilo moderno pero acogedor/cómodo
Cocina abierta, isla con fregadero: planificación de cocina ya definida
Número de plazas para comer: en el día a día para 3, para invitados también con gusto
Chimenea: lamentablemente no hemos encontrado una posición adecuada... por eso
Descartada
Terraza
1 garaje, 1 carport
Diseño de la casa
¿Quién hizo el diseño?
-Planificador de una empresa constructora
-Arquitecto
¿Qué les gusta especialmente? Ducha grande accesible en la planta alta, ¡nos gusta mucho la planificación general del plano!
¿Por qué?
Ducha grande, porque simplemente no nos gusta nada bañarnos
Técnica de calefacción preferida: bomba de calor aire
¿Por qué el diseño es así como está ahora? Por ejemplo
Diseño estándar del planificador +
¡Incorporación de nuestros deseos!
- Ventana grande en la cocina. Ampliación del cuarto de pasatiempos, duchas accesibles, segundo baño en planta alta, buhardilla acondicionada con escotilla
¿Cuál es la pregunta más importante/fundamental sobre la distribución resumida en 130 caracteres?
En general nos gusta el plano "final". Aún lamentamos la chimenea y agradeceríamos propuestas.
¡Además tenemos “miedo” de pasar por alto errores graves!
¡Ya les agradezco mucho su ayuda!!






Espero su ayuda con la distribución de nuestra casa adosada.
Plan de ordenación/restricciones
Tamaño del terreno: 228 m²
Pendiente: no
Plaza de estacionamiento: 1 garaje 1, 1 plaza
Otras especificaciones: terreno/posición de la casa/garaje son fijos
Requisitos de los propietarios
Número de personas 3, edades 35, 35, 1
Necesidad de habitaciones en planta baja, planta alta habitación infantil, habitación de invitados
Oficina: profesora (mucho espacio de almacenamiento) + ocasionalmente teletrabajo marido. Raras veces ambos al mismo tiempo.
Huéspedes por año: varias veces, porque los abuelos viven lejos
Arquitectura abierta
Estilo moderno pero acogedor/cómodo
Cocina abierta, isla con fregadero: planificación de cocina ya definida
Número de plazas para comer: en el día a día para 3, para invitados también con gusto
Chimenea: lamentablemente no hemos encontrado una posición adecuada... por eso
Descartada
Terraza
1 garaje, 1 carport
Diseño de la casa
¿Quién hizo el diseño?
-Planificador de una empresa constructora
-Arquitecto
¿Qué les gusta especialmente? Ducha grande accesible en la planta alta, ¡nos gusta mucho la planificación general del plano!
¿Por qué?
Ducha grande, porque simplemente no nos gusta nada bañarnos
Técnica de calefacción preferida: bomba de calor aire
¿Por qué el diseño es así como está ahora? Por ejemplo
Diseño estándar del planificador +
¡Incorporación de nuestros deseos!
- Ventana grande en la cocina. Ampliación del cuarto de pasatiempos, duchas accesibles, segundo baño en planta alta, buhardilla acondicionada con escotilla
¿Cuál es la pregunta más importante/fundamental sobre la distribución resumida en 130 caracteres?
En general nos gusta el plano "final". Aún lamentamos la chimenea y agradeceríamos propuestas.
¡Además tenemos “miedo” de pasar por alto errores graves!
¡Ya les agradezco mucho su ayuda!!