Renovation of a 1960s settlement house with extension - Feedback welcome*

  • Erstellt am 2018-09-28 09:15:06

11ant

2018-09-30 23:50:53
  • #1

A housewife has a feeling for that, as Loriot says
I have been dealing with floor plan design for almost forty years, and every era has its style and its construction technique.


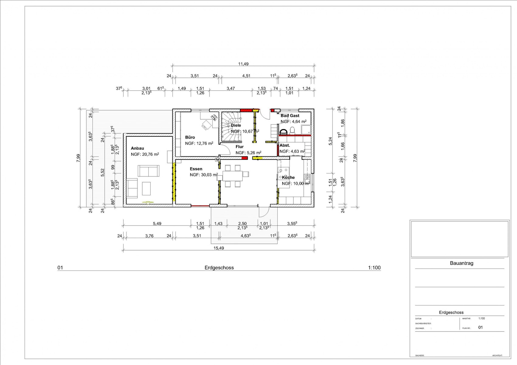
Wall thickness 24 can even be quite accurately placed in that time, in 1960 this was still basically the 50s. Shortly after, wall thickness 30 became more common.

By the way, badly planned new buildings are a very current trend, which was very rare in the 60s. I don’t use the term "Altbau" for existing buildings from this time, it actually refers to those from before 1948.


For the house pictures thread, it is certainly not too late – there, a lot or even everything may already be finished. It is not a pure slab-on-grade thread.
 

ColeTrickle0

2018-10-01 07:09:53
  • #2
: Thanks a lot for the feedback, it makes sense to us as well

I have uploaded the plans here, in which the existing building is also marked.

The question regarding demolition and new construction for us is whether we could even manage with our budget... For the demolition, I would roughly calculate 20,000 - 25,000 €. Does that roughly sound right? That would leave 275,000 € for the possible new construction. A basement is available. Own work is mostly limited to the destructive tasks

 

11ant

2018-10-01 14:06:01
  • #3
Apart from the living room extension and a gigantification of the dormers (are you sure the development plan allows that?), I only see demolitions and relocations of non-load-bearing walls. Where is a budget of three suitcases supposed to be spent?
 

Similar topics
11.06.2013Radiator in the new building?13
13.10.2020Renovate a used house or build a new one13
12.10.2013New construction on communal property, tax issue16
22.11.2013Costs of inheritance, demolition, new construction15
06.02.2017Insulate new construction 36.5 aerated concrete?60
05.08.2014New single-family house (KFW70)/aerated concrete vs. sand-lime brick/what to use?71
07.04.2014Is new construction possible without solar and without a heat pump?20
16.05.2014What makes a new building expensive?20
15.06.2015New construction: Plaster the concrete ceiling on the ground floor18
08.01.2015How is the amount of the land charge determined in the case of a new construction?14
16.03.2015Is financing new construction realistic?12
16.04.2015New construction or buy house, built in '9132
08.05.2015Renovate an old building from 1957 or buy a new building?13
12.08.2015Is insulation worth it beyond the new construction standard?34
14.12.2015Mold in the new building?20
31.12.2015Preparing electrical work for a smart home new construction17
07.01.2016Are cold corners in new buildings still contemporary?13
05.11.2021How is the "typical wall thickness" determined for double-shell walls?14
25.05.2023Wall thickness of expanded clay walls (Liapor) only 14 cm12

Oben