YvesB
2013-01-13 19:08:38
- #1
大家好,
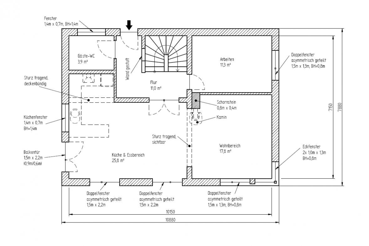
我们现在达到了一个新的规划阶段。我们非常希望听听大家对户型图的意见。

我们现在达到了一个新的规划阶段。我们非常希望听听大家对户型图的意见。
类似主题 | ||
21.02.2012 | 你觉得这个平面图怎么样? | 11 |
14.01.2013 | 关于一楼平面图的意见 | 10 |
26.05.2013 | 您对底层平面图的看法 | 28 |
30.07.2014 | 140平方米带车库的平房在平面图中 | 13 |
18.01.2015 | 规划阶段 独栋住宅平面图 | 15 |
03.06.2015 | 平面图规划:平房约130平方米 | 58 |
22.01.2016 | 又一次的平面图供批评。[ /zh] [ru]Снова план этажа для критики.[/ru] [es]Otra vez un plano para crítica.[/es] | 34 |
30.04.2015 | 独栋住宅平面图约140平方米 - 可分隔楼梯间 | 35 |
07.07.2016 | 我们平房的平面图 | 82 |
04.08.2016 | 平面图,光线与窗户 | 11 |
13.04.2017 | 征求对房屋平面图的意见 | 71 |
22.03.2018 | 平房平面图约140-150平方米 - 请提供反馈 | 14 |
09.04.2019 | 新建独栋住宅160平方米平面图 - 请提供反馈 | 22 |
30.05.2018 | 平房平面图约160平方米居住面积 | 20 |
30.05.2019 | 城市别墅平面图 - 期待反馈 | 97 |
08.03.2021 | 平房平面图意见 | 31 |
29.04.2021 | 厨房到储藏室/储物间的平面图入口 | 29 |
05.09.2021 | 首次平面图规划 单户住宅 190平方米 | 64 |
24.01.2023 | 无地下室的独栋住宅平面图,3个儿童房和一间办公室 | 18 |
27.12.2024 | 独栋住宅平面图155平方米,无地下室,3间儿童房,1个办公室 | 38 |