城市别墅平面图设计,带双车库,约150平方米

  • Erstellt am 2020-11-19 08:53:50

11ant

2020-12-02 13:07:04
  • #1
噢,时代,噢,道德!- 当我比较人均平方米和汽车的平方米时,我几乎想把这栋房子称为车库的附属建筑 :-(
 

ypg

2020-12-03 12:53:33
  • #2

对我来说不然。但我觉得这是否能在这里不能搬动或移动房子并不太重要,因为车库没有任何可能性。

我对这里的“只能这么做”和“必须”感到困惑。建筑边界之前也不知道,还是我没注意到?

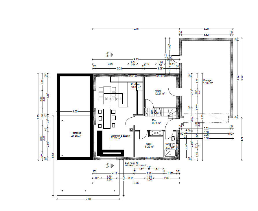
我肯定会事先决定餐区的位置。工作台之间应该留大约一米。这里也要看是否会因为U形布局造成死角,这里确实有,且通向储藏室。储藏室打算放什么?我看上去那里只能放两个高柜,但占用了三个高柜的位置。
如果你们现在把餐区保留为2.70米,可能会有点挤。比如我们在一侧椅子留90厘米。如果我老公坐在那里聊天、喝咖啡或玩耍(不是吃饭时),别人就没法通过了。要是朋友聚会或玩耍,就得不停挪开椅子去拿饮料。因此务必按 建议,现在就把厨房规划好,而别用建筑师的占位符,否则结果会半吊子。
我个人不反对餐桌贴着岛台,但必须真正规划出在家庭聚会时可拉开或旋转餐桌的方案。照这样看,我甚至看不到开露台门的可能……
一定要用方格纸画下平面图,把家具模型放上去。碗碟放哪,放餐垫的柜子,沙发和电视放哪。如果你们把沙发靠墙放,

如果这样做,你们就浪费了2.70米当吧凳空间,而中间摆放的餐桌则会和电视休息区冲突,或者被壁炉挡住,还会占用餐桌座位。
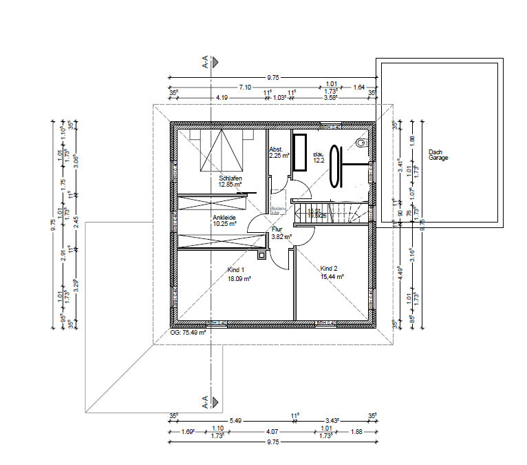
为什么现在车库变大了?目的是什么?如果根本不需要,为什么要做一个非常大的更衣室?我觉得之前的顶层设计要好得多,虽然楼梯旁的空间有些“浪费”,但儿童房大小相同,9米的长度合理分配给两个房间,更衣室可以做储藏或洗衣房,卫生间也可以重新布局。
关于朝向:既然你们打算遮阳一部分,我建议客厅方向始终朝南。尤其是10月至次年4月,房子内部会从朝向中获益。至于露台朝南还是朝西,我觉得以你们优越的地形条件这不是关键,因为可以设置多个露台。随着时间推移,你们会形成自己的喜好,现在还无法左右。
 

ypg

2020-12-03 13:50:56
  • #3
这里是另一种布局,车库尺寸也进行了调整,以便能够移动门和楼梯。
楼梯和走廊通过窗户再次获得自然光,厨房、餐厅和客厅的分区更合理。
窗户或多或少呈对称排列(我不太喜欢,因为我觉得这样没意思),洗衣间在二楼。
当然,楼梯旁边还可以利用“浪费”的空间,但我看不出有什么附加价值。那里可以放置缝纫机或一块小工作台,或者一个阅读椅。

 

Dennydre

2020-12-14 08:40:36
  • #4
经过众多建议后,我们重新修改了我们的平面图和厨房设计。

具体变更如下:
- 取消SK
- 更换衣帽间和卧室的位置,并添加一个小储藏室
- 露台朝西

经过与我们的厨房设计工作室协商,首先设计的是带有经典中岛的L型厨房。
为此,我使用Paint(无比例尺)专业处理了建筑师最新的平面图。

我目前的担忧是窗户的位置。楼上走廊不需要窗户,浴室也只需要一个窗户。

你们有什么看法?




 

11ant

2020-12-14 12:22:34
  • #5

找出你忘记加引号的地方 :)

我都表示怀疑。

我坚持认为,摆脱平方框框的束缚会起到有益的作用。
 

Würfel*

2020-12-14 12:25:01
  • #6
我不认为地下层是这样运作的。你的桌子只有70厘米宽,到处都觉得很紧凑。9米的室内宽度根本摆不下带岛的厨房+餐桌+沙发并排放置。沙发的两个长边还都挡在落地窗前。为了节省空间,我会考虑把客房/书房合并进去,并从更衣室和较大的儿童房中腾出平方米。或者把技术房缩小很多,上层设置洗衣房+储藏室。如果地下层空间更多,你可以考虑典型的L型布局,把桌子从中间移开。或者你干脆把房子加宽一些,这样厨房+餐桌+客厅才能并排放置。长方形而非正方形。
 

类似主题
15.10.2015带有深窗户的厨房规划43
26.06.2015平面图问题,楼梯,窗户,方向12
27.08.20152整层,通往车库的通道,楼梯下的洗衣房25
11.09.2015根据建筑师的说法,在边界上建车库是不允许的。11
12.09.2016客厅:如何摆放沙发、电视和柜子?32
18.10.2016规划房屋和车库在建造窗口内的位置 *预规划*129
15.10.2016儿童房改造 - 把一个窗户分成两个窗户?20
29.11.2016独栋住宅和平面图及车库32
23.12.2016落地窗 - 如何摆放沙发?12
15.05.2018带有5间儿童房的斜坡房屋平面设计370
01.11.2017L形单户住宅平面设计67
17.10.2017独栋住宅约150平方米平面图 - 如何规划楼梯?65
09.04.2019城市别墅160-170平方米,风挡与车库连接的问题32
18.03.2019单户住宅平面图设计(190平方米)带车库18
10.10.2019建筑师设计的150平方米独栋住宅,寻求改进建议和创意75
04.06.2020寻找客厅中沙发和电视的可能位置。15
15.08.2020带有3个儿童房、地下室和边界建筑的独栋住宅设计32
29.04.2021尽管有车库,客用卫生间/客房可以有窗户吗?33
13.11.2024带地窖和车库的单户住宅平面图50
07.03.2024240平方米独栋住宅的平面图,带部分覆盖的车库96

Oben