
mayglow
Bin nicht sicher, was du hiermit meinst. Aber ansonsten, die Render der Außenansichten wirken für uns völlig i.O. bisher. Bebauungsplan gibt wenn ich das richtig im Kopf habe eh helle Wände, dunkle Dächer vor, insofern werden wir wohl eher nicht von giftgrün mit lila Punkten überrascht werdenAm Beispiel IS24
Mein Mann sieht das auch so, ich glaube, bei mir ist das einfach nicht wesentlich hoch in der Prio. Meine Eltern haben zT Holzoptik-Fliesen (mit stink normalen Fugen, also nix extra schmal oder so). Wenn man drauf guckt, sieht man das selbst verständlich, aber persönlich ist mir das wohl einfach relativ SchnurzIm besten Fall störten sie nicht, im schlechtesten Fall het das Wohnzimmer eind Ausstrahlung wie eine Durchschnittsmöbelausstellung.
Jetzt bin ich ja schon neugierigEiniges/Kleinigkeiten würde ich am Grundriss ändern, aber das dann später![]()
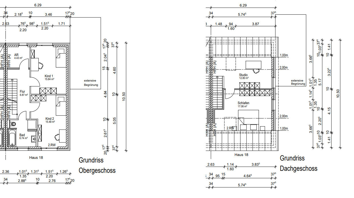
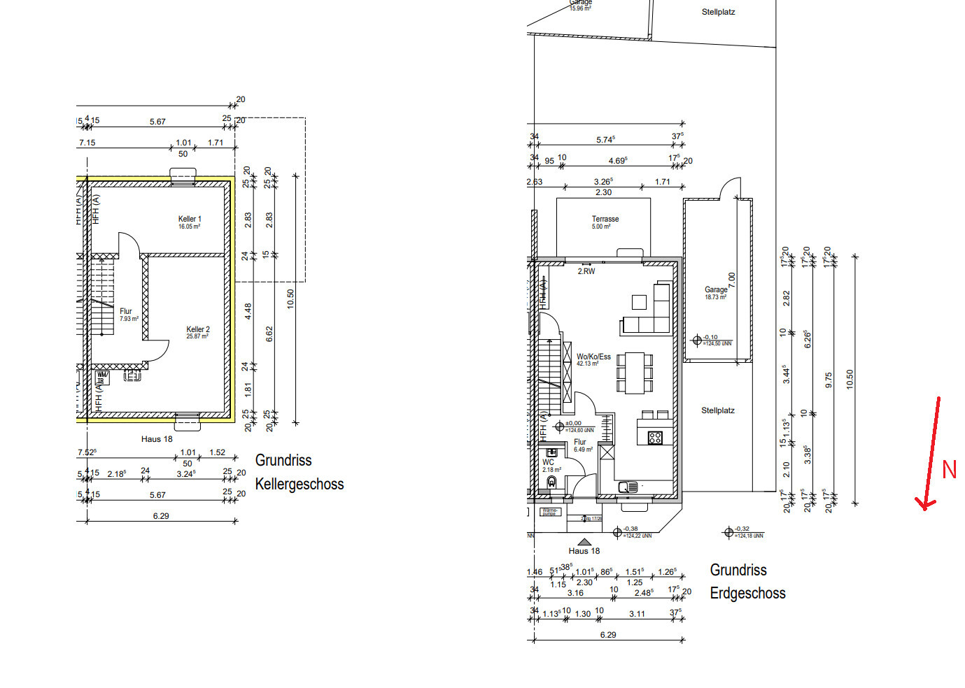
Mal die Grundrisse:
Prinzipiell bei den Ideen, die ich bisher so hatte, war ich mir nicht sicher, ob wir jetzt verschlimmbessern oder nicht. So im Sinne des "Typenhaus bauen - kleine Änderungen, unbeabsichtigte Nebenwirkungen" Threads den wir hier im Forum haben. Wenn ich das beim Erstgespräch richtig verstanden hatte, sind die nicht ausgefüllten Wände (wie im OG) recht problemlos verschiebbar. Wie das beispielsweise mit der Nischenwand im EG (die liegt glaube über der Kellerwand, also vielleicht doch tragende Stütze?) oder der Wand im DG ist, da bin ich nicht sicher. Werden das als Frage jedenfalls auch nochmal mitnehmen.
Ecken, an denen wir rum überlegen:
- Küche und Eingangsbereich wirkt für mich nicht so richtig voll stimmig. Also die Nische ist besser als keine Garderobe (wie wir zT in anderen Grundrissen gesehen hatten) aber irgendwie wirkt für mich sowohl die Nische als auch die Küche dadurch etwas blockiert. Küche ggf eher als U darum? Die Insel wirkt so nicht sehr brauchbar? Oder (erstmal andere Idee) Garderoben-Nische und Küchennische tauschen (also Flur am Eingang breiter und wird dann schmaler und in die Küche irwie Kühlschrank in den da Breiteren Teil? oder sowas? Aber dann ist Garderobe hinter der Tür, hm)? Begeistert mich alles nicht 100 pro und dann lande ich wieder bei "oder einfach so lassen", hmpf! Dunkler Flur ist uns übrigens schnurz piep egal.
- OG finden wir eigentlich gut. Aktuell würden wir eins der Kinderzimmer als Büro nutzen, langfristig kommt drauf an was die Familienplanung draus macht
- DG war so etwas die Frage, ob man das Schlafzimmer kleiner zieht und aus dem Studio nen eigenen Raum macht. Sind aber nicht sicher ob das geht (falls meine Wandinfos richtig waren) und erstmal ist auch nicht richtig Bedarf für. (Wie gesagt, aktuell würde ein Kinderzimmer zum Büro... aber langfristig wirds dann eben doch eventuell als Kinderzimmer benötigt?) Wieder so ein "oder doch so lassen?" Die ersten Jahre ist es halt wirklich egal und bis dahin ist vielleicht Homeoffice eh out, wer weiß
Ist aber bisher nur rumgesponnen. Wir haben das Gefühl, der Grundriss wie er aktuell ist, wär für uns so gut bewohnbar und wenn ich Änderungen überleg, denke ich jedes Mal "hab ich das nicht gerade viel schlimmer gemacht?"
War jetzt auch eigentlich nicht der Sinn des Threads, aber wo ihr alle schonmal so nett hier seid
@11ant Danke für die Lesetipps und auch die Hinweise auf ggf versteckte Kosten! Gerade Straße hatte ich gar nicht viel drüber nachgedacht. Muss ich nochmal schauen, ob wir da schon irgendwie mehr zu Wissen oder mal nachhaken sollten.