ᐅ Wir Planen unser Haus. Eure Erfahrung ist gefragt
Erstellt am: 31.01.26 16:21
Hallo,
wir machen gerade unsere ersten Planungsversuche. Vielleicht hat der ein oder andere Experte ein paar Tipps, die man so nicht bedenkt. Wichtig ist uns, dass im Alter auch nur das EG bewohnbar ist. Mit der Treppenplanung sind wir noch ziemlich unsicher.
Immer her mit Kritik und sonstige Vorschläge


wir machen gerade unsere ersten Planungsversuche. Vielleicht hat der ein oder andere Experte ein paar Tipps, die man so nicht bedenkt. Wichtig ist uns, dass im Alter auch nur das EG bewohnbar ist. Mit der Treppenplanung sind wir noch ziemlich unsicher.
Immer her mit Kritik und sonstige Vorschläge
MB86 schrieb:
Wichtig ist uns, dass im Alter auch nur das EG bewohnbar ist.Dann schaut doch nach Bungalow Grundrissen,
die sind im Alter gut bewohnbar,
Zimmergrößen und Bad haben eine vernünftige Größe.
Statt der Kellertreppe die Treppe nach oben planen und oben die notwendigen Zimmer.
H
hanghaus202331.01.26 19:32Fragenkatalog bitte ausfüllen.
MB86 schrieb:
ersten Planungsversuche.Erste Planungsversuche sind meist wie die ersten Gehversuche, nämlich..
MB86 schrieb:
ziemlich unsicher...und holprig. Man muss damit rechnen, noch sehr oft zu fallen.
MB86 schrieb:
die man so nicht bedenkt.Viel kann man aus dem Forum heraus nicht sagen, denn es fehlt ja das Wichtigste: Grundstück, Lage, Maße, Ausrichtung, Umfeld, Bebauungsplan.
Dann die finanziellen Mittel, das Raumprogramm, die gewünschte Stilrichtung. Alles andere wären sinnfreie Äußerungen.
Ein-/Zweigeschosser, Dachneigung, Kniestock.. alles nicht bekannt.
Bei eigener Selbstverwirklichung drauf achten, dass keine unnötigen und störenden Ecken oder Wände, gegen die man läuft, geplant werden.
Möblierung am besten maßstabsgerecht einzeichnen, um Engstellen zu erkennen. Gilt auch für Fuhrwerk aller Art.
Bitte mal diesen Fragebogen ausfüllen
https://www.hausbau-forum.de/threads/grundriss-planung-unbedingt-vor-beitrag-erstellung-lesen.f5w5f3/
Ist ja auch ein Unterschied, ob man mit 20 und Kinderwunsch oder mit 40 und schon halberwachsenen Teenagern ein Haus plant.
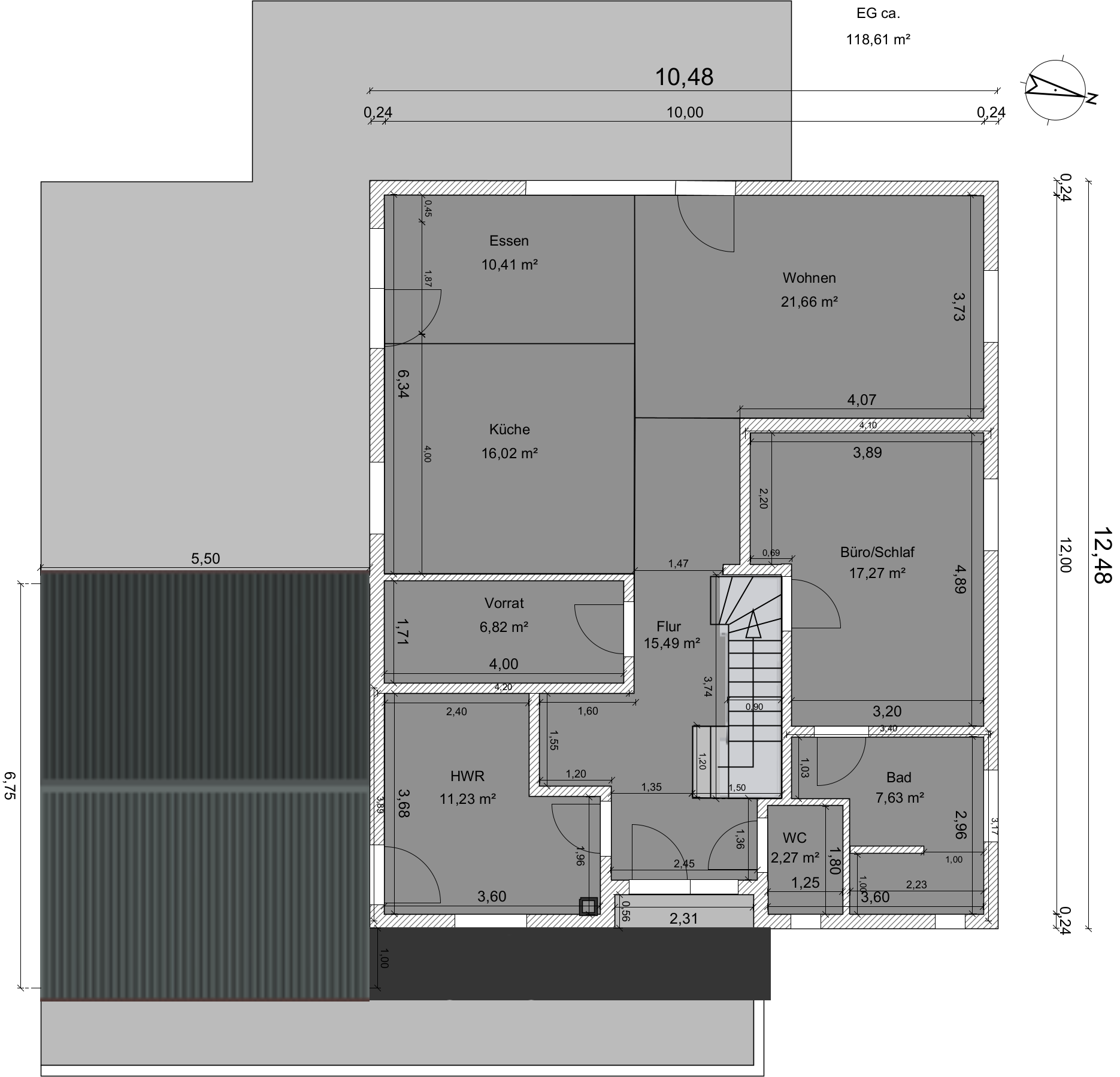
In diesem Entwurf sehe ich ein Haus von ca. 700000€/750000€ ohne Garage und ohne Baunebenkosten, mit Schlaf- und Badezimmer, die nicht einfach funktionell möbliert werden können, eine ars**teure Loggia, ein zu schmaler Wohnraum, eine bei 2 PKWs nicht nutzbare Garagentür und einen verwinkelten Flur mit Treppen-Stolperkante und beklemmender Garderobenecke und ein Kinderzimmer, wo das Fenster durch das Dach der Garage bedeckt ist. Und wenn das tatsächlich eine gemischte Treppe mit Podest sein soll, dann ist sie zu kurz und wahrscheinlich auch durch den Schrittwechsel unten und Wendelung oben nicht unbedingt sicher, und die Tür zum Büro passt dann auch nicht.
MB86 schrieb:
Wichtig ist uns, dass im Alter auch nur das EG bewohnbar ist.Und das OG dient dann als Dienstwohnung für Pflegekraft und Putzperle oder was ?
Nida35a schrieb:
Dann schaut doch nach Bungalow Grundrissen, die sind im Alter gut bewohnbar, Zimmergrößen und Bad haben eine vernünftige Größe.
Statt der Kellertreppe die Treppe nach oben planen und oben die notwendigen Zimmer.Nach Ruhestandhausgrundrissen sollte man für das Ruhestandshaus schauen. Bungalowgrundrisse haben die Kellertreppe nur selten da, wo sie auch in die andere Richtung gut platziert wäre.
hanghaus2023 schrieb:
Fragenkatalog bitte ausfüllen.Nutzungsschablone nicht vergessen. Deute ich die Staffelgeschoss-Anstattvilla recht, daß der Bebauungsplan hier nur I Vollgeschoss wünscht/zuläßt ?
https://www.instagram.com/11antgmxde/
https://www.linkedin.com/company/bauen-jetzt/
Ähnliche Themen