H
Hausbau93§912.01.24 19:36Hey alle zusammen,
Ich plane nun seit geraumer Zeit meinen Hausbau und habe mir noch die Pläne anfertigen lassen.
Derzeit befinde ich mich bei der Elektroplanung, gerne nehme ich eure Expertise/Anregungen/Ideen etc etc entgegen.
Ich bin stets offen für Anmerkungen und freue mich mit euch auszutauschen!!


Ich plane nun seit geraumer Zeit meinen Hausbau und habe mir noch die Pläne anfertigen lassen.
Derzeit befinde ich mich bei der Elektroplanung, gerne nehme ich eure Expertise/Anregungen/Ideen etc etc entgegen.
Ich bin stets offen für Anmerkungen und freue mich mit euch auszutauschen!!
Hausbau93§9 schrieb:
Ich plane nun seit geraumer Zeit meinen Hausbau und habe mir noch die Pläne anfertigen lassen.
Derzeit befinde ich mich bei der Elektroplanung, gerne nehme ich eure Expertise/Anregungen/Ideen etc etc entgegen.Erzähle mal ein bißchen mehr. Bist Du in einer ähnlichen Situation wie @prm2021 in https://www.hausbau-forum.de/threads/grundriss-planung-2-vollgeschosse-ca-130-140-qm-ohne-keller.39946/ (Zeichenknecht des GU ein Vollpfosten, Bauherr auf architektonische Selbsthilfe angewiesen) ?Das sieht nach Stahlbeton-Skelettbau aus und wäre so in DE energetisch ohne Chance auf Genehmigung.
https://www.instagram.com/11antgmxde/
https://www.linkedin.com/company/bauen-jetzt/
R
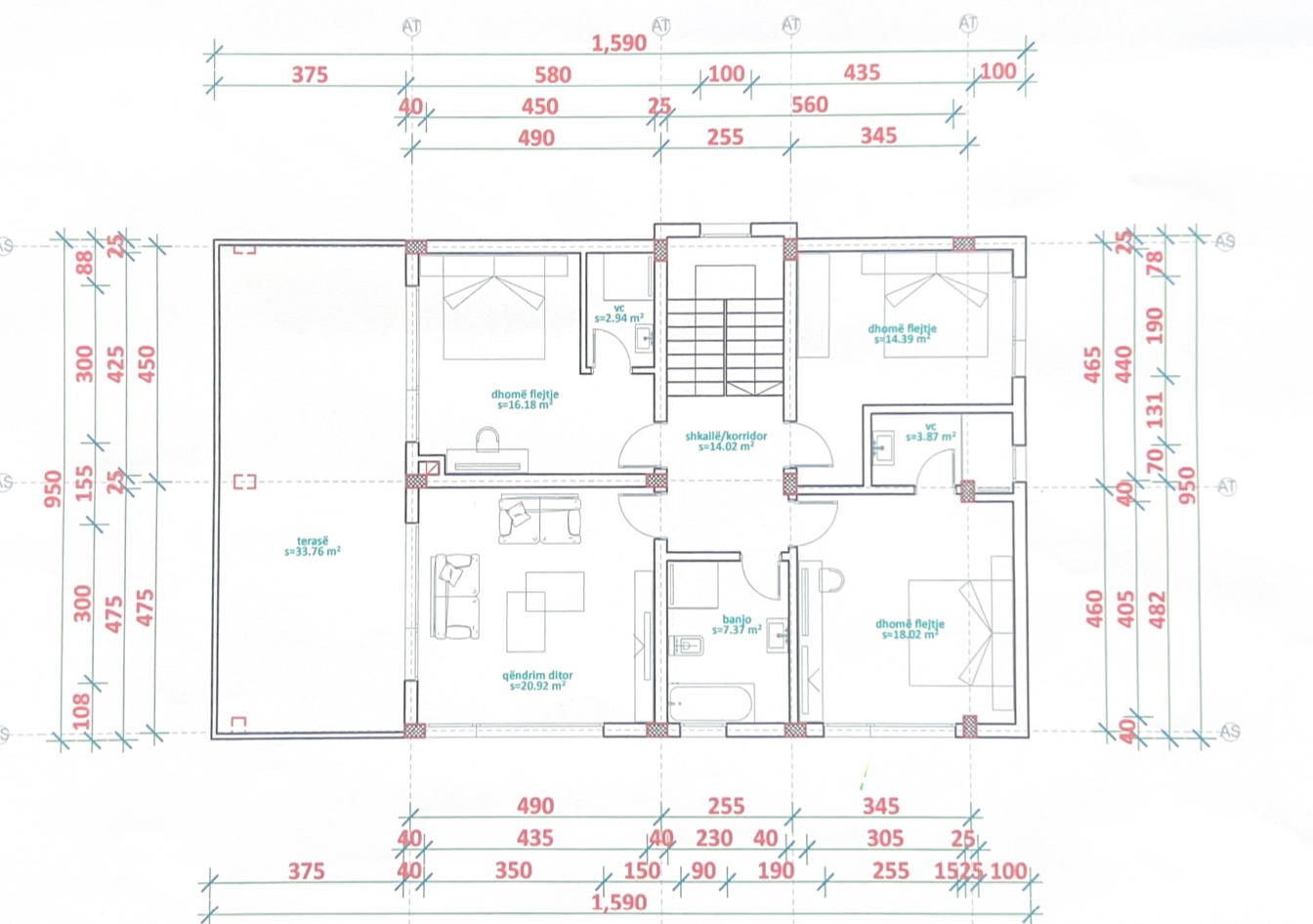
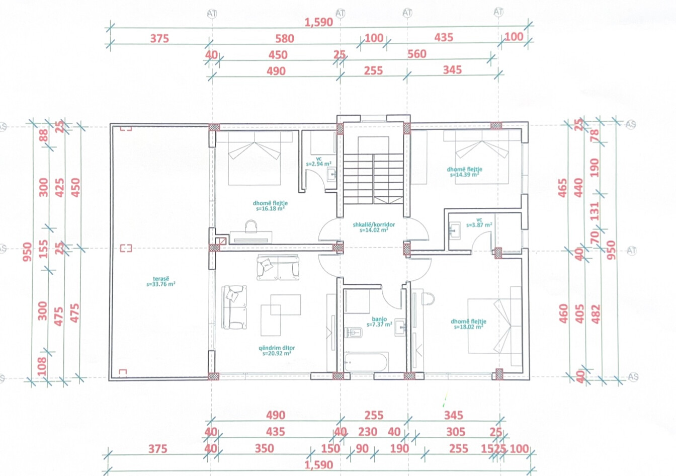
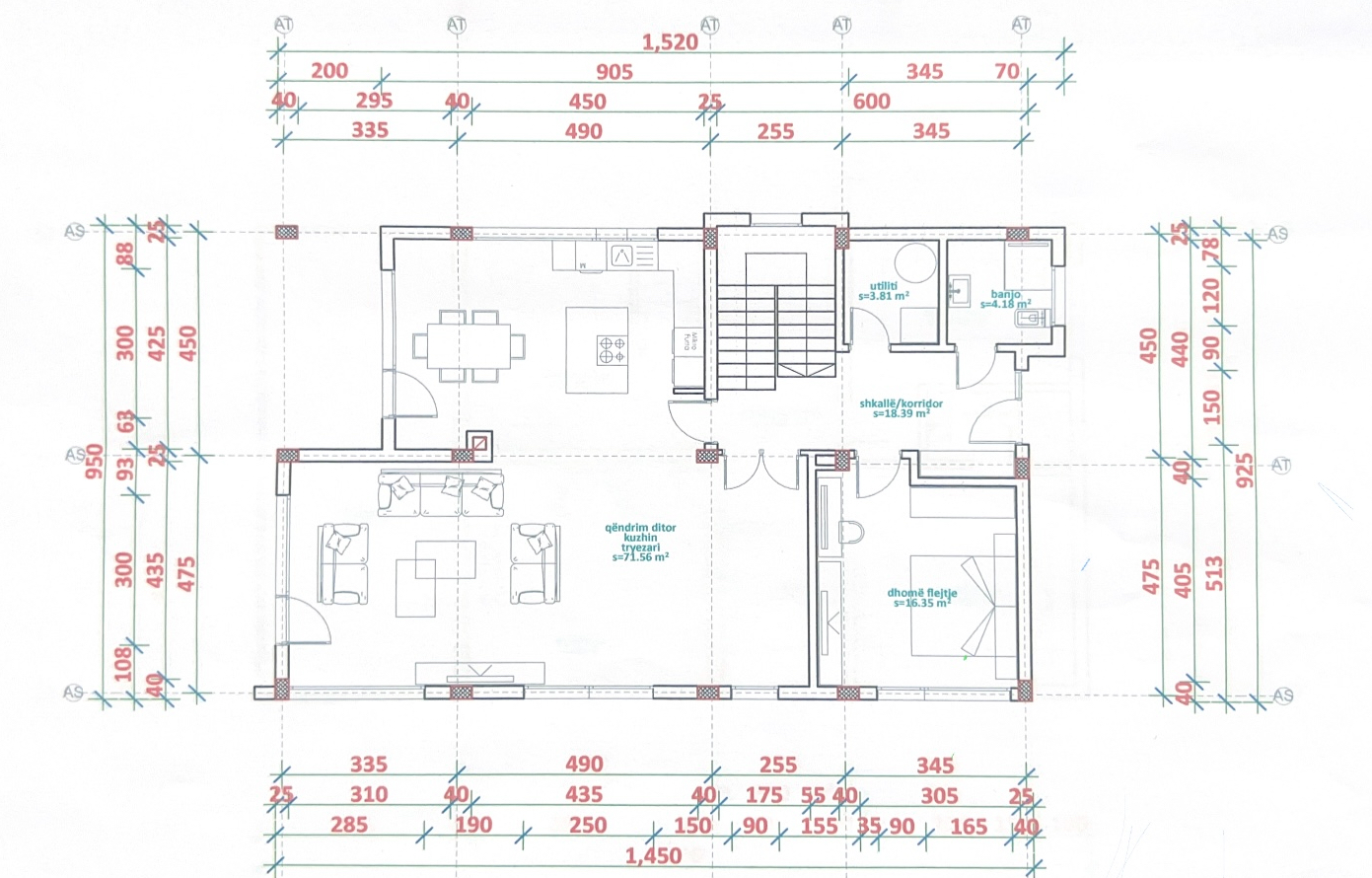
RotorMotor12.01.24 20:39Wo ist denn da die Elektroplanung? Ich sehe nur Grundrisse.
X
xMisterDx12.01.24 21:34RotorMotor schrieb:
Wo ist denn da die Elektroplanung? Ich sehe nur Grundrisse.Die sollst du natürlich für ihn machen 😉
Oder besser jemand, der das auch kann...
G
Gerddieter12.01.24 22:21Überleg dir doch erst mal selber wo du Steckdosen, Lichtschalter, Wandaualässe, Deckenauslässe, EDV, Taster.... haben möchtest. Das hat übrigens auch viel damit zu tun wo die Einrichtungen stehen, welche Anschläge die Türen haben etc etc etc... Das könne doch wir nicht für dich machen 🙂
Wir können das Ergebnis dann diskutieren...
GD
Wir können das Ergebnis dann diskutieren...
GD
I
i_b_n_a_n13.01.24 12:07Laut Beschriftung Albanien, kenne dort die Vorschriften nicht. Vermutlich nicht so streng wie hier?